查看完整案例


收藏

下载
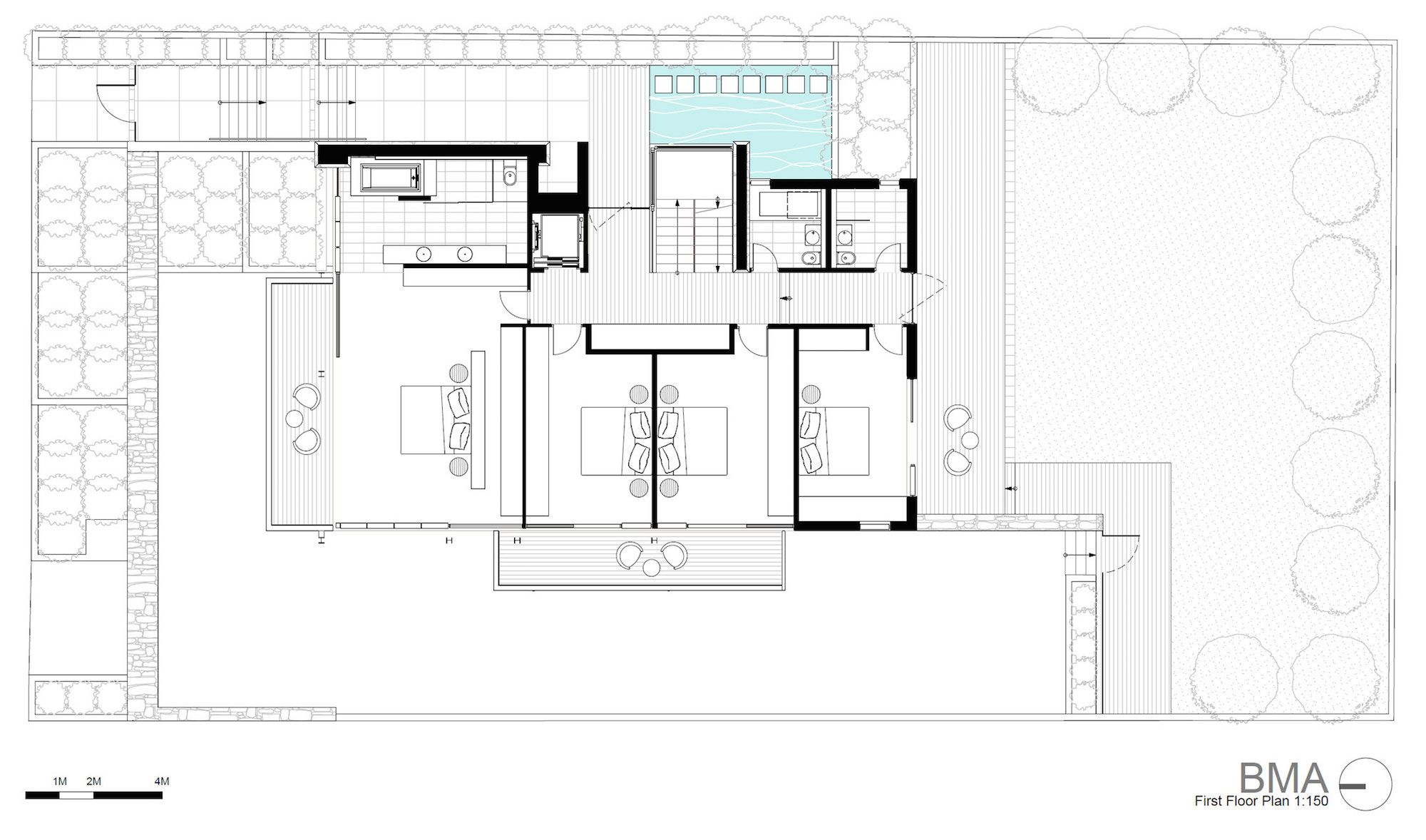
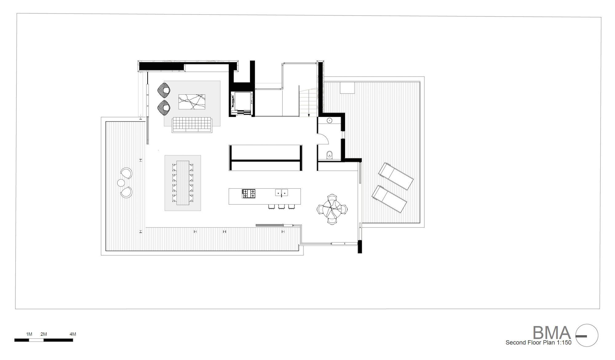
建筑师:MPR设计组地点:澳大利亚新南威尔士悉尼:2010面积:600平方米照片提供:MPR设计组描述:
这个家的想法是反映悉尼港湾的地理和地形。这座房子是以平坦的层次感联系在一起的-沙石覆盖的底座与拥抱悉尼港沟壑的石崖相呼应。
平面白色呈现结构的上层与赤道南侧的坚实的北光相反应。在悬臂白色的平面之间,完全高的低E涂层捕捉到耸人听闻的港口看到的同时保持一个热生产的内部环境。
有一个认识到的选择可以区分精确的人造材料,例如,钢和玻璃与普通材料,例如,局部切割的砂岩。
位于小规模的农村道路上,四层住宅巩固了它在顶层的重要居住区域,充分利用了城市和港口180度的视角。随着向北和西方向的引进和完全向外开放的能力,房子有可行的交叉通风,使冷却的利用失效。
房子是由一个充满灯光的楼梯竖井与部分通过一个双高的大厅位于房间的水平。在室内和外部空间中间的持续移动意味着有生命的区域流动到开阔的空气,突出的悬挂和稳固的门廊。
谢谢你阅读这篇文章!
keywords:Australia MPR Design Group New South Wales Sydney
关键词:澳大利亚MPR设计集团新南威尔士悉尼
客服
消息
收藏
下载
最近



























