查看完整案例


收藏

下载

翻译
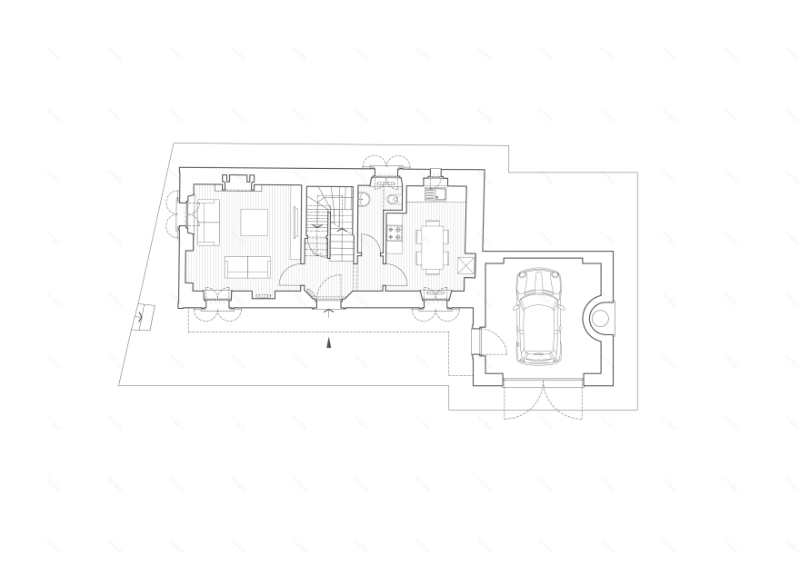
Le modifiche apportate all’edificio esistente sono le seguenti: demolizione di muri interni; formazione di vespaio aerato al piano terra; creazione di intercapedine esterna al piano terra; rifacimento intonaco, pavimenti, sottofondi, impianto elettrico, impianto idrico sanitario e impianto di riscaldamento; realizzazione di nuovi tavolati per la creazione di un nuovo w.c. al piano terra e di un nuovo bagno e ripostiglio al piano primo; sistemazione della scala interna; ampliamento a est dell'edificio esistente per la realizzazione di un'autorimessa al piano terra e di una camera al piano primo; mantenimento di tutti gli elementi architettonici presenti sulla facciata esistente e loro ripristino; mantenimento delle aperture esistenti con sostituzione dei serramenti; creazione di un nuovo locale cantina al piano interrato adiacente a quello esistente; consolidamento dei solai esistenti; realizzazione di una meridiana sulla facciata sud dell'ampliamento.
客服
消息
收藏
下载
最近












