查看完整案例


收藏

下载
© Frederik Vercruysse
(C)弗雷德里克·维克鲁斯
架构师提供的文本描述。一座与谷仓相连的三面老房子被拆除,取而代之的是一座现代谷仓式建筑,它建在现有建筑的后面,必须符合非常严格的建筑法规。
Text description provided by the architects. An old three - façade house, connected with the barn, was demolished and replaced by a contemporary barn-type building which was built behind the existing construction and which had to be in line with very strict building regulations.
© Frederik Vercruysse
(C)弗雷德里克·维克鲁斯
新的建筑与现有的谷仓有些不一致,因此以两个梯田的形式创造了受保护的外部空间。横向定位马厩完成设置。
The new building is somewhat unaligned with the existing barn, thus creating protected exterior spaces in the form of two terraces. The transversely positioned horse stable completes the set-up.
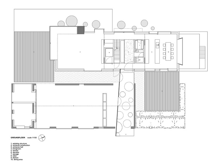
Ground Floor Plan
诚实的材料强调建筑物的地方特色。主楼的屋顶和外墙上覆盖着50厘米长的红色瓷砖,没有可见的排水沟。橡木的滑动窗户外面有一个温暖的铜涂饰。
Honest materials emphasize the building’s local character. The roof and the façade of the main building are covered with 50 cm long red tiles, with no visible gutters. The sliding windows in oak have a warm finishing in copper on the outside.
© Frederik Vercruysse
(C)弗雷德里克·维克鲁斯
室内的气氛是由自然光和对周围自然的壮丽景色所创造的。质朴的材料,特别是橡木,加强了和谐。
The interior atmosphere is created by natural light and splendid views on the surrounding nature. Austere materials, oak in particular, enhance the harmony.
© Frederik Vercruysse
(C)弗雷德里克·维克鲁斯
这个引人注目的,平衡的项目显示了正直,没有丝毫的野心成为时尚。
This striking, well-balanced project displays integrity, without the slightest ambition to be trendy.
© Frederik Vercruysse
(C)弗雷德里克·维克鲁斯
Architects Pascal François Architects
Location Balen, Belgium
Category Houses
Project Year 2015
Photographs Frederik Vercruysse
客服
消息
收藏
下载
最近
















