查看完整案例


收藏

下载
© João Morgado
·若昂·莫尔加多
架构师提供的文本描述。这座房子被植入一个大型农庄,建在庄园的葡萄园中间,地势几乎平坦,毗邻软木橡树林。环境的平静和宁静欢迎一层建筑,它试图尽量少地干扰景观,与构成和平背景的自然元素并排。
Text description provided by the architects. Implanted on a large agricultural estate, the house is built in the middle of the property’s vineyard on an almost flat terrain adjacent to a cork oak forest. The calm and serenity of the surroundings welcomes the one storey building which tries to interfere as little as possible with the landscape by aligning alongside the natural elements that compose the peaceful backdrop.
© João Morgado
·若昂·莫尔加多
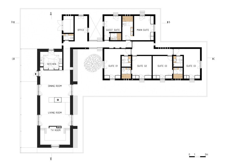
房子的不同功能被组织成三个类似大小的矩形体积,每一个都有一个平顶。这些空间的排列方式是平行和正交的,尊重景观的力量线和房屋的不同区域-- 公共区域和私人区域-- 它们的区别在于独特的物质性,它们既能和谐地结合在一起,也能与自然环境和谐地结合在一起。
The different functions of the house are organized into three rectangular volumes of similar sizes, each one possessing a flat roof. The volumes are arranged parallel and orthogonally respecting the landscape’s lines of strength and the house’s different areas – common areas and private areas – which are distinguished by a distinct materiality that also combines harmoniously with each other as well as the natural surroundings.
Floor Plan
公共区域仅限于夯实的地球体积,与整个户外露台进行交流,这是生活区的延伸,也是给西面遮阳的地方。其余两卷包括六套房、一间办公室、一间小客房、一间客房和一个可直接从外部进入的储藏室。
The common areas, confined to a Rammed Earth volume, communicate with the entire length of the outdoor terrace which functions as an extension of the living areas as well as bringing shade to the west façade. The two remaining volumes contain six suites, an office, a small guest bathroom, a guest bedroom and a storage area with direct access from the exterior. © João Morgado
·若昂·莫尔加多
该设计选择了一个小天井,为暴露在西北地区的空间带来了光明。这一露台与更大的天井向南,加强了视觉交叉,标志着过渡到更多的私人领域的房子。
The design opted to incorporate a small patio that brings light to the spaces that are exposed to the north-west. This patio is aligned with a larger patio to the south, enhancing a visual crossing that marks the transition to the more private area of the house. © João Morgado
·若昂·莫尔加多
对可持续和更生态的解决办法的需求是引入夯土体积的动力,这种土生土长的建筑技术仍在葡萄牙的一些地区反复出现。地球的自然美留在外部配置公共区域,包括客厅,餐厅和厨房。这种物质性还确保了室内更大的热和声学舒适性,在夏季提供了凉爽的环境,在冬季提供了温和的环境,全年室内湿度保持不变。这也是一种生态建设方法,使之与周围环境有很强的融合。
The demand for sustainable and more ecological solutions were the drive behind the introduction of a Rammed Earth volume, a vernacular building technique still recurrent in some areas of Portugal. The natural beauty of the earth is left visible on the exterior configuring the common areas that include a living room, a dinning area and a kitchen. This materiality also ensures greater thermal and acoustic comfort inside the house, providing a cool environment in the summer and mild in the winter with the indoor humidity constant throughout the year. It is also an ecological construction method that enables a strong fusion with the surrounding environment.
© João Morgado
·若昂·莫尔加多
余下的体积包括一座混凝土结构、外保温砖砌墙,这些墙被抹灰并涂成白色,使该屋的现有建筑物得以延续。
The remaining volumes consist of a concrete structure, brick masonry walls with external insulation which are plastered and painted white, giving continuity to the existing buildings on the estate.
© João Morgado
·若昂·莫尔加多
TECHNICAL DESCRIPTION
在夯土中建造部分设计的选择是由于对这项技术在环境和美学上所代表的附加价值的信心。
The option to build part of the design in Rammed Earth was due to the confidence in the added value that the technique represents both environmentally and aesthetically.
© João Morgado
·若昂·莫尔加多
其意图是将传统和现代结合起来,力求利用每一种方式的优点。
The intention was to combine tradition and modernity, seeking to take advantage of the best of each.
同时利用 50 km 外的土和 50 km 外的土,由于现场存在高含沙土,采用连续木模板和机械压缩的方法建造了独立墙,以达到压实土的目的。为改善结构性能,在较长的墙壁上引入了两根支座,以确保结构抗拉应力。夯实土在层间用玻璃纤维网格加固,并在多边形的各个角落重叠。
Using both earth from the estate as well as earth located 50km away, due to the presence of soil with a high sand content on site, the freestanding walls were erected using continuous wooden formwork and mechanical compression to compact the earth. Two buttresses were introduced on the longer walls in order to improve structural behaviour; to ensure the resistance of the construction against tensile stress. The Rammed Earth was reinforced with fibreglass mesh in-between layers and overlapped in all corners of the polygon.
© João Morgado
·若昂·莫尔加多
玻璃纤维网的引入使连续土层的施工不需要垂直连接,增强了材料的美观。这个建筑团队对建筑材料和建筑技术非常了解,尽管这是他们第一次把它放在外面,用平顶来保护。
The introduction of a fibreglass mesh allowed the construction of continuous earth layers without vertical joints, enhancing the beauty of the material. The building team was knowledgeable of the material and the building technique, although it was the first time that they would leave it visible on the exterior, protected by a flat roof. © João Morgado
·若昂·莫尔加多
屋顶由层合木梁组成,这些横梁连接在上门架上,上面覆盖着一个在现场制作的夹层板,并以透明的彩色防渗屏完成。
The roof consists of laminated wooden beams that are attached to the upper lintel and covered with a sandwich panel made on site and finished with a clear colour impermeable screen.
© João Morgado
·若昂·莫尔加多
结合平顶的建筑选择,有大量的开口需要克服这些限制的解决方案。这是使用实际的门框由层压木制成的,作为支撑元件和夯土模板的一部分。最后,为了尽可能地保持地球的外观,采用了水玻璃和酪蛋白的保护涂层。
Combined with architectural option of a flat roof, the presence of generous openings required solutions that would overcome these constraints. This was achieved using the actual doorframes made of laminated wood which act as a bracing element and as part of the formwork for the Rammed Earth. Finally, to preserve the earth’s appearance in the best possible way, a protective coating of water glass and casein was applied. © João Morgado
·若昂·莫尔加多
Architects Blaanc
Location Montijo, Portugal
Category Houses
Achitects Ana Morgado, Lara Pinho, Maria da Paz Braga, Maria do Carmo Caldeira
Area 319.0 sqmProject Year 2015
Photographs João Morgado
客服
消息
收藏
下载
最近




































