查看完整案例

收藏

下载
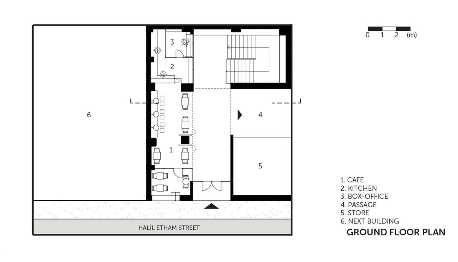
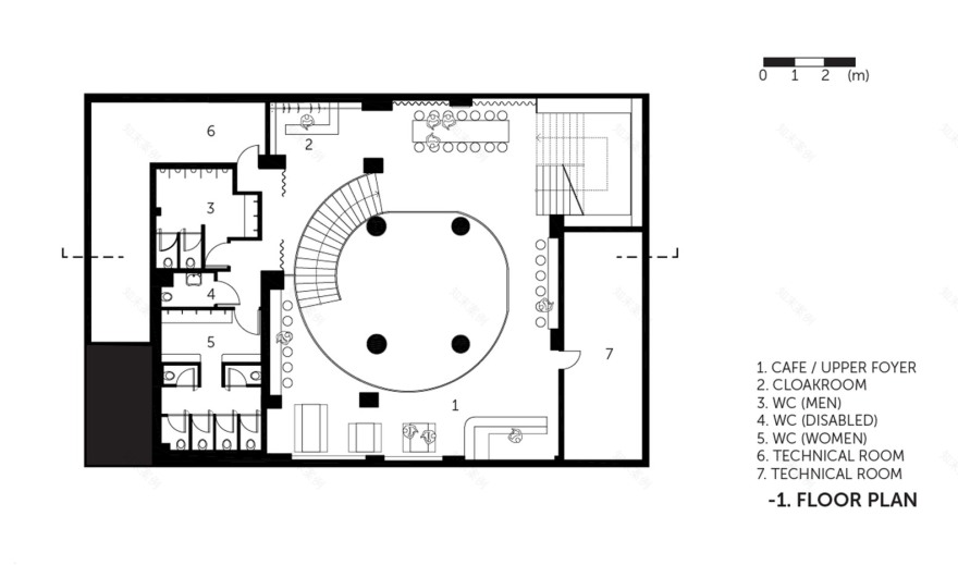
卡夫卡·辛玛斯电影公司(Kafkas Sineması,高加索影院)于1969年开业,这是莫达文化舞台的宝贵补充。从1984年到2000年,它被改造成一家剧院,并以它所在的社区Moda Sineması(Moda Cinema)的名义运营。12位合作伙伴齐聚一堂,将这座未使用的电影院改造成一个名为Moda Sahnesi(Moda Stage)的剧院和文化中心。2013年1月开始建造1 830平方米的Moda Sahnesi。除了主舞台、电影院和车间外,剧院大楼内还有咖啡馆、大门厅和技术/服务区。
Kafkas Sineması (The Caucasian Cinema), when opened in 1969 was a valuable addition to the Moda cultural scene. It was converted into a theatre later on and operated under the name of the neighborhood it is located, Moda Sineması (Moda Cinema), from 1984 to 2000. 12 partners got together to convert the unused cinema building back into a theatre and cultural center with the name, Moda Sahnesi (Moda Stage). The construction of the 1,830 m2 Moda Sahnesi began on January, 2013. Besides the main stage, the cinema and the workshop spaces, there is a café, grand foyer and technical/service areas inside the theatre building.
其中最重要和宏伟的细节建筑干扰在空间是3x3米。单片玻璃表面,将车间与大门厅隔开。这种玻璃表面可以是透明的,也可以像镜子一样,允许房间用于车间或排练,或作为一个空间前主题曲或较小的戏剧作品。这种设计背后的概念正是合作伙伴们所设想的-这是一个允许表演和演奏扩展到或开始于意想不到和不习惯点的领域。
One of the most significant and grandiose details of the architectural interference in the space is the 3x3 m. single piece, glass surface that separates the workshop room from the grand foyer. This glass surface can be transparent or mirror-like allowing the room to be used for workshops or rehearsals or as a space for pre-main set plays or smaller theatre pieces. The concept behind this design is what the partners envisioned – an area allowing for alternative perspectives by letting the performances and plays to spread to or start from un-expected and unaccustomed points.
Floor Plan
主舞台沙龙变成了一个750帕克斯表演区域,从295个帕克斯座位的设置,为发挥,由于其创造性设计的分层坐姿。舞台也可以调整为每个剧本的定制大小,提供灵活的格式。在这个空间中,建筑师和合作伙伴的设计方法是以最小的干扰、灵活的利用和与用户交互形成的空间来实现最好的设计方法。
The main stage salon turns into a 750 pax performance area from a 295 pax seated set-up for plays, due to its creatively designed tiered seat stands. The stage can also be adjusted to custom sizes for each play, providing a flexible format. The design approach of the architects and the partners in this space is bringing out the best with minimal interference, flexible utilization and a space that takes shape in interaction with their users.
Architects Halukar Architecture
Location Caferağa, Moda Cd., 34710 Kadıköy/İstanbul, Turkey
Category Restoration
Design Team Gamze İscan, Bilge Kalfa
Area 1830.0 sqm
Project Year 2013
Photographs Depikt
客服
消息
收藏
下载
最近
































