查看完整案例


收藏

下载
铝既得住宅是由De Lange工作室完成的住宅项目。
这座房屋位于以色列的Kfar Shmaryhu,于2015年完工。
在图库中查看
我们推荐这些项目,亚瑟卡萨斯工作室在伯南布哥设计了一个宽敞的当代住宅,URBEM阿奎杜拉设计了一个宽敞的家庭住宅,它融合了室内和室外之间的界线。
在图库中查看
在图库中查看
在图库中查看
在图库中查看
在图库中查看
在图库中查看
在图库中查看
在图库中查看
在图库中查看
在图库中查看
在图库中查看
在图库中查看
由De Lange工作室提供的铝制住宅:
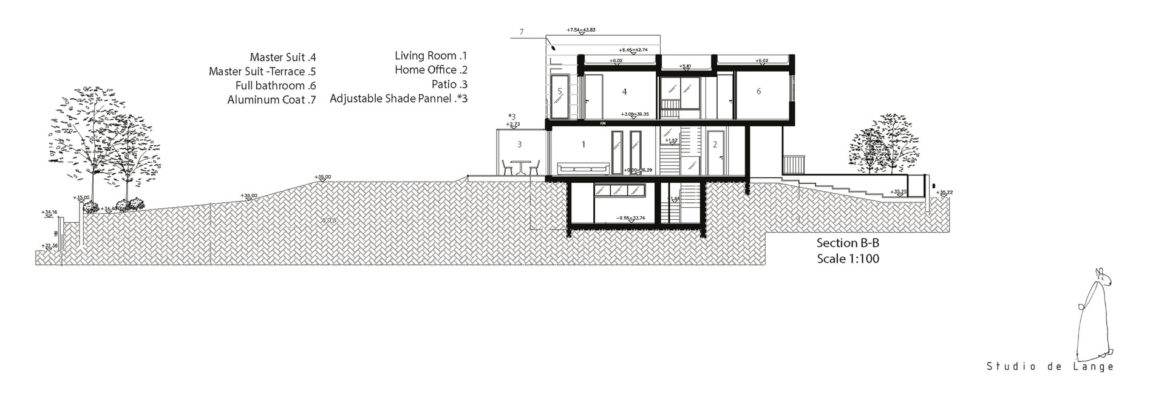
“位于以色列中部最早的社区之一,坐落在海拔1000平方米(10,764英尺2)的丘陵地带,这个家是为一个5岁的年轻家庭建造的。这项规划是通过与居民们富有成效的对话而产生的,他们梦想着一个实用、干净、流畅的空间,与户外有很强的联系;一个与他们的性格和生活风格相匹配的空间。
我们的目标是创造一个感觉轻盈的家,那时的策略是设计两个主要的群体:一层白色盒子基础,二层铝制包裹的“块”,它支持。这些顶层街区被细分为:一个高耸的,金属灰色的方形,和第二个更大的块,覆盖着银白色的天然彩色铝。
选择铝是因为其极简主义的内涵,而只是在顶层涂上涂层,强调结构的轻盈性及其不同的质量。它还允许在其金属表面上进行无休止的光线和阴影的播放。
极简主义的设计语言,翻译成空旷的空间设计;一种不生的、充满光的设计语言。这是由天然材料组成的指数,如:裸露混凝土、水磨石、铝、不锈钢、木材和石膏。这些材料被用于房屋内部,并溢出到周围的地面。
客户想要一个父母和孩子之间很容易保持联系的家。他们还要求在室内空间和独立楼层之间以及室内和室外之间提供充足的有利条件。出于这个原因,这座房子被编排成一系列空间,在室内有一个开放的对话。以及内部和外部之间的强烈对话。
一堵单面墙作为地板到天花板的屏风。这使得餐厅/客厅和家庭房间之间的隔开,另一方面是空间的流动。在这些空间之间共享地板到天花板玻璃门,允许连续的视野和与室外地面的无缝连接。
起居室一直延伸到一个室外的有檐的起居空间。这里的天篷有可调节的铝质玻璃,可以控制直接阳光的进入量。在以色列阳光明媚的气候下,这对全年享受太空至关重要。从这个户外起居区,绿草一路滚下山坡,一直延伸到地面。
家庭生活区位于高层:3间卧室、一套西服和一间家庭客房。虽然这是一个更私人的空间,但重要的是保持与户外的持续联系。
为了保持空间和有利的流动,在“走廊”中设计了一个附加的家庭区域,“在走廊”中提供了一个宽的图片窗口,允许Vista和灯光都进入横向空间。
这套西服面向主花园,有一个玻璃外墙,通过它可以增强“户外生活”的感觉。一个阳台,紧跟西服的长度,允许亲密的同时,仍然能够监视花园活动。
这幅地势起伏,需要精心的景观开发,才能在房屋所在的顶峰与地面的最低端之间形成顺畅的流动。这个花园有一个儿童友好的吸引力,设计围绕着一座长满草的小山,由地中海地区的植物和植被构成。这些颜色和季节的变化,也提供了一个视觉对比的滚动,单色绿的草。
最后,通过艺术将色彩引入室内,并选择家具。“
在图库中查看
在图库中查看
在图库中查看
在图库中查看
德兰格工作室提供的照片
keywords:Art Bedroom Bookshelf Contemporary House Contemporary Interior Design Decorative Accessory Dining Room Israel Kfar Shmaryahu Kitchen Landscaping Lighting Living Room Rug Staircase Studio de Lange Terrace Wall Decor
关键词:艺术卧室、书架、当代室内设计、装饰附件、餐厅、以色列Kfar Shmaryhu厨房、景观美化、照明、起居室、地毯楼梯、工作室、德兰格露台、墙面装饰
客服
消息
收藏
下载
最近



















