查看完整案例

收藏

下载
© José Campos | Architectural photography
乔塞坎波斯建筑摄影
架构师提供的文本描述。卡萨门的项目是重新解释从波尔图 XIXth 世纪的房子,重建一个废墟,但支持它的程序在形式和概念方面,这是常见的类型学。
Text description provided by the architects. Casa Gate’s Project is a reinterpretation of a XIXth Century House from Porto, rebuilding a ruin, but supporting its procedures in formal and conceptual aspects that are commonly used in this typology. © José Campos | Architectural photography
乔塞坎波斯建筑摄影
在这里测试了这个模型的巨大灵活性和弹性,进行了转换、添加和改进,试图在旧的和新的之间建立一个折衷点。所有这些重新解释的发生维持了房子的基本概念原则,因此避免了对其 DNA 的破坏。
The great flexibility and resilience of this model was tested here, with transformations, additions and improvements that try to establish a compromise point between the old and the new. All of these reinterpretations occurred maintaining the founding conceptual principles of the house, avoiding, therefore, the destruction of its DNA.
既有建筑的特点提出了两个主要问题:
The characteristics of the pre-existent construction raised two main issues:
内部空间的隔离:空间划分太多,空间小,循环复杂,自然光的发生率低。
Segregation of interior spaces: too many divisions, that give place a lot of spaces of small dimension, complicated circulations and, low incidence of natural light.
-建设性一致性:因湿度和真菌而受损的木材结构,以及对后外墙的侵入性干预。
Constructive consistence: wood structures harmed by humidity and fungus, as well as invasive interventions in the back façade.
© José Campos | Architectural photography
乔塞坎波斯建筑摄影
项目是从本诊断中提取的想法以及客户的意愿开始的,它构建了一些概念性平台:
Project’s started emerging from the ideas taken out of this diagnose, together with client’s wishes, building some conceptual platforms:
将保留和 (或) 修复结构上确定的要素。
-Structurally defining elements will be kept and/or rehabilitated.
增加一层楼。
-Add one floor.
-改造主立面,插入车库门。
-Alteration in the main façade, to insert garage door.
-简化内部空间,允许光线和空气流通。
-Simplification of inner spaces, to allow light and renewed air circulation.
-利用当代建筑材料,但保持同样的理念:底层的简单性和弹性,上层更大的精致。
Utilization of contemporary constructive materials, but keeping the same philosophy: simplicity and resilience in ground-floor, and bigger refinement in the upper floors.
© José Campos | Architectural photography
乔塞坎波斯建筑摄影
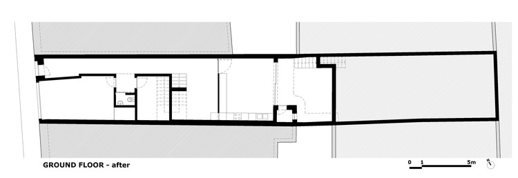
在识别和建立这些前提之后,项目自动地定义了自己。在底层放置了技术区域 (车库/洗衣房),后面的立面空间 (厨房) 通向露台。厨房和露台之间相似的大小/比例的密切互动,建立了非常丰富和亲密的关系。
After recognizing and establishing these premises, the project defined itself automatically. On ground floor are placed the technical areas (garage/laundry), and the back façade space (kitchen) opens to the patio. The similar size/proportion of the close interaction between kitchen and patio establishes a very rich and intimate relationship.
© José Campos | Architectural photography
乔塞坎波斯建筑摄影
从现在起,房子总是围绕着楼梯发出声音。当我们走到高层,不同的空间和视觉关系被实验,在空间和这个垂直的脊柱之间。开放空间,半开放空间,封闭空间和平台。
From here on, the house articulates itself always around the staircase. As we go to upper floors, different spatial and visual relations are experimented, between spaces and this vertical spine. Open spaces, semi-open spaces, closed spaces and platforms.
Ground Floor Plan After
底楼平面图
First Floor Plan After
一楼图则
Second Floor Plan After
二楼图则
这些想法在实现时受到了广泛的关注。保持高天花板的决心要求它。在“普通尺度”、高天花板、华丽的铺盖和卧室地板的亲密尺度之间的飞跃,都是以谨慎和奉献的态度来管理的,以允许融合,而不是排斥。
These ideas were materialized with a great concern on scale. The will of keeping high ceiling’s height demanded it. The leaps between a “common scale”, high ceilings, voluptuous footers and the intimate scale of the bedroom floor were managed with care and dedication, to allow integration, rather than exclusion.
© José Campos | Architectural photography
乔塞坎波斯建筑摄影
新结构遵循并尊重前一个结构的逻辑:在石墙中支撑自己,它使平面图没有附加的结构元素。使用过的材料显示,在达到一个正式的净化,低维护,耐用性,同时,低成本的高度关注。
The new structure follows and respects the logic of the previous one: supporting itself in the stone walls, it sets the floor plans free from additional structural elements. The used materials reveal a high concern in reaching a formal depuration, low maintenance, durability, and, simultaneously low cost.
© José Campos | Architectural photography
乔塞坎波斯建筑摄影
Architects Pedro Oliveira
Location Porto, Portugal
客服
消息
收藏
下载
最近








































