查看完整案例


收藏

下载
架构师提供的文本描述。该项目是一个新的“农业”风格的建筑集合,在大门的正式花园和草地之间的大门,在北安普敦郡的一个小村庄。
Text description provided by the architects. The project is a collection of new ‘agricultural’ style buildings at the threshold between the formal garden of the main house and meadow beyond in a small Northamptonshire village.
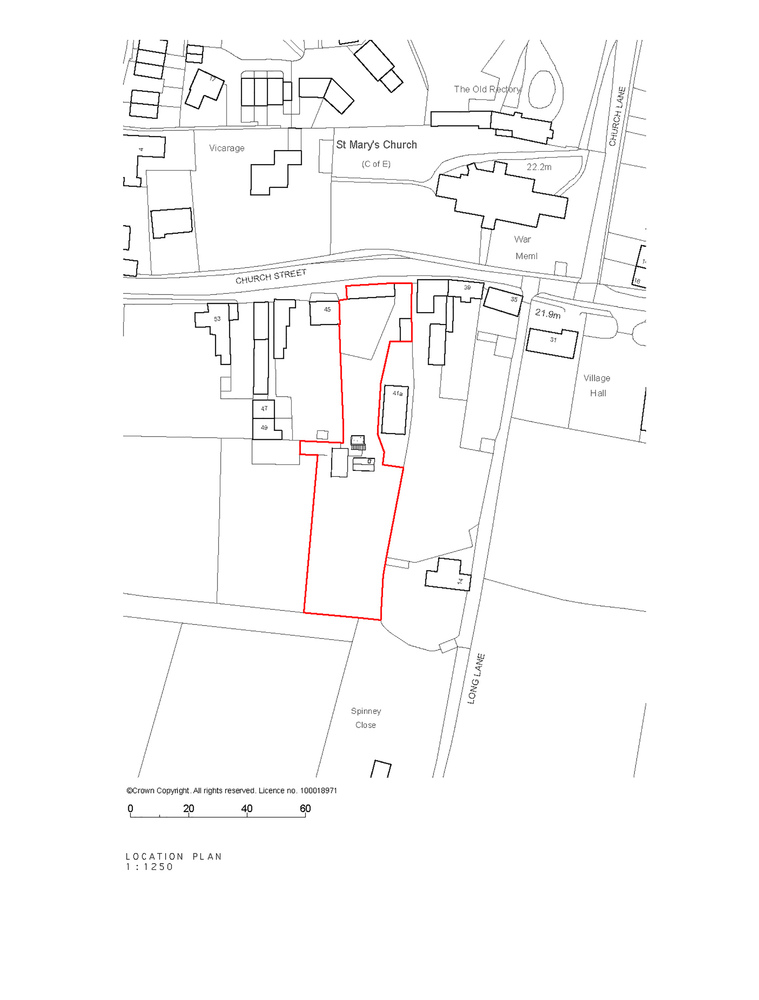
Site Plan 2
地盘图则2
简报要求拆除一个现有的车库,一个花园商店和一个旧猪场的遗骸。在他们的位置上,我们的客户要求建造一栋“工作室”大楼,里面有餐饮设施和浴室,我们的客户周末可能会“出去”,一栋花园储藏室,一端有一个办公室,一个车库和一个温室。
The brief asked for the demolition of an existing garage, a garden store and the remains of an old piggery. In their place our clients asked for a ‘Studio’ building’ with catering facilities and a bathroom, where our clients might ‘go away’ for the weekend, a garden storage building with room for an office at one end, a carport and a greenhouse.
© Justin Paget Photography
贾斯汀·帕杰摄影
以最初的猪场墙为线索,我们在当地的石灰岩上建造了一系列不同高度和方向的新墙,这些石灰岩是由这些石灰岩建造的,在沃明顿和其他北安普敦郡的村庄中非常普遍。
Taking the original piggery walls as a cue, we created a series of new walls of various heights and orientations in the local coursed limestone from which the main house is constructed and that is so prevalent in Warmington and other Northamptonshire villages.
© Justin Paget Photography
贾斯汀·帕杰摄影
这些新建筑物是从这些墙壁上冒出来的,扬帆而过,或悬挂在墙上。我们以各种不同的方式,使用有限的未装饰的“农业”材料,锯掉落叶松木材(垂直随机宽度覆盖层、超大的瓦和车棚种植的屋顶)、瓦楞纸铝和Cor10钢,我们试图在建筑物之间创造一种放松的非正式性,就好像它们已经在需要的时间内进入工地和墙上一样。
The new buildings emerge from, sail over or hang off these walls. Using a limited palette of unadorned ‘agricultural’ materials in a variety of different ways, sawn larch timber, (vertical random width cladding, oversized shingles and framing to the carport planted roof) corrugated aluminium and Cor10 steel, we have tried to create a relaxed informality between the buildings as if they have accreted themselves into the site and onto the walls over a period of time as needs required.
© Justin Paget Photography
贾斯汀·帕杰摄影
Studio Section
演播室组
在工作室内部,我们重复了随机宽度垂直覆盖在外面,虽然这一次,它被规划和处理的碱液和蜡整理,以保持它的颜色。它是对接,以允许木材移动和自然裂缝和起伏出现在木板上。
Internally in the studio we have repeated the random width vertical cladding on the outside, though this time it is planed and treated with a lye and a wax finish to maintain its’ colour. It is butt jointed to allow the timber to move and natural cracks and undulations to appear across the boards.
© Justin Paget Photography
贾斯汀·帕杰摄影
Architects Ashworth Parkes Architects
Location Warmington, United Kingdom
Category Refurbishment
Area 78.0 sqm
Project Year 2015
Photographs Justin Paget Photography
客服
消息
收藏
下载
最近


































