查看完整案例


收藏

下载
© Bacteria Photography, Eric Dinardi
细菌摄影,Eric Dinardi
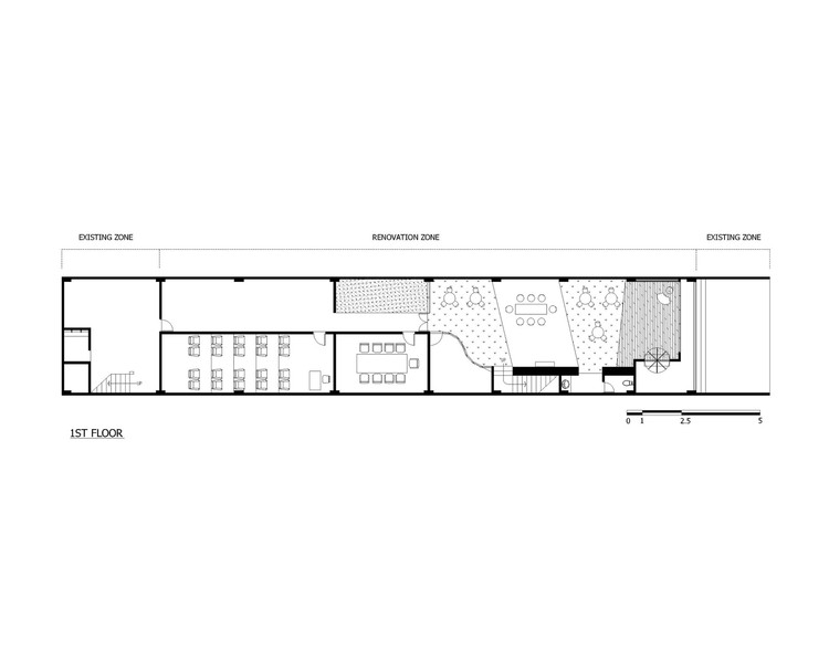
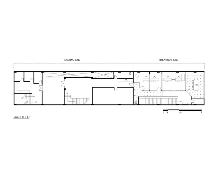
架构师提供的文本描述。项目地点在印度尼西亚Jalan Sunda万隆Jawa Barat。业主要求我们的工作室对现有建筑的第一层和第二层进行翻修,而第三层则保持原状。
Text description provided by the architects. The project location was at Jalan Sunda Bandung Jawa Barat Indonesia. The owner asked our studio to renovate the first and second floor of the existing building, while the third floor was left untouched.
Floor Plan
© Bacteria Photography, Eric Dinardi
细菌摄影,Eric Dinardi
Floor Plan
主要的想法是给办公室提供一个随意和专业的形象。这间办公室并不是正式而严格的,但我们希望它就像一家咖啡厅,在外面闲逛很舒服,这样员工就能很好地沟通。
The main idea was to give a casual and professional image to the office. The office was not meant to be formal and strict, but we wanted it to be like a cafe, comfortable to hang out so that the employee could communicate well.
© Bacteria Photography, Eric Dinardi
细菌摄影,Eric Dinardi
使用的材料是裸露的装饰砖、油毡地板、松木天花板和草状地毯,以及用作家具的实木。一些家具是从旧办公室运来的,以节省开支。
The material used was exposed decorative bricks, parquette floor, pine wood ceiling and grasslike carpet, and solid wood for the furniture. some furniture was brought from the old office to save budget.
© Bacteria Photography, Eric Dinardi
细菌摄影,Eric Dinardi
Architects Dinardithen Studio Bandung
Location Jl. Sunda, Kota Bandung, Jawa Barat, Indonesia
Category Offices Interiors
Principal Architect Paul Dinardi and Yulia Then
Project Architect Samsul Azis
Project Year 2015
Photographs Bacteria Photography, Eric Dinardi
客服
消息
收藏
下载
最近

















