查看完整案例


收藏

下载
© Julian Weyer
朱利安·韦耶
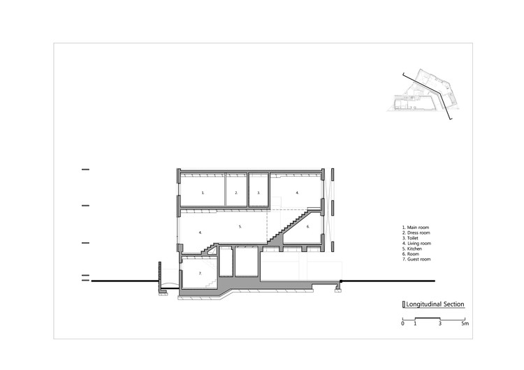
架构师提供的文本描述。别墅U是一栋两层楼高的独栋住宅,靠近奥胡斯,位于风景秀丽的环境中。这座房子,充分利用了三面的景观和接近自然的环境,围绕着一个高、双高的中央空间,带有天窗,还有一个雕塑楼梯和砖砌壁炉,提供充足的空间展示艺术作品。
Text description provided by the architects. Villa U is a two-storey single family home near Aarhus located in beautiful surroundings with scenic views. The house, which takes full advantage of the view and its proximity to nature on three sides, is organised around a tall double-height central space with skylights, accompanied by a sculptural staircase and brick fireplace offering ample space to exhibit works of art.
© Julian Weyer
朱利安·韦耶
这个房间是房子的心脏,把每个房间都绑在一起,两层都可以看到开阔的景色。
This room is the heart of the house, tying together every room with open views spanning both floors of the home.
Ground Floor Plan
底层和上层被设计成镜像的平行图,在这两个层次上都创造了一系列开放的、覆盖着的露台和壁龛,由一个黑色的、带着温暖色调的硬木模型的内部衬里组成的黑色点缀锌的正面构成。
The ground floor and upper floor are designed as mirrored parallelograms, creating a vast array of open and covered terraces and niches on both levels, framed by a facade of dark patinated zinc with a warm-toned inner lining of hardwood mouldings.
© Julian Weyer
朱利安·韦耶
这所房子配有专用的住宅电梯,可供轮椅使用。底层设有起居室、厨房和卧室,可直接进入周围景观中的浇铸露台,以及综合车库延伸的门厅和公用室。
The house is equipped for wheelchair use with a special residential elevator. The ground floor has a living room, kitchen and bedrooms with direct access to cast terraces in the surrounding landscape, as well as a foyer and utility room in extension of the integrated carport.
© Julian Weyer
朱利安·韦耶
楼上有一个面向东西方的露台客厅,以及一个有自己浴室、步入式壁橱和晨间露台的大卧室。车顶是一个绿色屋顶花园的家。
The upper floor features a living room with terraces facing both east and west, as well as a large bedroom with its own bathroom, walk-in closet and morning terrace. The carport roof is home to a green roof garden.
© Julian Weyer
朱利安·韦耶
大瓷砖地板,彩色橡木地板,手工厨房设备和自定义烧砖提供了一个对比平衡的房子的轻色调,形成纹理表面,突出了不断变化的光线。房子靠近绿色的环境是由于慷慨的,地板到天花板的玻璃墙和流动之间的室内和室外过渡。
Large tile floors, pigmented oak floors, handmade kitchen units and custom-fired brick provide a contrasting balance with the house’s light tones, forming textural surfaces that accentuate the ever-changing light. The home’s proximity to green surroundings is enhanced by the generous, floor-to-ceiling glass walls and flowing transitions between indoors and out.
Architects C.F. Møller
Location Aarhus, Denmark
Category Houses
Area 200.0 sqm
Project Year 2015
Photographs Julian Weyer
客服
消息
收藏
下载
最近




























