查看完整案例


收藏

下载
© Alejandro Rodríguez
(Alejandro Rodríguez)
架构师提供的文本描述。在AALTER,Kiekens的房子从一片令人印象深刻的风景中升起,不断出现在画面中,作为一对夫妇和他们的客人在和平舒适的气氛中的家。
Text description provided by the architects. In Aalter, the Kiekens´s House rises from an impressive landscape to be constantly in the picture and function as the home to a marriage couple and their guests in a peaceful and cozy atmosphere.
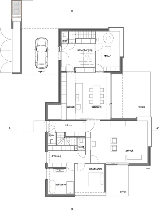
Ground Floor Plan
别墅的位置与以前的仓库所在的位置相同,就在街道入口前。这样,到达前门的小径穿过房子,在倾斜的屋檐下得到亲切的欢迎,与高尺度的房屋和树木形成鲜明对比。
The villa is placed in the same position where the former warehouses were situated, in front of the street entrance. In this way, the path to reach the front door guides through the house, under the slanted roof in order to obtain an intimate welcome in contrast with the high scale of the house and trees.
© Alejandro Rodríguez
(Alejandro Rodríguez)
房子是由两个分开的空间组成,其特点是其倾斜的屋顶,相对于平坦的屋顶和地形。一方面,较小的体积容纳存储,进入地下室和局里。另一方面,最大的容量包括入口,客厅,以及在一楼,一个阁楼/工作室为游客。
The home is made up of two separated volumes characterized by its slanted roofs, opposed to the flat roof and terrain. On the one hand, the smaller volume accommodates the storage, access to the basement and the bureau. On the other hand, the biggest volume contains the entrance, the living room and, on the first floor, a loft/studio for visitors.
© Alejandro Rodríguez
(Alejandro Rodríguez)
一个额外的体积,更小的规模和一个扁平的屋顶,连接两个质量。厨房和餐厅位于两个街区之间,面向花园,而卧室和浴室是隐藏在街道上有更多的隐私。
An extra volume, smaller in scale and with a flat roof, connects both masses. The kitchen and dining room are situated between the two blocks facing the garden, while the bedroom and bathroom are hidden from the street to have more privacy.
© Alejandro Rodríguez
(Alejandro Rodríguez)
选择黑色铝和黄樟子木作为连接卷,给入口处和卧室带来温暖的感觉。为了模糊从外到内的界限,感受外面生活的感觉,窗户和盒子有着相同的高度。
Black aluminium and afromosia wood is chosen for the connecting volumes, to give a warm feeling to the entrance and sleeping room. In order to blur the limits from outside to inside and perceive the feeling of living outside, the windows have the same height as the box.
© Alejandro Rodríguez
(Alejandro Rodríguez)
棕色的砖块和屋顶上的瓷砖是倾斜体积的选择材料,这样的话,墙壁和屋顶似乎就没有什么区别了。三扇大窗户,像一双大眼睛,从里面凝视着风景,给房子带来了强烈的个性。
Brown long bricks and tiles on the roof are the chosen materials for the slanted volumes, this way there seems to be no difference between the walls and the roof. Three big windows stand out , like big eyes, to contemplate the landscape from the inside and give a strong personality to the house.
Architects Architektuurburo Dirk Hulpia
Location Aalter, Belgium
Category Houses
Area 330.0 sqm
Project Year 2015
客服
消息
收藏
下载
最近

































