查看完整案例


收藏

下载
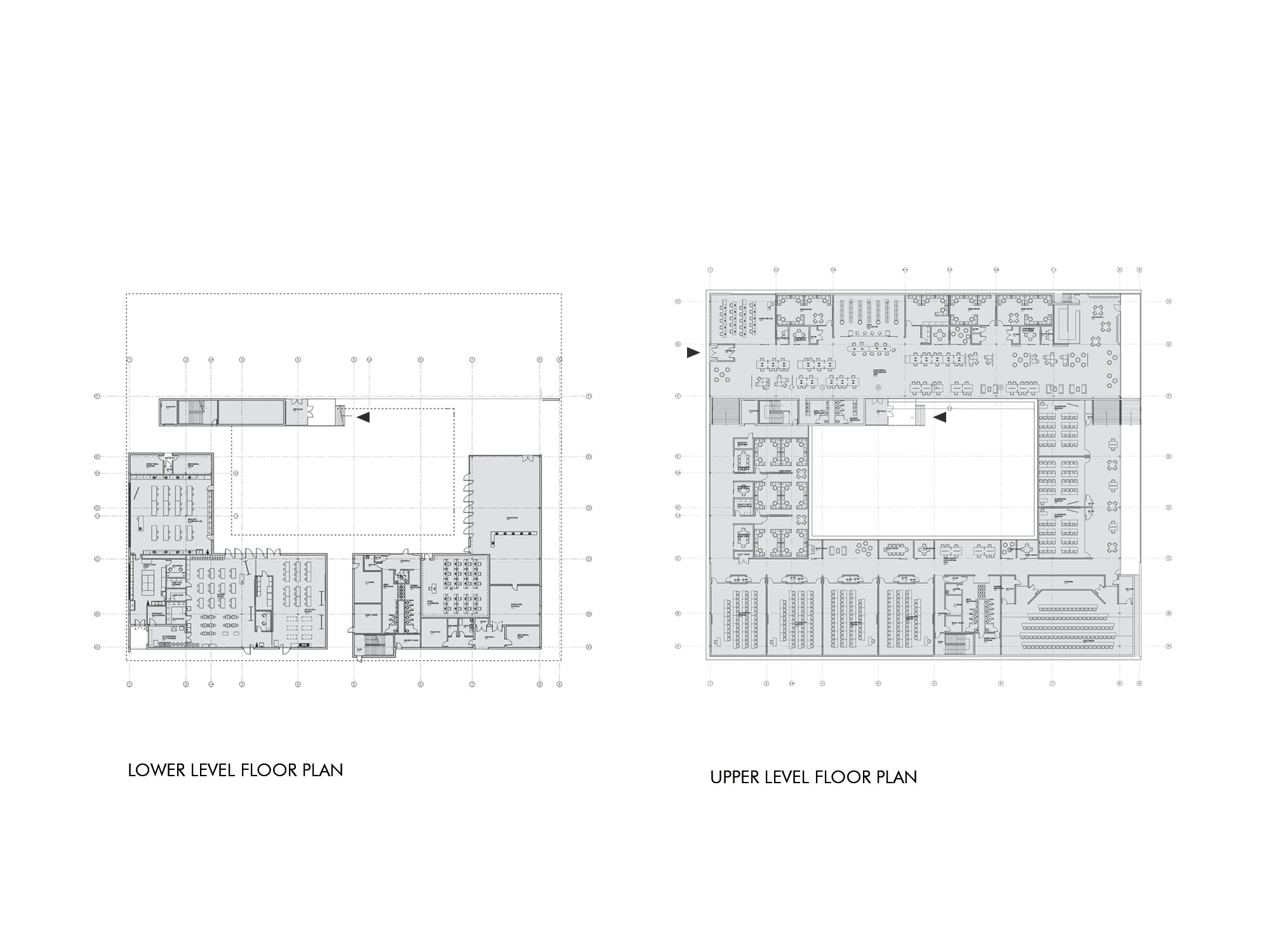
西侧一号大楼是作为一个试点项目设计的,目的是实施中新墨西哥州社区学院(CNM)最近向更具互动性和社会性的教育方式转变的模式。在编程过程中,古尔德·埃文斯与一群年轻的教师合作,以设想其他的方法,使学术服务和与教职员工的互动能够融入学生繁忙的日常生活。这一合作产生的两种规划策略-学习共用环和学院办公区-把学生的教育经验放在首位和中心。
通过使它成为主要的流通空间,并将它环绕在整个地板上,学习共用环成为该建筑的主要组织者,并使学生沉浸在可利用的学术资源的广度中。它提供了辅导、电脑使用、社交聚会和学习的空间。丰富多样的封闭和开放的突破空间直接位于教室之间,促进了教学和讨论的共生。随着环游世界的进展,他或她被不断变化的学习空间、诱人的书房和广阔的视野吸引到广阔的新墨西哥州景观中。环岛沿线的几个重要时刻,如中央服务台、咖啡厅和艺术展示柜,都是通过丙烯酸“CNM黄”板和快速可再生资源-一种可再生资源-卡利竹木化石胶合板的组合来区分的。教师宿舍分布在学习共用环和附近的教室和自修室,鼓励学生和教师每天以即兴的方式交叉。
这座建筑满足了2030年能源性能的挑战,采用了密集的日照照明策略、自动遮阳外壳以及安装地温井和太阳能电池板。
Firm Gould Evans
Type Educational › University
STATUS Built
YEAR 2013
SIZE 25,000 sqft - 100,000 sqft
Photos Caleb Alvarado, Patrick Coulie, Art Gray
keywords:architecture, architecture news, interiors, interior design, portfolio, spec, brands, marketplace, products Central New Mexico Community College Westside 1 Building
关键词:建筑、建筑新闻、内部设计、室内设计、产品组合、规格、品牌、市场、产品中心新墨西哥社区学院Westside1大楼
客服
消息
收藏
下载
最近




















