查看完整案例


收藏

下载
我们的项目的目的是建立一个社区,使用一个简单和众所周知的设计住房模块。
小房子是美国古典房屋的简化:他们有一个前院,一个后院和两个分裂的体积被一个倾斜的屋顶覆盖(这一点允许在未来安装太阳能电池板在南侧的斜坡上)。
这些单元被安排在地块的东边和西边,因此在中间两个公共空间:一个社区建筑和一个游乐场/广场。
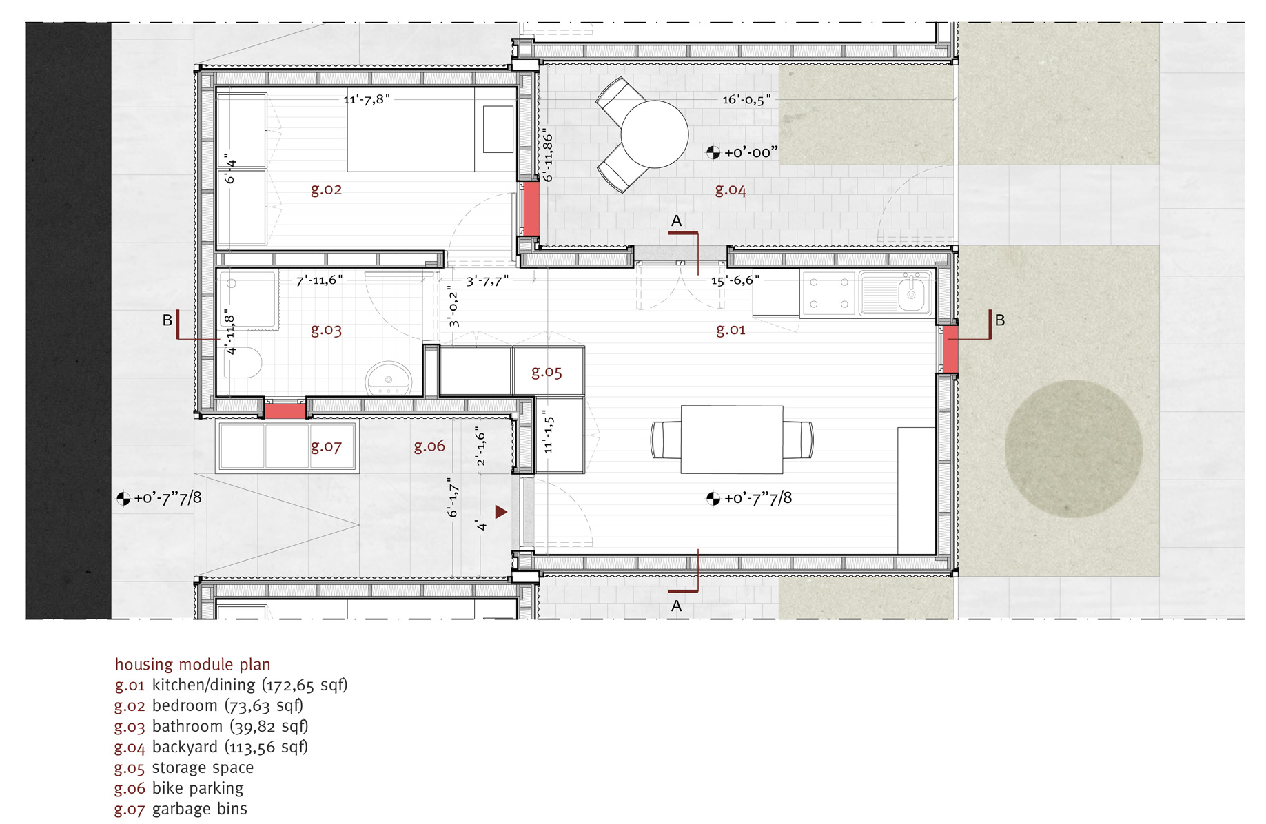
住宅模块分为两个不同高度的部分:在较低的部分,面向街道,浴室和卧室发生,而较高的地方是居住/用餐/厨房。从这间“社交”房间里,有通往后院的通道,一个面向社区内部空间的露台。
不同的高度和倾斜的屋顶将避免在一个“复制粘贴”空间的感觉。这一意愿也是通过绘制两种不同颜色的住房模块来表示的(任何客人都可以根据机构改变颜色)。
该结构是一个木制框架(2“x6”钉在24“中心)与金属包层(瓦楞纸)。
公共空间分为三个“盒子”,每个主要功能一个:办公空间、会议场所和洗衣设施(有独立的通道)。
------------------
设计:/-工作室(M.Cecchi,V.distante)
Firm Vito Distante Architetto
Type Residential › Multi Unit Housing
STATUS Concept
SIZE 3000 sqft - 5000 sqft
BUDGET $10K - 50K
keywords:architecture, architecture news, interiors, interior design, portfolio, spec, brands, marketplace, products Tiny Homes, Chicago, USA
关键词:建筑,建筑新闻,室内设计,组合,规格,品牌,市场,产品微型家庭,芝加哥,美国
客服
消息
收藏
下载
最近









