查看完整案例


收藏

下载
© Park Young-Chae
朴永哲
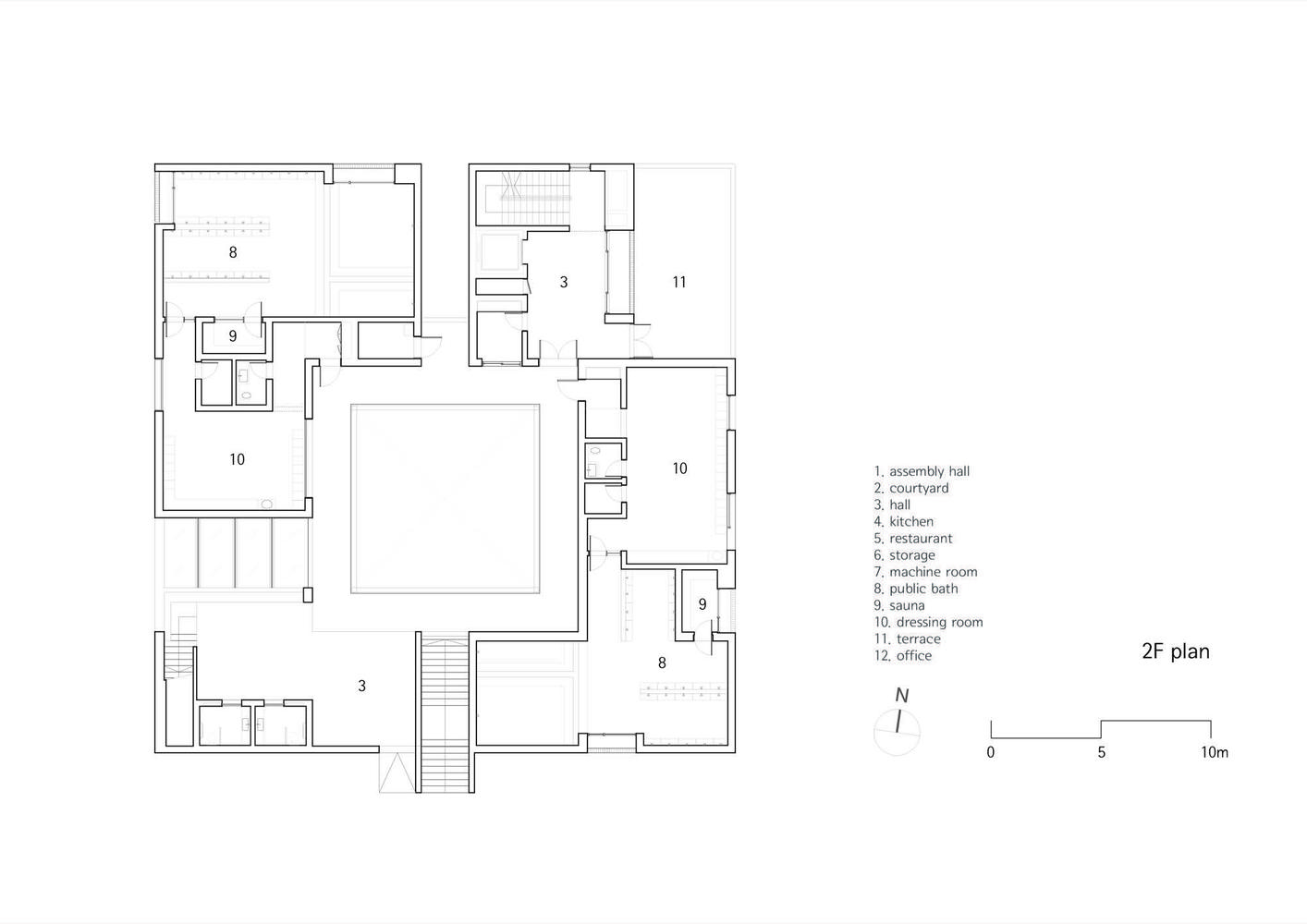
架构师提供的文本描述。位于乔兰姆郡阿普海多的社区中心位于一个特殊的地点,并且有一个特别的项目。首先,这是我第一个在岛上建造的建筑项目。第二,建筑的主要项目是为村里的老人提供公共浴室和餐厅。这些老人占渔村人口的大多数,他们家里没有像样的洗浴设施。
Text description provided by the architects. The Community Center in Aphae-do, Shinan-gun, Jeollanam-do is located on a special site, and has a special programme. First of all, it was my first building project to be built on an island. Second, the main programme of the building was the public bath and restaurant for the elders in the village. The elders, who make up most of the population in the fishing village, do not have a decent bathing facility in their home.
© Park Young-Chae
朴永哲
© Park Young-Chae
朴永哲
因此,公共浴室是必要的,它将成为社区的中心。就像罗马时代的加拉卡拉浴场一样,这个公共浴室将成为全岛最重要的公共空间。几年前,我在贡州市设计社区中心时学到了一课。对于像我这样的普通城里人来说,四季都是绿油油的、富饶的稻谷。六个月后,当我再次访问这个网站时,我发现一个半透明的薄膜已经涂在大窗户上了。他们不得不遮住窗户,因为稻田的风景提醒农民他们需要做的工作,这无助于他们放松。
Therefore, a public bath was necessary and it was going to be the centre of the community. Just like the Baths of Caracalla in the Roman Era, this public bath was going to be the most important public space in the whole island. I've learned a lesson while designing the community center in the city of Gongju years ago. For ordinary city folk like me, the verdant, rich paddy through the seasons. When I revisited the site after six months away I found a translucent film had been applied to the large window. They had to cover up the window, because the scenery with the rice paddy reminded the farmers of the work they needed to do, which did not help them to relax.
© Park Young-Chae
朴永哲
© Park Young-Chae
朴永哲
回想起这一课,我尽量避免对工地的看法,而是在内部庭院创造了一个开口。采用挫折法尽可能地增加光线。对于总是被水包围的岛民来说,院子里建了一个小池塘,这样人们就可以把水围起来。在这个社区中心,人们可以聚集在水面上放松,而不用看到他们的工作地点。
Recalling the lesson, I tried to avoid the views towards the worksite and created an opening towards the inner courtyard instead. A setback method was used to bring in more light as possible. For the islanders, who are always surrounded by water, a little pond was created in the courtyard so the people can surround the water. In this Community Center, people can gather around the water and relax without visibility of their work site.
© Park Young-Chae
朴永哲
© Park Young-Chae
朴永哲
Architects Hyunjoon Yoo Architects
Location Sinan-gun, Jeollanam-do, South Korea
Category Community Center
Design Team Heo Jinsung, Son Insil, Park Jungkyu, Kwon Jinhee, Ham Seungh,Hyunjoon Yoo
Client Shinan-gun office
Area 604.07 m2
Project Year 2016
客服
消息
收藏
下载
最近
































