查看完整案例


收藏

下载
© Jack Hobhouse
杰克·霍伯斯
架构师提供的文本描述。兰贝思沼泽地房子被闲置了10多年,是一栋两层楼高的挂牌房屋,位于伦敦市中心的鲁佩尔街自然保护区内。保护区的名称最早是由约翰·帕默·鲁佩尔在20世纪80年代开发的。鲁佩尔是一名黄金精炼厂,他和家人住在迈莫特街16号,当时这条街被称为“十字街”。鲁佩尔为工匠们开发了这块土地-以简陋的砖砌,两层楼高的露台房屋的形式,面向传统的街道。
Text description provided by the architects. Lambeth Marsh House had been left unoccupied for over 10 years and is a two storey listed house situated within the Roupell Street Conservation area in central London. The conservation area designation was first developed by John Palmer Roupell in the 1820’s. Roupell, a gold refiner, lived with his family at 16 Meymott Street, which was at that time known as ‘Cross Street’. Roupell developed the land for artisan workers – in the form of modest, brick built, two storey terraced houses fronting conventional streets.
© Jack Hobhouse
杰克·霍伯斯
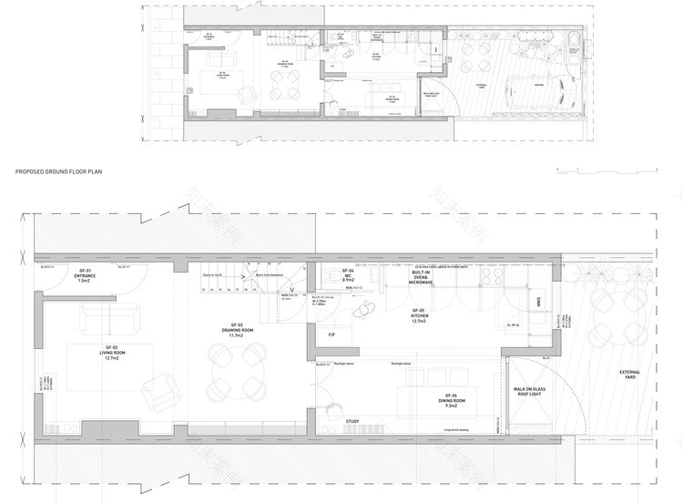
Plan Proposed 1
拟议计划1
© Jack Hobhouse
杰克·霍伯斯
我们的理念和挑战是为所有楼层注入新的生命,同时尊重这一名单所列建筑的遗产,并恢复一些丢失的历史细节。
Our concept and challenge was to breathe new life into all floors whilst respecting the heritage of this listed building and restoring some of the lost historic detailing.
© Jack Hobhouse
杰克·霍伯斯
现有建筑物的破旧结构需要用一种敏感的方法进行广泛的翻修。恢复板取代,木板墙壁,设计和绕过他们的原始状态庆祝这座建筑的历史。
The run down fabric of the existing building required extensive refurbishment with a sensitive approach. Restoring the panelled replaces, wood panelling to walls, architraves and skirting to their original condition celebrates the history of this building.
© Jack Hobhouse
杰克·霍伯斯
增加了一个当代后方和侧面的延伸称赞这些特点和更新的建筑。一个大的开放式居住空间创造了一个新的轻盈的空间,而一个新的玻璃屋顶延伸将光线注入建筑的规划。
The addition of a contemporary rear and side extension compliments these features and updates the building. A large open plan living space creates a new light airy space whilst a new glass roof extension feeds light into the plan of the building.
© Jack Hobhouse
杰克·霍伯斯
在整个传统环境中,现代家具更新了传统空间。许多古董椅子被翻新和重新软垫和极简轻配件恭维同情的内部。物质是非常重要的,以帮助生产一个敏感的当代设计,同时协助我们的环保方法。
Throughout the traditional settings modern furniture updates the traditional spaces. Many antique chairs were refurbished and re-upholstered and minimalist light fittings compliment the sympathetic interior. Materiality was very important to help produce a sensitive contemporary design, whilst assisting our conservationist approach.
© Jack Hobhouse
杰克·霍伯斯
Architects Fraher Architects
Location London, United Kingdom
Category Refurbishment
Area 140.0 sqm
Project Year 2015
客服
消息
收藏
下载
最近




























