查看完整案例

收藏

下载
© Park Young-Chae
朴永哲
架构师提供的文本描述。单层Hanok:Hanok 1.0
Text description provided by the architects. Single Floor Hanok : Hanok 1.0
第一代Hanok是一种低密度住宅类型,建在一层楼上。整个房子是由多个建筑物组成的:主楼、第二卧室建筑和客房建筑。汉诺克有两个截然不同的空隙空间:第一,向天空开放的庭院是一条吸引自然的通道;第二是通风良好的空间,具有内外空间的特点。这种哈诺克是20世纪由房屋销售商以城市风格重新创造出来的。这是一楼的Hanok1.0型
The first generation Hanok is a low density housing type built on a single floor. The whole house is made up of multiple buildings: the main building, a second bedroom building, and the guest bedroom building. A Hanok has two distinct void spaces: first, the yard opened to the sky is a passageway inviting nature and daecheong, the second void is a well ventilated space, which has character of both interior and exterior space. This kind of Hanok was recreated in an urban style by the house sellers in the 20th century. This is the first floor type Hanok 1.0
© Park Young-Chae
朴永哲
三湾公寓:Hanok 2.0
Three-bay Apartment : Hanok 2.0
自快速城市化时期以来,许多韩国家庭选择迁入公寓。通用的三湾公寓被称为Hanok2.0。一个屋顶被安置在现有的汉诺克计划的顶部,创造了一个叫做“起居室”的新空间。唯一的区别是,室外庭院变成了室内起居室,并保持了与老哈诺克相似的构图。代之以餐厅。三湾公寓成功改造了哈诺克,适合于高层建筑.
Ever since the period of rapid urbanization, many Korean households chose to move to apartments. The universal three bay apartments are known as Hanok 2.0. A roof was placed on the top of the existing Hanok plan, creating a new space called the 'living room'. The only difference is that the outdoor yard is turned into an interior living room, and kept a similar composition to the old Hanok. The daecheong is replaced by a dining space. Three bay apartments are a successful transformation of the Hanok, suited to the high-rise structure.
© Park Young-Chae
朴永哲
© Park Young-Chae
朴永哲
3种大杂牌:Hanok 3.0
3 Types of Daecheong : Hanok 3.0
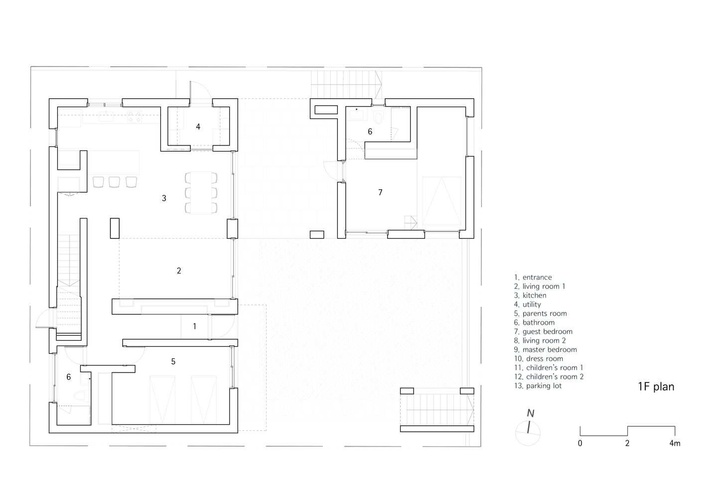
最近,许多家庭离开公寓,去独立的房子。然而,单层Hanok不能保留当代生活所需的密度。该房子的设计,以保持两个或更多层的高密度空间,也有一个大成一样的空间,这可以是一个过渡空间之间的内部和外部。在起居室、主卧室、客房、父母室和儿童房之间采用了“三种类型的空隙”。这是Hanok3.0版本,它采用了一种多层类型、一种开放类型和一种可变类型。
Recently, many households are leaving apartments for detached houses. However, the single floor Hanok cannot withhold the density required for the contemporary life. The house was designed to maintain both high density space of two or more floor levels and also have a daecheong-like space, which can be a transition space between interior and the exterior. This house adopted 'three types of void space' in between the living room, master bedroom, guest bedroom, parent's room, and the children's room. This is the Hanok 3.0 version, which has adopted a multi-floor type, an open type, and a variable type.
© Park Young-Chae
朴永哲
Architects Hyunjoon Yoo Architects
Location Daejeon, South Korea
Category Houses
Design Team Heo Jinsung, Kim Jihyun, Kim Namsu, Hyunjoon Yoo
Area 303.9 m2
Project Year 2015
客服
消息
收藏
下载
最近























