查看完整案例


收藏

下载
© Brigida Gonzalez
c Brigida Gonzalez
© Brigida Gonzalez
c Brigida Gonzalez
架构师提供的文本描述。P屋是来自汉堡的一个七口之家的度假之家。这座房子取材于传统的Allg u建筑,但其结果却是一座独特的当代建筑。
Text description provided by the architects. House P is a holiday home for a family of seven from Hamburg. The house takes ques from traditional Allgäu architecture, but results in a unique, contemporary building.
© Rena Lorenz
雷娜·洛伦兹
© Rena Lorenz
雷娜·洛伦兹
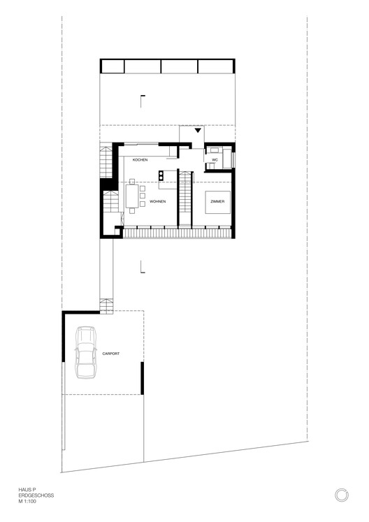
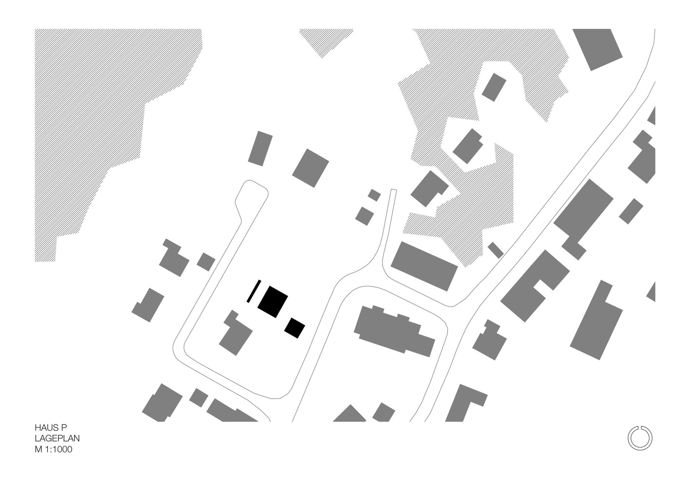
P屋的几何形状是通过最大限度地利用物业的允许建筑围护、一个典型的带有浅门式房顶和完全较低层的Allg u房子,然后沿着其中轴线从该体积中切割出一个斜截面来生成的。从一座建筑中出现了两座:一座房子和一个储藏室。之间的空间为家庭提供了一个受保护的户外活动庭院。由此产生的倾斜后立面,加上一个悬臂楼梯,反过来允许一个人到达干涸的地面上的主要入口。建筑物倾斜的形状也导致了一个令人印象深刻和慷慨的内部空间。在主客厅里,有一个大的画窗,可以俯瞰周围的山脉。上下层是由一个带画廊的双层起居室和餐厅连接起来的。壁炉提供舒适和温暖。高层的阁楼可以让人放松、阅读或通过窗户凝视,让人直接俯瞰天空。地下室提供了一个额外的地方,有两间私人卧室,一间浴室和一间桑拿浴室。
House P’s geometry was generated by maximizing the property’s allowable building envelope, a classic Allgäu House with a shallow gabled roof and a full lower level, and then slicing an oblique section from that volume along its center axis. From one building emerge two: a house and a storage shed. The space between offers the family a protected courtyard for outdoor activities. The resulting slanted rear facade together with a cantilevering stair in turn allow one to reach the main entrance on dry ground. The building’s canted shape also results in an impressive and generous interior space. In the main living room, a large picture window offers majestic views of the surrounding mountains. The upper and lower floors are linked by a double-height living and dining room with a gallery. A fireplace provides comfort and warmth. A loft at the upper level invites one to relax, read or star-gaze through windows positioned to afford direct views of the sky. The basement offers an additional place to retreat with two private bedrooms, a bath and a sauna.
© Rena Lorenz
雷娜·洛伦兹
© Rena Lorenz
雷娜·洛伦兹
木材是一种区域性建筑材料,由建筑物的主要建筑和立面组成。立面的木壳在组装前烧焦了。这给木材一个自然和环境友好的天气保护和房子不寻常的黑色外观。屋内较低层的核心隔热混凝土与木材形成对比。它为上面的木屋提供了坚实的基座。
Wood, a regional building material, comprises both the building’s main construction and facade. The facade’s timber shell is charred before assembly. This gives wood a natural and environmentally friendly weather protection and the house its unusual black appearance. Core-insulated exposed concrete at the house’s lower level contrasts the wood. It provides a solid plinth for the timber house above.
© Brigida Gonzalez
c Brigida Gonzalez
Architects Yonder – Architektur Und Design
Location Weiler-Simmerberg, Germany
Category Houses
Project Leaders Benedikt Bosch, Katja Knaus
Design Team Leonhard Clemens, Felix Krummlauf
Area 249.0 sqm
Project Year 2015
Photographs Brigida Gonzalez , Rena Lorenz
客服
消息
收藏
下载
最近













































