查看完整案例


收藏

下载
架构师提供的文本描述。可供建造这座新建筑物的土地位于山脚下。东芒格在Gyeongsangnam-do Geoje的一个叫Gabaeri的小村庄。这个地方很安静,风景很美,而且有自己的魅力,因为它有海景。这些业主是一对夫妇,目前住在通永,但在这里经营着一个养鱼场。他们正计划建造一座房子,与年迈的母亲和女儿住在一起,并在女儿的建议下会见了一位建筑师,建议他们开始建造一座特别的小房子。
Text description provided by the architects. The land available for the new building is located in the foothills of the Mt. Dongmang in a small village called Gabaeri in Geoje, Gyeongsangnam-do. This place is quiet and its scenery is really beautiful and, moreover, possesses a charm of its own since it has a sea view. The building owners are a couple who currently live in Tongyeong but operate a fish farm here. They were planning to build a house to live with elderly mother and their daughter and met an architect on the recommendation of their daughter to start to build a little special house.
© Shin Kyungsub
3.Shin Kyungsu
当我第一次参观现场时,施工前有一个当地的土木工程承包商,一边随意堆放巨石,一边分割土地。土地形成均匀,忽略了地形的流动和海拔的差异,这给土地的形成留下了许多不完善的地方。由于土地已经成熟,在与自然的关系中有潜力,所以我决定利用它。
When I first visited the site, the construction has been preceded by a local civil engineering contractor while piling up boulder stone randomly and dividing the land as well. It leaves much to be desired since the land was formed uniformly and it ignores the flow of landform and difference of elevation, too. As the land is ripe with potential in the relationship with nature, so I decided to take advantage of it.
© Shin Kyungsub
3.Shin Kyungsu
对客户来说,海意味着家,意味着生活和生活。因此,最重要的是,他们最关注的是他们与海洋的关系。‘Younghaeawon(迎海雅院)’代表着一座欢迎大海的房子,它被做成了向大海开放的结构,以便成为一个与海洋保持一致的避难所。芦苇地作为一层楼高的房子,位于屋后和山的后面.以东芒北缘为背景。
For the client, the sea means home, ground for living and life. So above all, the greatest focus was set on their relationship with the sea. 'Younghaeawon(迎海雅院)' which represent a house greeting sea was made into structure open to the sea in order to be a shelter to keep in tune with the sea. As a one-storied house, reed field in the rear of house and Mt. Dongmang beyon were used as a background.
© Shin Kyungsub
3.Shin Kyungsu
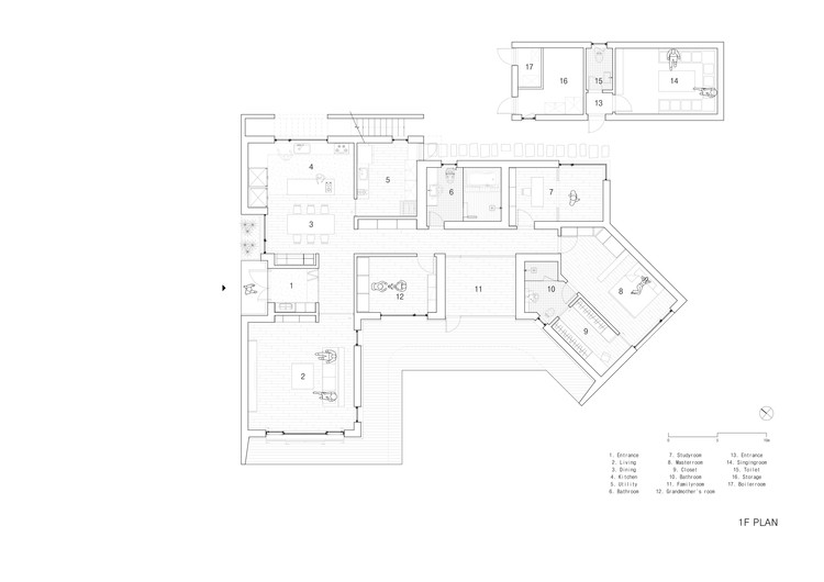
因为在人们每天都住的房子里,用户的满意是最重要的,所以我把注意力集中在空间构图上,这对他们的生活方式来说是可以满足的。此外,我还考虑了可以丰富空间经验的新建议。我在客厅和厨房之间放了一个入口,形成了过渡区。通过安装一个大的门口袋,所以它可以作为一个客厅作为一个大房间。在走廊的中央,我提出了一个家庭房间作为室内和室外的缓冲空间。石灰石作为外墙朝向内壁的涂饰材料,与起居室不同。
Since the satisfaction of users is most important in a house where people live every day, they So I focused on organizing space composition which is satiable for their lifestyle. In addition, I also considered new proposal that can enrich the spatial experience. By placing a entrance between a living room and a kitchen, I made the transition area. And by installing a large door pockets, and so it can be used as a living room as a large room. In the middle of the corridor, I proposed a family room as a buffer space of the indoor and outdoor. As limestone is used as a finishing material of the outer wall toward the inner wall, it was differentiated from the living room.
© Shin Kyungsub
3.Shin Kyungsu
© Shin Kyungsub
3.Shin Kyungsu
在裸露混凝土的情况下,在这个渔村,它是远远未使用的材料。然而,我使用熟悉的材料,如石头和木材的组合,以使人眼熟。我需要付出很大的努力才能详细地表达物质的每一个属性。通过与承包商的多次讨论与合作,逐步实现了这一目标。
In the case of exposed concrete, it is far unused material in this fishing village. However, I used combination of familiar materials e.g. stone and wood in order to look familiar. It requires much efforts for me to pay attention in detail to express each property of matter. Through many discussions and cooperation with contractors, it was realized one by one gradually.
© Shin Kyungsub
3.Shin Kyungsu
近年来,各种与施工有关的信息可以很容易地获得.因此,人们对住宅的需求也随之增加:居住者可以享受现代优势和新体验的住宅,适合居住者个性的住宅和稳定廉洁的住宅。此外,客户的水平已经提高,以区别一个好房子。虽然“永海湾(迎海雅院)”是一座位于一个小渔村的房子,但它证明了这座房子是由建筑师在建筑业主的充分理解和支持下用新材料和新格式建造的,而且它看起来非常漂亮,与大自然也很合拍。此外,它增加了用户的满意度,使他们能够感觉到美好的建筑使他们的生活更快乐。
Recently, a variety of construction-related information can be obtained easily. Thus, there's an increase demand for a house: house in which resident can enjoy modern edge and new experience, and residential house suitable for individuality of resident and stable and clean house. In addition, client's level has increased to distinguish a fine house. Although 'Younghaeawon(迎海雅院)' is a house located in a small fishing village, it proves that the house made with new material and format that architect tried with the full understanding and support of building owner and also, it looks very beautiful and goes well with nature. Moreover, it increase the satisfaction of users in order that they can feel that fine building makes their life happier.
Architects 2m2 architects
Location Geoje, South Korea
Category Houses
Architect in Charge Lee Junghee
Area 265.93 sqm
Project Year 2016
Photographs Shin Kyungsub
客服
消息
收藏
下载
最近




























