查看完整案例


收藏

下载
架构师提供的文本描述。一个人到底是怎么想到把大量混凝土浇筑到埃默特农舍的呢?当然,我们可以找到几个实际的原因(静力学、蓄热质量等.)。
Text description provided by the architects. How on earth does one come up with the idea of pouring a huge amount of concrete into an Emmental farmhouse? Certainly, one could find several practical reasons (statics, thermal storage mass or the like...).
© David Aebi
(C)David Aebi
© David Aebi
(C)David Aebi
对我们来说,这所房子需要一些粗糙和直接的东西,可以在以前的谷仓和干草屋建立自己的世界。
For us, the house needed something rough and immediate, something that could build up its own world in the former barn and hayloft.
Ground Floor Plan
1st Floor Plan
一楼图则
2nd Floor Plan
二楼图则
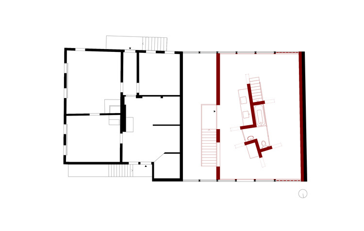
现在,一个混凝土物体穿过所有三层楼,支撑着旧屋顶。除了其结构特点,它拥有所有的浴室和厨房住宿,以及橱柜和储存空间。大窗户打开了视野,进入了令人印象深刻的阁楼。
A concrete object now cuts through all three floors and supports the old roof. In addition to its structural qualities, it holds all the bathrooms and kitchen accommodations, as well as cabinets and storage space. Large windows open up the view into the impressive attic.
© David Aebi
(C)David Aebi
Architects Freiluft Architektur
Location Trachselwald, Switzerland
Category Adaptive Reuse
Collaborator WAM Planer und Ingenieure AG
Area 240.0 sqm
Project Year 2015
Photographs David Aebi
Manufacturers Loading...
客服
消息
收藏
下载
最近
























