查看完整案例


收藏

下载
Courtesy of Fabrica Nativa Arquitectura
法布里卡·纳蒂瓦·阿奎图拉
架构师提供的文本描述。有多少故事没有人注意到,下面讲的是一个带着三个孩子的年轻离婚男子的故事(在这个国家很常见)-孩子偶尔来看望他,他与厄瓜多尔国家规定的每月津贴相对应,有基本工资,甚至学习改善他的住房是困难的。
Text description provided by the architects. How many stories exist that go unnoticed, the following tells the story of a young divorced man with three children (very common story in this country) the children occasionally visit him, he corresponds with a monthly allowance stipulated by the Ecuadorian state, with a basic salary and even studying it was difficult to improve his housing.
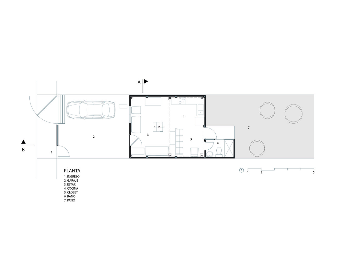
三十岁时,他住在紧急住房里,由于短暂的物质和时间的流逝,他的身体问题更加严重,他的祖父给他的房子宽约4.80米,深20米。考虑到这种情况,这家人决定筹集资金来改善房子。
Thirty years old, he lived in emergent housing with physical problems exacerbated by the ephemeral materiality and the passage of time, on a lot 4.80 m wide by 20 m deep given by his grandfather. Given the situation, the family decides to raise funds to improve the house.
Courtesy of Fabrica Nativa Arquitectura
法布里卡·纳蒂瓦·阿奎图拉
我们怀着极大的决心和想法,在有限的预算下,制定了回收一些现有材料的策略,开始了这个项目。在现有的4.80米乘5.50米的建筑中,我们回收利用:屋顶、卫生设施、四面墙中的三堵、浴室、用木板和刨花板制成的地板的一半。
With great determination and thinking of a strategy to recycle some of the existing materials, with a limited budget, we started the project. Of the existing 4.80 m by 5.50 m of construction, we recycled: the roof, sanitary facilities, three out of four walls, the bathroom, half the floor made of wooden slats and particle boards.
Courtesy of Fabrica Nativa Arquitectura
法布里卡·纳蒂瓦·阿奎图拉
干预涉及到平衡城市的物质和气候,第一步是用金属板材制成的屋顶,改善室内热环境,我们提高了房子的高度,增加了要加热的空气量,这使得我们在一天的大部分时间里都能保持良好的温度。正面和侧壁采用半透明聚碳酸酯回收板完成,白天使用自然光。夜间,室内光线向外投射。
The intervention involves balancing the materiality and climate of the city, the first step was to work with the roof made of sheet metal plates, to improve indoor thermal conditions we raised the height of the house, increased the volume of air to be heated, which allowed us to have a good temperature inside most of the day. The front and side walls are completed with translucent polycarbonate recycled sheets using natural light in the day. At night the interior light is projected outwards.
Axonometric
这第一个反应,让我们可以考虑一个替代的室内设计,适合他目前的生活方式。我们为所有的活动设计了一个容器:睡觉、吃饭、社交、梳妆和照顾孩子。第二个反应是结构,我们设计了相同的方形铁管,形成一个重复三次的框架,它的完成与相邻屋顶的水平线性形成了对比。
This first response allows us to think of an alternative interior design that fits his current lifestyle. We designed a single container for all activities: sleeping, eating, socializing, grooming and caring for children when they visit. The second response was the structure, we designed it with the same square iron pipes forming a framework that is repeated three times, its completion contrasts with the horizontal linearity of neighboring roofs.
Courtesy of Fabrica Nativa Arquitectura
法布里卡·纳蒂瓦·阿奎图拉
施工过程是由当地工人进行的,历时六周才完成,房屋的装修只允许使用色彩,这涵盖了房子统一使用的工艺块,混凝土,木材和金属,它给了内外的表现力。
The construction process was conducted with local labor, it took six weeks to complete, the finishes of the house only allow the use of color, this covers the house unifying the use of craft blocks, concrete, wood and metal; it gives its expressiveness both inside and outside.
Architects Fabrica Nativa Arquitectura
Location Guayaquil, Ecuador
Category Renovation
Project Architect Juan Solis Orellana
Construction Team Fabrica Nativa Arquitectura
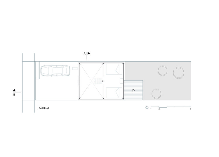
Project Area 96.0 m2
Project Year 2016
Manufacturers Loading...
客服
消息
收藏
下载
最近




























