查看完整案例


收藏

下载
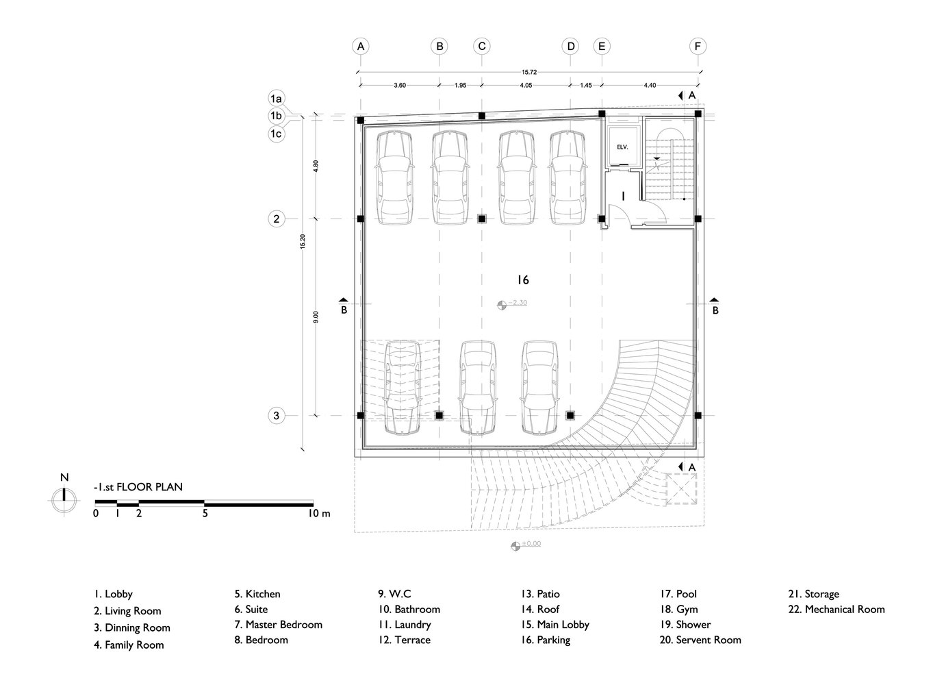
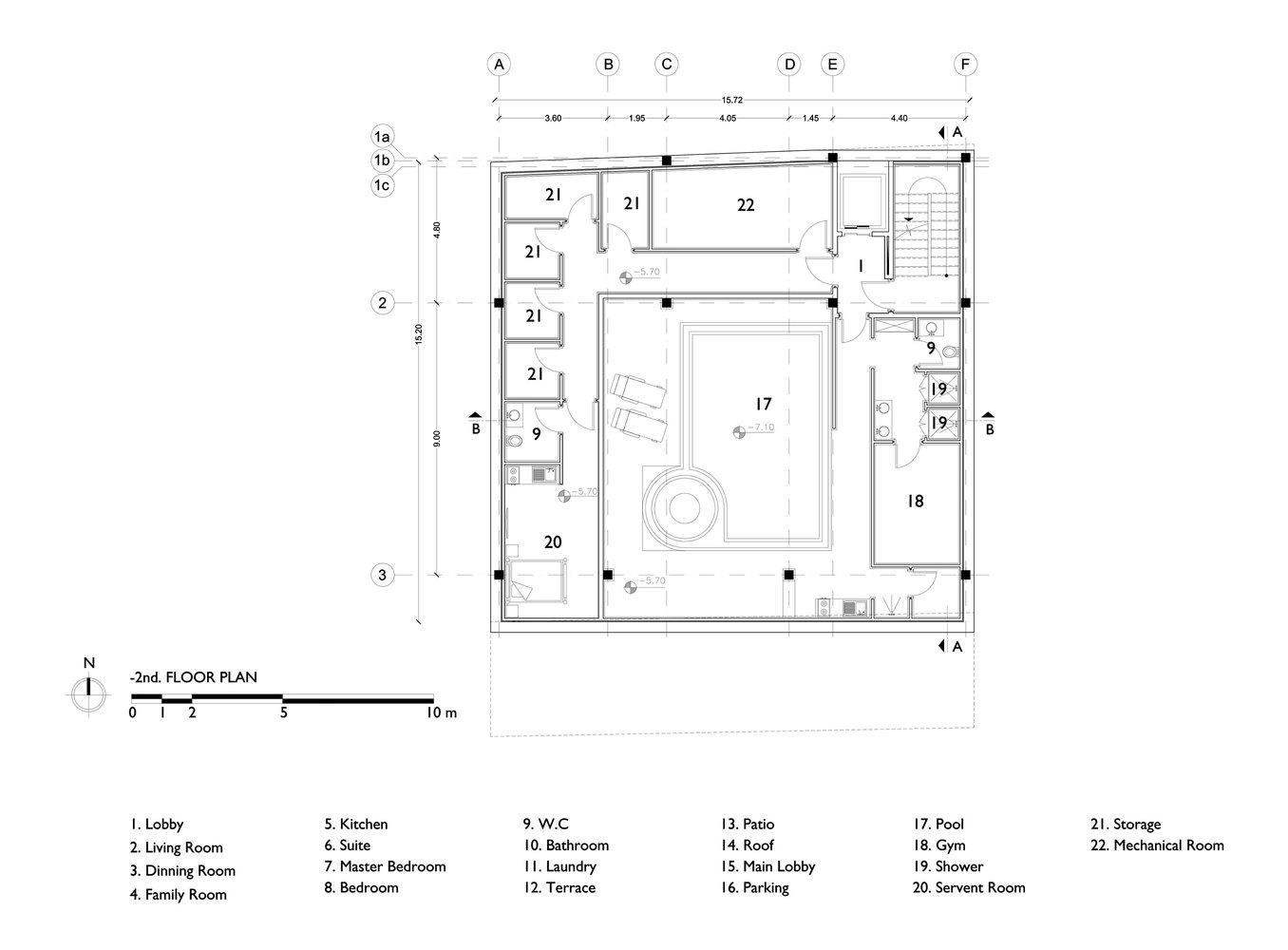
架构师提供的文本描述。该项目的地点位于德黑兰北部的一个邻近地区,由浓缩的集群建筑和狭窄的小巷组成。因此,大约有48平方米。m.占土地总面积350平方米。m.为了拓宽这条小巷而被市政法规忽视了。除了客户所需的物理程序外,这个问题还导致建筑物被压缩,停车场很难设计,建筑的质量也很坚固。
Text description provided by the architects. Project’s site is located in one of North Tehran vicinities which comprises of condensed cluster buildings and narrow alleys. Therefore, approximately an amount of 48 sq. m. of the total land area of 350 sq. m. was neglected by the municipality code in order to widen the alley. In addition to the client’s required physical program, this issue led the building to be extremely compressed, as well as parking lots to be hard to design and the mass of building to be solid for shaping.
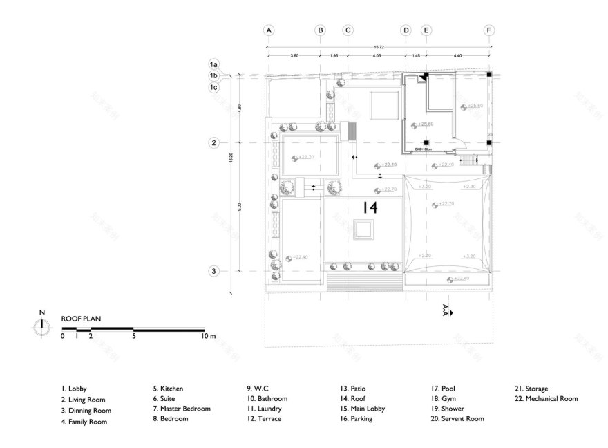
因此,建筑的突出特点被限制在各种各样的梯田上,与普通平地相比改变了天际线,以及主导主要外观的一种新的几何图案。所述模式为室内空间提供了最大的视野和自然光,而不让观察者识别故事安排和内部结构;同时,通过重新安排楼层、水平线和天际线,形成新的和不同的视图布局;只要挑战观察者的感知,就可以将建筑物作为一个整体来实现。
Consequently, Building’s outstanding features has been restricted to variety of terraces, altered skyline in comparison with regular flats and a new geometrical patterns which dominate the main facade. The said pattern provides maximum view and natural light into interior spaces, while illusively does not let observer recognize story arrangements and inner structures; in the meanwhile, it makes new and different view layout, by rearranging the floor story levels, horizontal lines and skyline; and this may lead the building to be realized as a unity so long as challenging the observers’ perception.
© Saeed Pirasteh
赛义德·皮拉斯特赫
立面的基本结构由大型矩形框架组成,框架由天然磨练的石灰华覆盖。二次有效层勾勒出与主料相似的图案和颜色的木方格板。在几何上,格子有方形的小洞,这激发了古波斯建筑以其著名的人性化价值。
Facade’s basic structure consisted of large-scale rectangular frames covered by natural honed travertine. The secondary effective layer outlines wooden cribriform panels used in similar pattern and color with the main material. Geometrically, the lattice has square holes in small-scale which inspires ancient Persian architecture with its famous humanized values.
Ground Floor Plan
1st / 2nd / 5th Floor Plan
1/2/5楼图
3rd / 4th Floor Plan
三楼/四楼图则
另一方面,通过点阵传导光不断地将外部感觉传递到室内空间,而房子内的灯光则会通过投下阴影和光线来调节谐波的移动。房子内部受到门面主题的影响,在大瓷砖和大片地区使用木材和天然石头,这促进了一个平静和平的居住场所。
On the other hand, conducting light through the lattice imparts the outer sense continuously into interior space, whereas lights inside the house would be adjusted due to the harmonic moves by casting shadows and lights. Inside the house has been influenced by façade’s theme using wood and natural stone in large tiles and vast areas, which promotes a calm and peaceful place to live .
© Saeed Pirasteh
赛义德·皮拉斯特赫
Architects S-A-L Design Studio
Location Tehran, Iran
Category Apartments
Architect in Charge Behrad Tondravi
Design Team Siamak Khaksar, Hiva Farajpour Bakhtiari, Faranak Foroughi, Soheil Ghasemi, Alireza Fazeli, Nilufar Moosavi, Nahid
Area 1900.0 m2
Project Year 2015
Photographs Saeed Pirasteh
客服
消息
收藏
下载
最近





























