查看完整案例


收藏

下载
© Vesa Loikas
c Vesa Loikas
架构师提供的文本描述。突厥城在其700年的历史中经历了许多变化,建筑反映了这一历史的不同阶段。建筑进步的最后阶段,最新的现代主义,由Ikituuri学生公寓展示。铜塔由建筑办公室Sigge有限公司设计。这是一座椭圆形的12层建筑,由Luvata Pori有限公司制造。这些绿色生活的正面磁带给建筑一个流线型和非凡的纹理感觉和外观。
Text description provided by the architects. The city of Turku has gone through many changes during its 700 years of history and architecture reflect different stages of that history. The last stage in architectural progress, newest modernism, is exhibited by Ikituuri student apartments. The copper tower was designed by Architecture Office SIGGE Ltd. It is an oval 12 story building with copper facades manufactured by Luvata Pori Ltd. These Green Living facade cassettes give the building a streamlined and extraordinary textural feel and look.
© Vesa Loikas
c Vesa Loikas
举行了建筑竞赛,Pekka M ki‘s Sigge有限公司的获奖作品被授予委员会。建筑工地位于一条主要的高速公路和图尔库学生基金会的学生家乡城市之间。Ikituuri大楼是用作生活区,但在城市景观中,它的功能也是一个地标。
An architectural competition was held and the winning entry by Pekka Mäki’s Sigge Ltd was awarded the commission. The building site is situated between a main motorway and Turku Student Foundation’s student home townscape. The Ikituuri building is to be used as living quarters, but in the townscape its function is also to be a land mark.
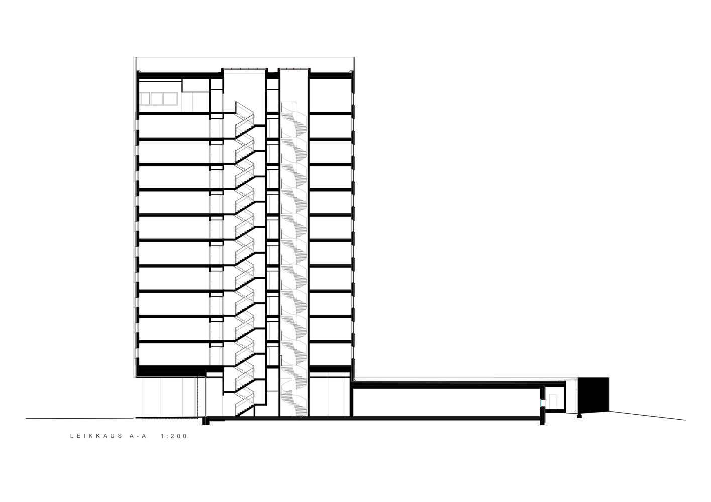
建筑质量分为地下室和塔楼两部分。在三角形的地下室里有供暖通空调和自行车使用的房间。楼梯和电梯位于中间,房间沿走廊呈径向分布。
The building mass is divided into two parts; Basement and tower. In the triangular basement there are rooms for HVAC and bicycles. Staircase and elevator are in the middle and rooms are situated in a radial way along the corridor along them.
© Vesa Loikas
c Vesa Loikas
每层有8间客房,单人间和双人间,面积30-45平方米。他们每个都有一个玻璃阳台。值得注意的是,椭圆形的形式在公寓内部也有明显的感觉和表现,但在装修或装饰方面没有造成任何困难。公寓的设计方式给人一种振奋人心的感觉。在最顶层有一个会议室,一个桑拿和一个大的太阳甲板。甲板以正面的形式清晰可见,并以一种优雅的方式完成了这座塔。
In each level there are eight rooms, singles and doubles, 30-45m2 in area. Each of them has a glazed balcony. Noteworthy is, that the oval form also feels and shows clearly in the interior of the apartments, but without causing any difficulties in furnishing or decorations. The way the apartments are designed gives a thrilling feeling. In the topmost floor there are a conference room and a sauna and a large sun deck. The deck is visible in the facade form and finishes the tower in an elegant way.
Floor Plan
建筑物的颜色部分来源于材料。地基上覆盖着生锈的红钢网,上面生长的塔楼从预镀铜中得到了它的颜色。随着铜时代的到来,帕蒂纳看起来和感觉都很自然,但它是经过工业生产的,颜色是可持续的。
The colors of the building are springing partly from the materials. The foundation is covered with rusty red steel net and the tower growing above gets its color from the pre-patinated copper. The patina looks and feels natural as the copper ages, but is industrially made and the color is sustainable.
© Vesa Loikas
c Vesa Loikas
建筑师Pekka M ki已经安排了更轻和更暗的铜盒带,使布局给椭圆形一个动态的感觉。
Architect Pekka Mäki has arranged the lighter and darker copper cassettes so that the lay-out gives the oval a dynamic feel.
在室内,建筑师们使用了强烈的色彩效果:楼梯被涂成浓绿色,自行车车库椭圆形的混凝土墙有一种甘美的红色以及厨房橱柜。另外,客厅的颜色是浅色的,这给了居住者很好的根据自己的口味来装饰房间的可能性。
In the interior the architects have used strong color effects: The staircase is painted in concentrated green, the bicycle garages oval concrete wall have a luscious red color as well as the kitchen cabinets. Otherwise the living quarters are painted in light color which’s gives the dwellers good possibility to decorate the rooms according to their own tastes.
© Vesa Loikas
c Vesa Loikas
Ikituuri是一座有趣的建筑,当它被认为是建筑物理时也是如此。椭圆形的形状会产生帆效应,工作起来就像静止的旋转帆。熔融混凝土框架结构简单,强度大,但铜盒的安装是专门的,既考虑了风的吸力,又考虑了铜的电化学攻击能力。因此,安装网格是建立不锈钢型材。
Ikituuri is an interesting building also when considered its building physics. The oval form causes a sail effect and works like a stationary rotational sail. The on molten concrete frame was quite simple to make strong enough, but the mounting of the copper cassettes is specifically constructed so that both winds suction strength and the coppers ability of electrochemical attack are considered. Therefore the mounting grid is build of stainless steel profiles.
Floor Plan
Ikituuri也是地球上加热的。这个过程是双向的。在冬季,它产生热量,而在夏季,地热井被用来冷却,通过将温暖的空气负荷泵回基岩的井中。
Ikituuri is also geothermally heated. The process is bi-directional. In wintertime it produces heat and in the summertime the geothermal wells are used in cooling by pumping the warmed air loads back into the wells in the bedrock.
© Vesa Loikas
c Vesa Loikas
C‘est Si Bon,它是好的
C´est Si Bon, It Is Good
图尔库学生基金会的代表认为,有关铜的使用和技术问题的决定是正确的。地热能的利用具有生态优势,也是可持续发展的问题。
The representative of the Student Foundation of Turku believes that the decisions have been correct regarding the use of copper and technical questions. Also the use of geothermal energy gives an ecological advantage and is also a question of sustainable development.
© Vesa Loikas
c Vesa Loikas
因此,图尔库在高速公路附近有了一个新的地标。居住者越来越有价值,不仅是通过一个现代化的家,而且有机会生活在时尚和现代建筑与独特的建筑设计与铜质外观。
And so Turku got a new landmark situated near the motorway. The dwellers are getting more value, not only trough a modern home, but also having a chance to live in stylish and modern building with exceptional architectural design with copper facade.
Architects Sigge Arkkitehdit Oy
Location Pispalantie, 20540 Turku, Finland
Category Apartments
Area 4700.0 sqm
Project Year 2011
Photographs Vesa Loikas
客服
消息
收藏
下载
最近
























