查看完整案例


收藏

下载
© Jean S. Lorentzen
(Jean S.Lorentzen)
© Jean S. Lorentzen
(Jean S.Lorentzen)
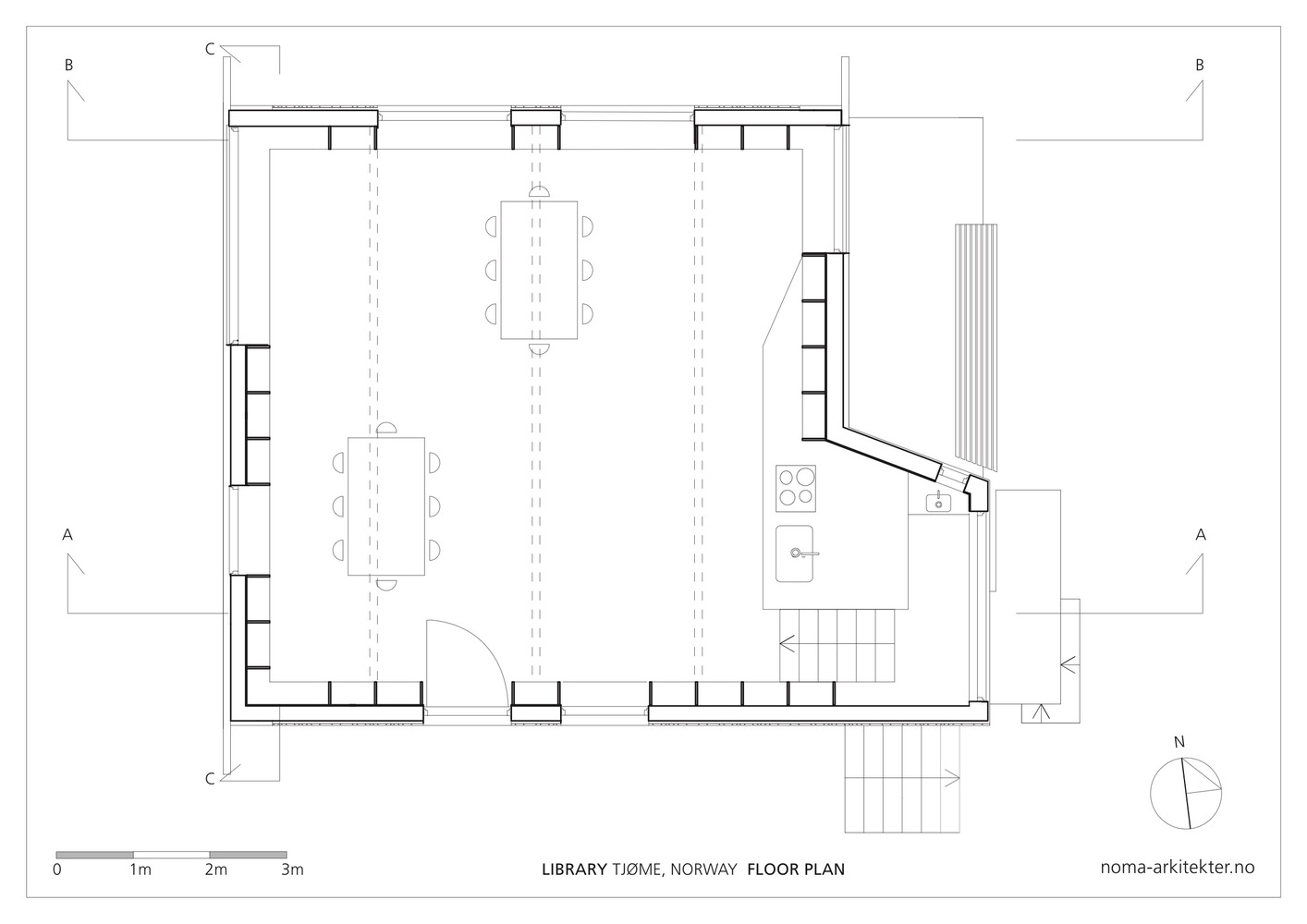
架构师提供的文本描述。在挪威的Tj me岛上,Noma的建筑师把一个旧车库的屋顶改造成了一个图书馆。
Text description provided by the architects. On the Norwegian island of Tjøme, NOMA architects transformed the roof of an old garage into a library.
© Jean S. Lorentzen
(Jean S.Lorentzen)
建筑师Vincenzo Marchese和Petter Nordahl利用木材、石头和混凝土等天然和未经处理的材料,在不改变原面积的情况下,创建了一个综合图书馆、厨房和工作区。
By using natural and untreated materials such as wood, stone and concrete, architects Vincenzo Marchese and Petter Nordahl created a combined library, kitchen and workspace without changing the original size of the area.
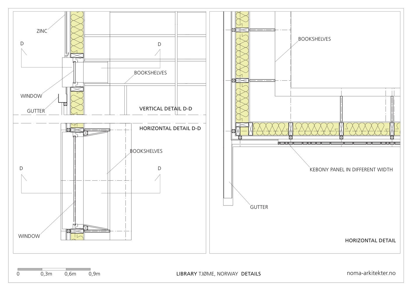
为了优化书架的数量,墙壁四通八达。窗户被整合到书架上,以创造一个令人兴奋的几何空间,突出美丽的日光。
The walls are elevated in all directions in order to optimize the number of bookshelves. The windows are integrated into the bookshelves in order to create an exciting geometrical space highlighting the beautiful daylight.
© Jean S. Lorentzen
(Jean S.Lorentzen)
Architects NOMA Architects
Location Tjøme, Norway
Category Library
Architect in Charge NOMA Architects
Design Team Vincenzo Marchese, Petter Nordahl
Area 65.0 sqm
Project Year 2016
Photographs Jean S. Lorentzen
Manufacturers Loading...
客服
消息
收藏
下载
最近

























