查看完整案例


收藏

下载
© Frank van der Salm
c.Frank van der Salm
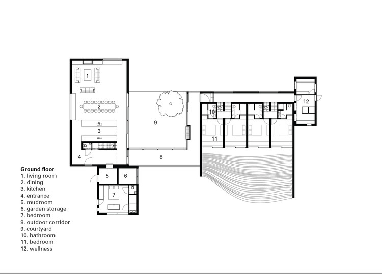
架构师提供的文本描述。房子在伍兹有一种光滑和工业的感觉,而建筑的形状是传统的。这座别墅是由Nauta工作室建造的,由一条开放的走廊连接起来,包括一座生活和一间睡房。位于这片土地上的两个前棚屋已经翻新,并与新楼连接起来。
Text description provided by the architects. House in the Woods has a slick and industrial feel, while the shape of the building is traditional. The villa, built by Studio Nauta, consists of a living and a sleeping house, connected by an open corridor. Two former sheds that stood on the land, have been renovated and connected to the new building.
© Frank van der Salm
c.Frank van der Salm
© Frank van der Salm
c.Frank van der Salm
房子的低矮和零碎的形式,目的是建立一个交织在一起的建筑和自然。森林可以生长在建筑形式之间和之外,沙丘环境被带入室内。连接这两座建筑的室外走廊还勾勒出了庭院;一个有遮蔽的外部空间,混凝土地板上有一棵树,构成了房子的核心。大窗户延伸到地板上,产生了内外空间的无缝关系。开放的砖块结合,暴露了多个时刻的风和光,进一步加强了这一点。屋顶用一层不透光的反光涂层处理,以吸收不断变化的地区颜色,作为房子特性的一部分。
The low and fragmented form of the house aims to establish an intertwining of architecture and nature. The forest can grow between and beyond the built form and the dune surroundings are brought into the interiors. The outdoor corridor connecting the two buildings also delineates the courtyard; a sheltered exterior space with a tree in the concrete floor, forming the nucleus of the house. The large windows, which extend to the floor, generate a seamless relationship between inside and outside space. The openwork brickwork bond that exposes multiple moments to wind and light further reinforces this. The roof is treated with a matt reflective coating in order to absorb the ever-changing colours of the area as part of the house’s identity.
© Frank van der Salm
c.Frank van der Salm
客户(三个兄弟)想要建造一所房子,他们的家人可以在同一时间舒适地居住。这座新房子要对邻近的房子和道路有很好的隐私。这所房子有24张床,分布在10间卧室上。所有卧室都能看到相邻森林的独特景色。为了避免客人迷失在无尽的走廊中,一个清晰的建筑被创造出来,其中有一个宽的走廊,有两个开放的分层次的台阶连接着八间卧室。
The clients (three brothers) wanted to build a house in which their families could stay in comfortably at the same time. The new house was to have a good degree of privacy with respect to the neighbouring house and the road. Spread over 10 bedrooms the house has 24 beds. All bedrooms have a unique view of the adjacent forest. In order to avoid guests getting lost in endless corridors a clear a structure was created in which a wide corridor with two open split-level stages connects the eight bedrooms.
© Frank van der Salm
c.Frank van der Salm
Architects Studio Nauta
Location Middelburg, The Netherlands
Category Houses
Area 700.0 sqm
Project Year 2016
Photographs Frank van der Salm , Francois Duquesnoy
Manufacturers Loading...
客服
消息
收藏
下载
最近





























