查看完整案例


收藏

下载
回廊巷
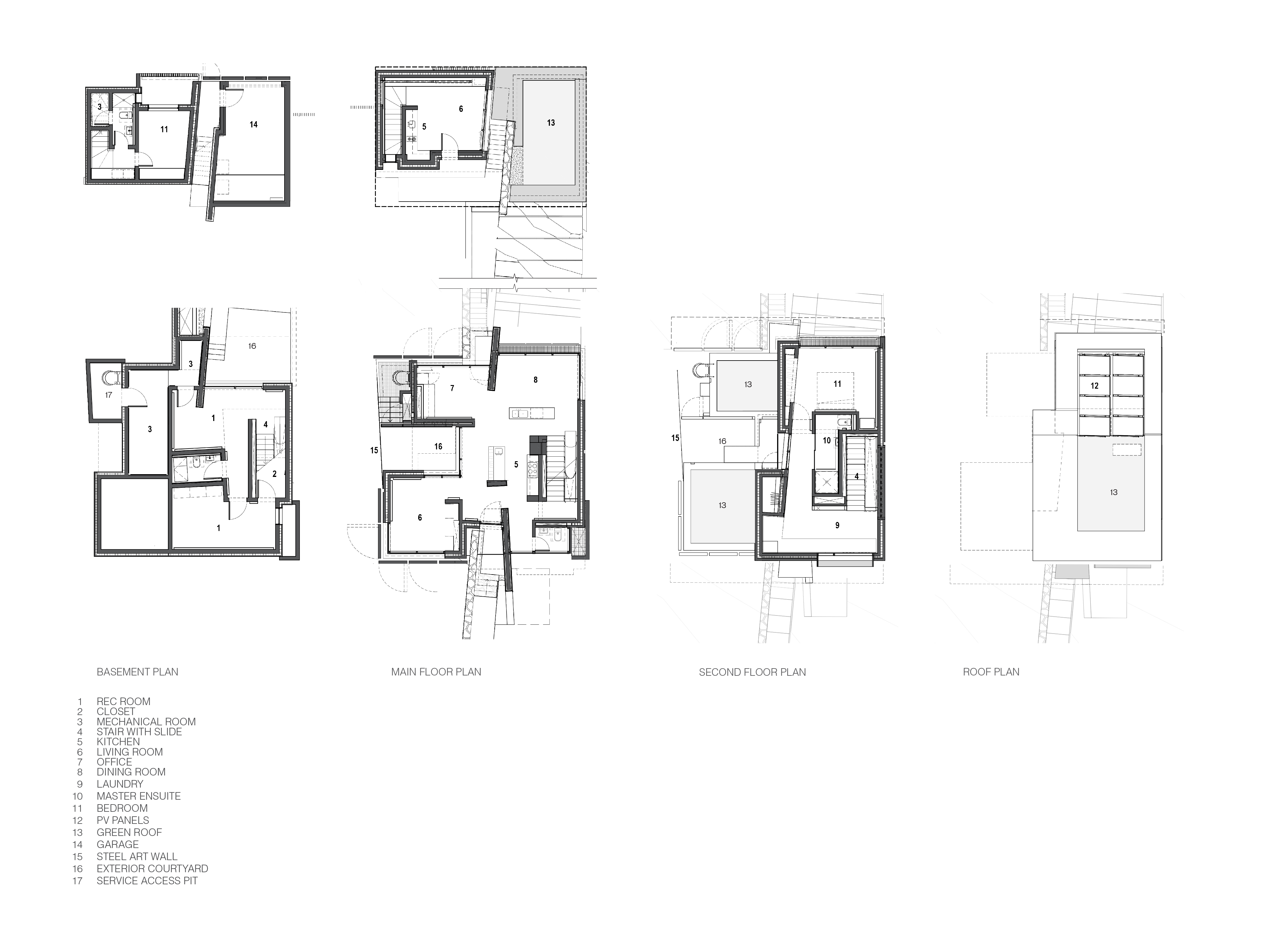
从根本上讲,克洛斯特庄园是一个安静的避难所,是一座城市内的一种隐居状态,由祖母和她的孙子们共同分享。一个精心制作的脊柱墙锚定了房子的计划,从项目的前面到后面。异想天开的儿童友好元素是存在的,从起伏的巨石景观,自定义的钢滑梯,运行在内部楼梯。山顶提供了山脉和海洋的长景,平衡与较短的内部重点的看法,亲密的口袋花园。当地的一位艺术家设计了一个风化的钢墙雕塑梯子,作为袖珍花园的背景,允许过滤光进入,同时提供隐私。通常被认为是“冷”的材料被操纵以达到内部和外部结构的温暖:手工加工的砖石、烧焦的板状混凝土墙和变黑的钢是提供海港感觉的纹理三联板。
一个小巷道/车库是克洛斯特大厦的延伸。最后,它成为了项目中未使用的建筑材料的最终目的地,比如烧焦的木材。在地下的沉睡区,建筑物被精心地刻在斜坡上,以完成整个项目的幽闭感,提供归化的绿色屋顶景观回到主房子,实现巷道的轻盈和宜居性,并保持所有用户的隐私。
整体设计结合了看似相反的特点:刻意的黑暗,工业的物质性,有机的景观和游戏性。响应客户对隐私和隐居的渴望,这些建筑呈现出一种建筑的内向,与内在的戏剧性产生共鸣,同时在街道上展现出安静的谦逊。
独特的建筑围护结构由全混凝土超保温隔热结构,完整的混凝土雨幕贴面,使用模块化的模板系统,由车间建造的4‘x8’单元面对烧焦的舌头和沟杉木板,可以方便地在现场操纵,并可重复使用,从倒到倒。烧焦的木板在混凝土上留下了一个土质的、高浮雕的表面,在连续的倾注中逐渐成熟。穿过混凝土外墙的螺纹形式的连接,作为可移动的内部面板的连接点,包括威尼斯灰泥和白橡木磨具,软化了混凝土外壳,同时提供了通往后面的电线的方便通道。德国乙肝病毒复合木-混凝土地板大会使黄色的雪松梁暴露,从中央脊柱分支的次级结构节奏。定制的钢滑梯两侧的楼梯参考了混凝土搅拌机上的倒槽,为客户的孙辈提供了一种好玩的体验,也为她未来不断变化的救护车需求提供了一个占位符。没有迫击炮的砖墙覆盖了当地的广场,BC花岗岩,并划定了脊柱贯穿整个项目。酒店背面起伏的巨石景观为客户提供了一个安静的户外休息场所,也为她的孙子孙女提供了一个独特的游戏表面。石材在采石场被挑选和制作,然后交付现场安装。
项目建筑师:克林顿·卡丁顿码头
结构:快速epp
信封:JRS工程
Geotech:GeoPacific
景观:芦荟设计
设计顾问:费迪眉
磨坊:Nico航天器
承包商:CX承包施工管理-GC
摄影师:Nic Lehoux,Michael Boland测量建筑
Firm Measured Architecture Inc.
Type Residential › Private House
STATUS Built
YEAR 2014
SIZE 1000 sqft - 3000 sqft
Photos rarceneaux, Andrew Latreille
keywords:architecture, architecture news, interiors, interior design, portfolio, spec, brands, marketplace, products Cloister House + Laneway
关键词:建筑、建筑新闻、室内设计、组合、规格、品牌、市场、产品
客服
消息
收藏
下载
最近


















