查看完整案例


收藏

下载
© Justin Alexander
贾斯汀·亚历山大
架构师提供的文本描述。这座三层住宅位于自然保护区附近海滩上的战斗斧式建筑上,面积巨大,但结构紧凑,可以最大限度地利用每一层无阻碍的水景。
Text description provided by the architects. Set on a battle-axe block above a beach adjacent to a nature reserve, this three level house is large and expansive yet articulated to provide intimate spaces designed to maximise its unencumbered sweeping water views from every level.
© Justin Alexander
贾斯汀·亚历山大
客户的简介是提供一个现代但温暖的室内,没有不必要的点缀或装饰,带有随意的优雅。
The brief from the client was to provide an interior that was modern but warm with a casual elegance free of unnecessary embellishment or decoration.
© Justin Alexander
贾斯汀·亚历山大
由此产生的住宅充满了自然光,精心设计,以突出空间景观和令人叹为观止的水景,同时保持与周围家庭的隐私。它提供了复杂的开放式娱乐空间和放松的家庭空间,可以聪明地开放或关闭,以适应日益增长的家庭的需要。该设计还包括隐蔽的避难所空间,以享受壮观的日出和日落,夏季的凉风和冬季的阳光温暖,这是客户的一项特别重要的要求。时间也花在微调的设计和空间规划,以适应家庭的具体需要,以确保住宅不仅美丽,而且高度功能。
The resultant home is filled with natural light and has been thoughtfully designed to highlight spatial vistas and the breathtaking water views, whilst maintaining privacy from surrounding homes. It provides sophisticated open plan entertaining spaces and relaxed family areas that can be cleverly opened or closed off as required to suit the needs of a growing family. The design also includes secluded spaces of refuge to enjoy spectacular sunrises and sunsets, cool breezes in summer and the warmth of the sun in winter, a particularly important requirement of the client. Time was also spent fine-tuning the design and spatial planning to accommodate the specific needs of the family to ensure the home is not only beautiful but also highly functional.
Level 1 Floor Plan
一楼图则
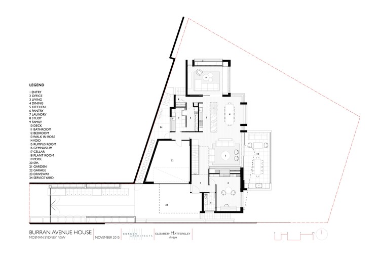
从街道开始的旅程开始在与车道共用的美化的入口手柄上的一个温和的楼梯,经过一个双车库门与墙壁的覆层结合,导致一个定制的完工前门。在中等水平的入口欢迎一个与它的轻填充双高度体积和一个引人注目的非形式混凝土墙与木材覆盖悬臂楼梯。生活空间之外,它的核心一块精美的大理石厨房岛,是巨大和广阔,但结合起来,提供亲密的空间和框架全景水景。
The journey from the street begins down a gentle stair in the landscaped access handle shared with the driveway, past a double garage door integrated with wall cladding leading to a custom finished front door. The entry on middle level welcomes one with its light filled double height volume and a striking off-form concrete wall with a timber clad cantilevered stair. The living space beyond, with its centrepiece of beautifully crafted marble kitchen island, is large and expansive yet articulated to provide intimate spaces and framing the panoramic water view.
© Justin Alexander
贾斯汀·亚历山大
上层由主卧室和私人主卧组成,套房拥有无障碍的水景。较低层包括客人卧室和Rumpus房,与便衣烧烤平台和游泳池相结合,为私人庇护所提供一种宁静的度假胜地的感觉。
The upper level consists of the main bedrooms with the private master suite and the ensuite commanding the unencumbered sweeping water views. The lower level consists of guest bedrooms and Rumpus Room that combines with undercover BBQ terrace and swimming pool to provide a private sanctuary with a tranquil resort feel.
© Justin Alexander
贾斯汀·亚历山大
与几何建筑不同的是,景观设计由一系列自由的露台组成,这些平台与场地轮廓和自然特征相结合。广泛的本土种植是为了补充邻近的自然保护区,并与其自然环境相结合。
In contrast to the geometric building, the landscaping consists of a series of free-form terraces working with the site contours and integrating natural features. Extensive native planting is used to complement the adjacent nature reserve and integrate with its natural context.
© Justin Alexander
贾斯汀·亚历山大
整个家庭使用的材料调色板以天然产品为主,广泛使用木材、石头、玻璃和钢材。家具和软家具继续以皮革、木材、大理石、羊毛和亚麻为特色的自然主题。精美的手工制作的细木工还包括实木和木材单板、大理石、板岩和钢。材料的选择受到有意限制,在整个家庭从内到外重复,为建筑和设计提供了一个和谐的整体“外观和感觉”。
The materials palette used throughout the home is dominated by natural products, with extensive use of timber, stone, glass and steel. Furniture and soft furnishings continue the natural theme with leather, timber, marble, wool and linen featuring prominently. The beautifully hand crafted joinery also incorporates solid timber and timber veneer, marble, slate and steel. The material selection was purposely limited and repeated throughout the home extending from inside to outside providing a harmonious overall ‘look and feel’ to the architecture and design.
Level 2 Floor Plan
二楼图则
该项目是成功和信任的客户/建筑师/室内设计师/建筑商合作伙伴关系的一个很好的例子,在大约两年内完成了从最初购买到完成的详细的当代住宅。
The project has been an excellent example of a successful and trusting client/architect/interior designer/builder partnership resulting in a detailed contemporary residence from the initial purchase to completion in approximately two years.
© Justin Alexander
贾斯汀·亚历山大
Architects Corben Architects
Location Sydney, Australia
Category Houses
Architect in Charge Mohit Keni
Design Team Philip Corben, Mitchel Ovens, Amy Beech-Allen
Area 550.0 sqm
Project Year 2015
Photographs Justin Alexander
Manufacturers Loading...
客服
消息
收藏
下载
最近


























