查看完整案例


收藏

下载
采购产品类别7排住房150平方米单独建造预制模块的钢和混凝土建造英格丽德韦斯特曼(友好建筑)模块制造Wieslaw Olowski,Jarek Wasielewski(Elmot)结构工程师Konar通风沃伊特克班达(Exengo)电力丹普拉(Exengo)制造商装载.多规格少规格
Typology 7 Row Houses of 150m2 individually Construction Prefabricated modules of steel and concrete Builder Ingrid Westman (Friendly Building) Module Fabrication Wieslaw Olowski, Jarek Wasielewski (Elmot) Structural Engineer Konar Ventilation Wojtek Banda (Exengo) Electricity Dan Puura (Exengo) Manufacturers Loading... More Specs Less Specs
© Mattias Hamrén Photography
(Mattias Hamrén)摄影
架构师提供的文本描述。“人民用电”是一项由七座太阳能屋顶组成的零能源工程.每个公寓都有自己的铰接式南面屋顶和市政当局允许的最大太阳能电池板数量。
Text description provided by the architects. Power to the People is a 0-energy project composed of seven solar-powered rowhouses. Each flat has its own articulated south-facing roof and the maximum number of solar panels allowed by the municipality.
© Mattias Hamrén Photography
(Mattias Hamrén)摄影
© Mattias Hamrén Photography
(Mattias Hamrén)摄影
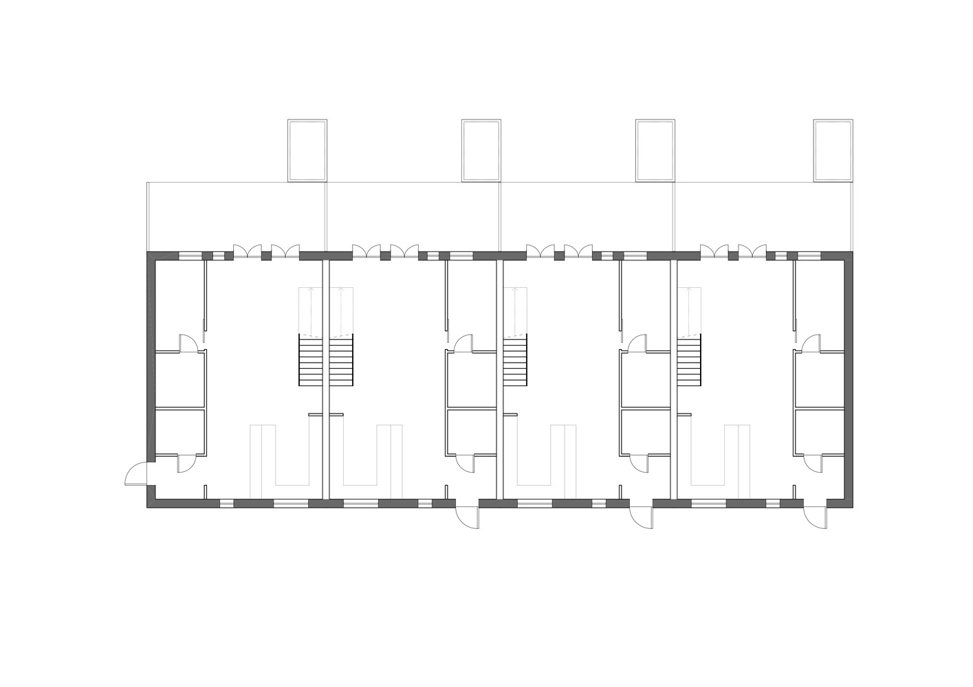
建筑工地的两旁是两条死胡同的街道,正向东向西延伸,这意味着,如果房屋沿着现有的街道排列,那么一半的公寓将有一个朝北的露台,这在北欧气候下显然是不可取的。
The building site is flanked by two dead-end streets that are running in an east-west direction, which meant that if the houses were to line the existing streets then half of the flats would have a north facing terrace which is clearly undesirable in a nordic climate.
© Mattias Hamrén Photography
(Mattias Hamrén)摄影
© Mattias Hamrén Photography
(Mattias Hamrén)摄影
所以我们在现场建了一条“小巷”。这条小巷位于私人地产上,但开放供行人连接。它连接了两个死胡同的街道,这不仅增加了附近的行人活动,而且还开放了财产和邻近的徒步旅行小径。这条小巷使屋檐朝南北方向倾斜,使所有的公寓西面露台都有午后和傍晚的阳光。
So we created a small “alley”on the site. The alley is on private property but left open for pedestrian connectivity. it connected the two dead-end streets which not only increased pedestrian activity in the neighborhood but also opened up the property and the neighborhood to the hiking trailheads that are adjacent to the site. This alley allowed the rowhouses to be oriented in a north-south direction which gave all of the flats west-facing terraces with afternoon and evening sun.
© Mattias Hamrén Photography
(Mattias Hamrén)摄影
Architects Street Monkey Architects
Location Upplands Väsby, Sweden
Category Houses
Architect in Charge Cage Copher
Area 1050.0 m2
Project Year 2015
Photographs Mattias Hamrén Photography
Manufacturers Loading...
客服
消息
收藏
下载
最近


















