查看完整案例


收藏

下载
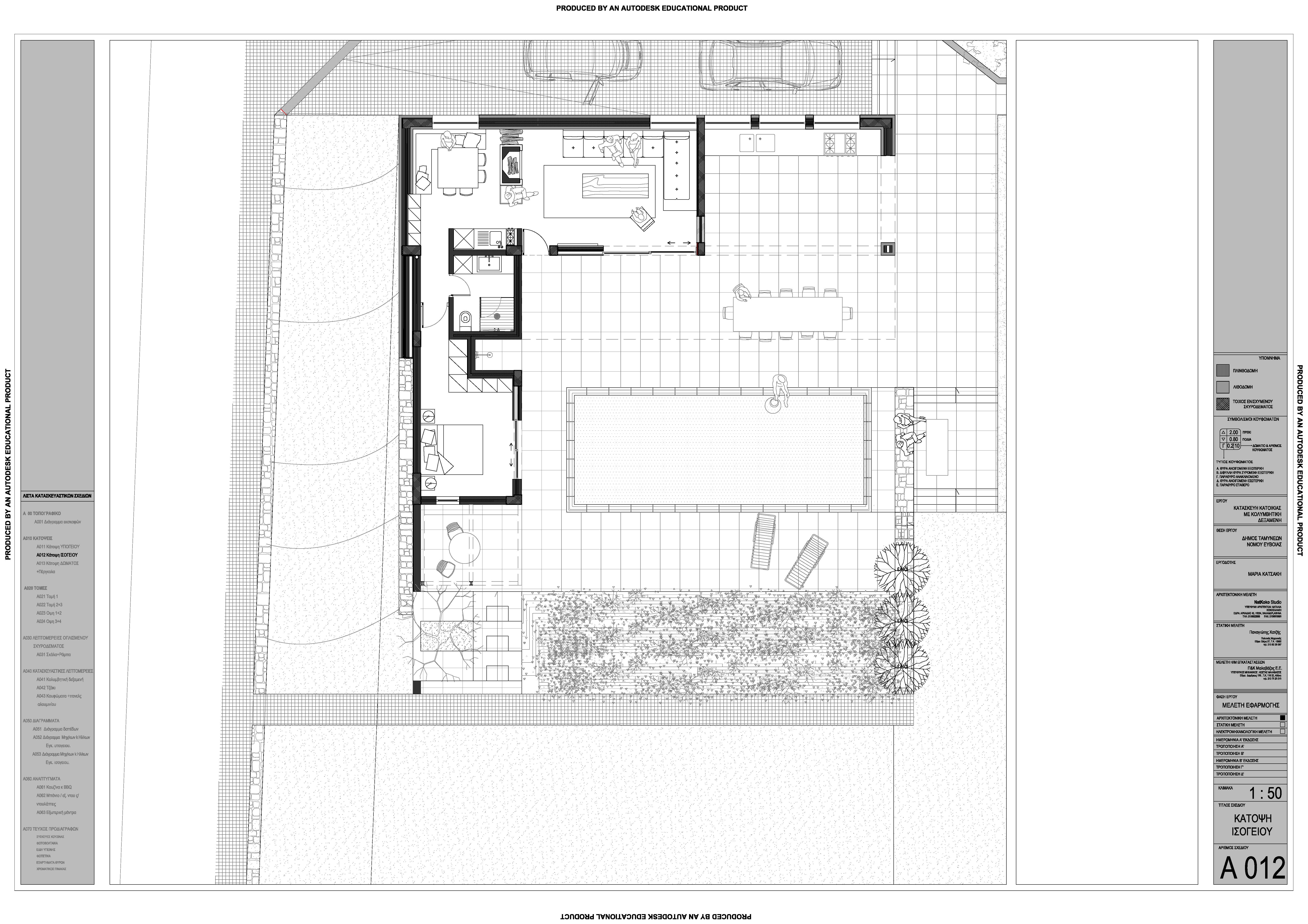
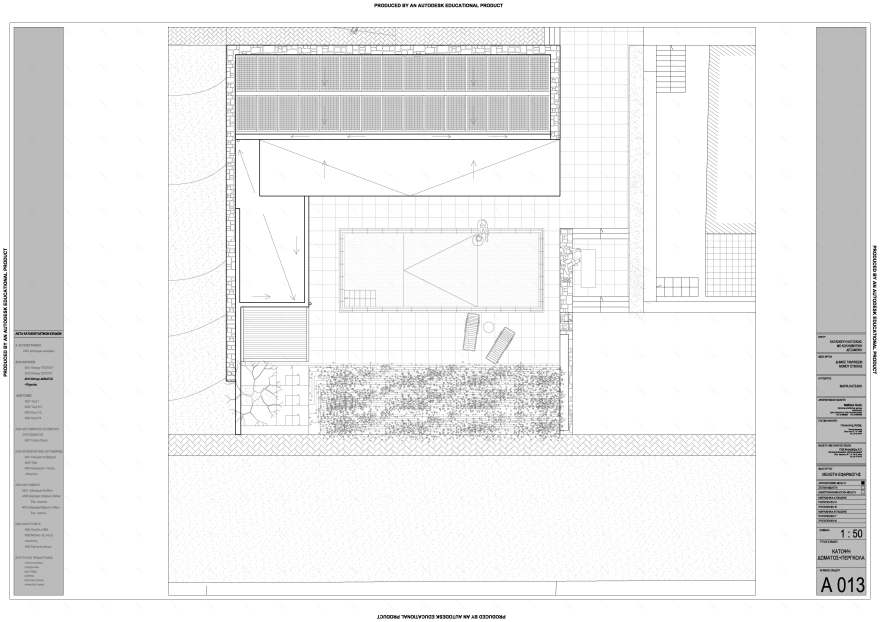
这所位于阿利维里的避暑别墅的简介离雅典非常近,有两个关键词:户外生活。因此,室外空间、游泳池、烧烤区和菜园成为室内生活设计的动力,需要紧凑、灵活、简单。我们的目标集中在尽可能私人的开放空间,以及尽可能开放的朝向户外和海景的室内空间。
设计理念是要侵蚀一个整体的体积,是紧凑的外部,提供保护和腐蚀的内部,其中的生态位作为阴影的可居住地区,但同时提供180度的海滨景观。这个设计是基于两个原则:创造一个美丽的,内向的,与众不同的环境,但又达到物有所值。
这座房子内部布局的一个关键挑战是,如何使扩大的潜力与简要说明的方案要求相协调。这种布局分为两个主要区域:大约四分之三的地板包含主卧室、浴室、紧凑的厨房、就餐和生活,剩下的部分是开放式的烧烤平台,以后可以通过各种可能的方式连接到房子上。该建筑的主要特点是石墙与石材直接从现场挖掘,并由当地制造商在现场形成。安装了屋顶光伏和集水罐,尽可能减少建筑物的环境足迹。
设计团队:
Natalia Kokosalaki,Charal难道s Kokosalakis,Ourania Giavi
Firm Natalia Kokosalaki | Architecture
Type Residential › Private House
STATUS Built
YEAR 2015
SIZE 1000 sqft - 3000 sqft
BUDGET $100K - 500K
Photos DIMITRIS_KLEANTHIS
keywordsarchitecture, architecture news, interiors, interior design, portfolio, spec, brands, marketplace, products Aliveri Summer House
关键词建筑、建筑新闻、室内设计、组合、规格、品牌、市场、产品Aliveri夏季别墅
客服
消息
收藏
下载
最近






























