查看完整案例


收藏

下载
阿富汗国家博物馆
放映:
提交给2012年阿富汗国家博物馆新设计国际建筑理念竞赛的设计理念。
相,周相:
描述:
阿富汗国家博物馆的设计理念回应了任何博物馆固有的悖论条件,它具有保护和展示的双重功能。该博物馆同时作为一个容器和一个连接器,保存艺术品,并不断重新解释内容和重新定义自己的形象。国家博物馆作为国家认同的一种表现形式,直接源于其土地的深度。观众进入花园,将景观融入博物馆的结构设计。
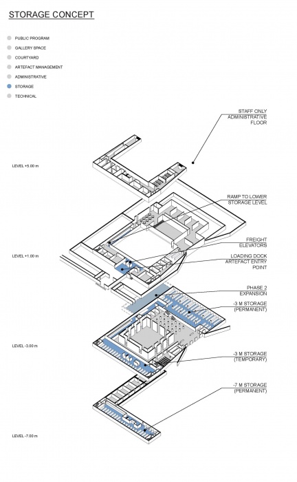
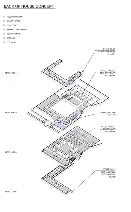
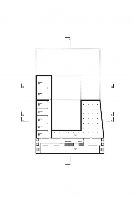
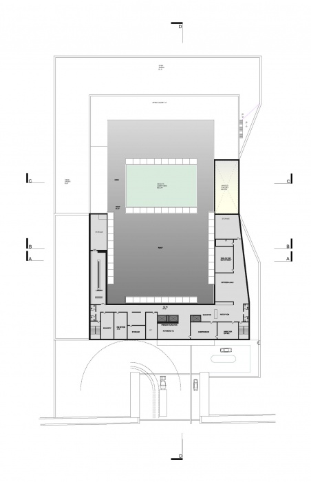
参观博物馆的经验是精心安排的空间排序,邀请游客通过一系列多样和令人印象深刻的空间。从入口大厅,通往画廊的道路通过螺旋式的形式把参观者带到上面,这违反了围堵墙的基本逻辑。垂直墙的结构体现了博物馆的矛盾功能-提供了与外界珍贵的历史文化文物的分离和保护,并为博物馆收藏提供了一个动态的展览系统。从地式门厅到主画廊的双高空间,这一序列继续以缓慢上升的坡道的方式继续,穿过阿切梅尼德、伟大的古山、早期伊斯兰教、提摩利人、人种学和当代画廊。
博物馆的建筑策略是剥落墙壁,露出其核心的画廊。在这个周界墙的多层结构中,空间被定义为内部和外部。内部和外部的潜在逆转植根于阿富汗建筑的传统,在这种传统中,花园被围起来,庭院出现在Qala的内部中心。花园成为建筑的一个活跃部分,庭院通过相邻的空间分配自然光。在拟议的设计中,通过画廊的连续移动结束在中央庭院,博物馆的最里面的空间。庭院作为国家博物馆的中心部分,其空旷反映了阿富汗目前的社会和政治状况。经过多年的冲突和破坏,条件需要尊重虚空,承认缺席,因此,庭院提供了一个积极的,与世隔绝的空间。
Firm De-spec inc
Type Cultural › Cultural Center Gallery Museum Pavilion Landscape + Planning › Urban Green Space
STATUS Concept
keywords:architecture, architecture news, interiors, interior design, portfolio, spec, brands, marketplace, products NATIONAL MUSEUM OF AFGHANISTAN
关键词:建筑,建筑新闻,室内设计,组合,规格,品牌,市场,阿富汗国家博物馆
客服
消息
收藏
下载
最近



















