查看完整案例


收藏

下载
很明显,在西班牙是葡萄酒和卡瓦生产的领先品牌之一的弗赖克奈,必须创造自己的空间,直接向客户展示他们的产品,当然,巴塞罗那是实现这一项目的最佳地点。
这个项目的理念是由传统酒窖氛围与现代城市空间融合而来的。家具和墙面的设计采用了天然木材、黑色铁、白色大理石和玻璃等贵重材料。
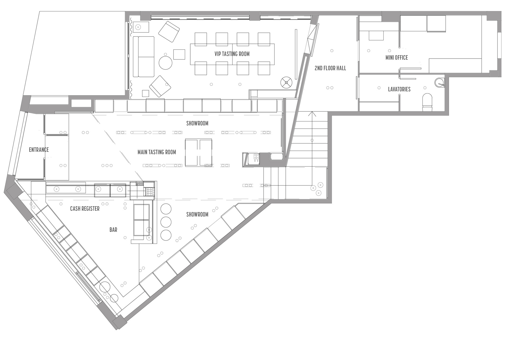
空间有两层,每层都有不同的功能,展厅位于一楼。墙壁和天花板部分地覆盖着天然橡木-一种典型的用来制作葡萄酒桶的木材。“费雷尔家族葡萄酒”一词用十五种不同的语言刻在木头上,以反映该公司及其产品在世界各地的存在。
角大理石酒吧也用作柜台空间,收银机和品尝区。球状水晶灯,暗示着葡萄的形状,挂在吧台上方。他们的颜色唤起了公司的两大主导产品:金色的灯说的是起泡酒或“卡瓦”,而勃艮第灯则唤起了红酒的形象。
这些产品陈列在优雅的黑色铁架上,其中一种能将底层与二楼视觉连接起来。木片和盒子被添加到构图中,给架子单元带来了温暖,并融入了传统酒盒的元素。黑铁也被用于选定的地区作为墙壁覆盖,并设计其他装饰和功能元素,如配重和标志。
一间私人品尝室,一间小办公室和二楼的厕所。部分展厅可以从品尝室的槽中看到,这个铁架子单元连接着两个层次。一面宽阔的水平镜子占据着一堵墙,使房间感觉更宽敞。一张长橡木桌矗立在房间中央,用作品尝的主要家具。特殊的客人和贵宾可以在舒适的沙发和扶手椅中享受富丽轩的优质产品,从而完成空间的装饰和功能。
丹宁最近被授予了商业设计奖项-铜制Laus时尚奖。
Firm INDAStudio
Type Commercial › Retail Showroom
STATUS Built
YEAR 2014
SIZE 1000 sqft - 3000 sqft
BUDGET $100K - 500K
keywords:architecture, architecture news, interiors, interior design, portfolio, spec, brands, marketplace, products TANNIC by Freixenet
关键词:建筑,建筑新闻,室内设计,组合,规格,品牌,市场,产品单宁
客服
消息
收藏
下载
最近
















