查看完整案例


收藏

下载
花园虚屋是位于加拿大多伦多的私人住宅。
它于2016年完工,由阿尔瓦·罗伊建筑师设计。
画廊中的视图
我们推荐这些项目房屋应用建筑设计一个单一的家庭住宅在蒙特利尔,加拿大Schaan豪斯单家庭住宅k_m Architektu
画廊中的视图
画廊中的视图
画廊中的视图
画廊中的视图
画廊中的视图
画廊中的视图
画廊中的视图
画廊中的视图
画廊中的视图
画廊中的视图
画廊中的视图
花园空洞之家阿尔瓦罗伊建筑师:
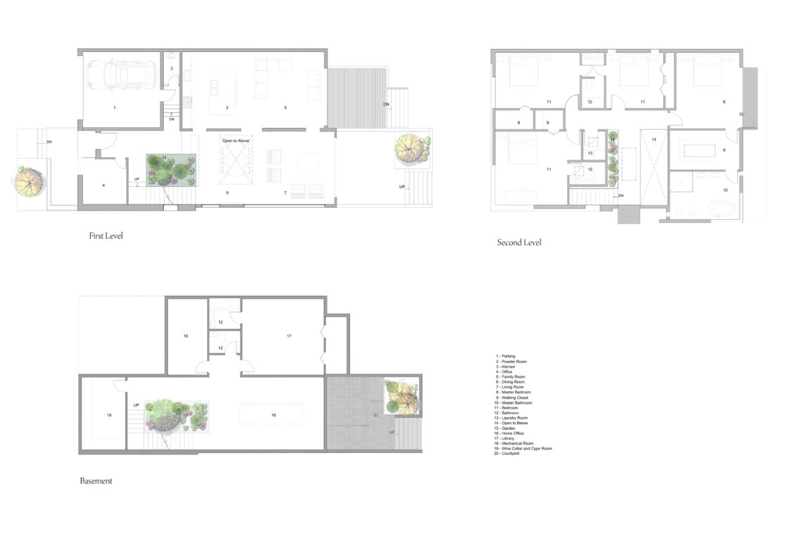
“花园空隙是一栋两层楼的单间家庭住宅,包括五间卧室、地下室家庭办公室、居住/餐饮和厨房/家庭室,以及一个总计约4000 SF的封闭车库空间。
从外面看,是用天然而精致的实心建筑材料制作的,与大而窄的窗户形成强烈对比,使任何开车经过的人都能慢慢来欣赏风景。
从内到外,人们在保持隐私的同时,享受着一片充满情感和积极的美丽绿洲。
花园-空隙和相当的核心
绿洲以花园为中心,它非常规地从地下室开始,然后鱼雷穿过房子的空隙。相反的窗户在支持家庭的成长中起着至关重要的作用,白天把它点亮,让适当的光线照射到房子里。这所房子的设计不仅是为了一个家庭的功能,而且也是为了让他们生活和成长。
这个家庭通过将花园从地下室通过空隙连接到二楼,来定制一种复杂的大到空的关系。“这片空隙共有一段内部的旅程,穿过这座大楼“。白色的室内表面感觉到一个令人难以置信的移动阴影,从钻石屏幕墙,而太阳的位置在所有季节的整个白天变化。
这种结合给了家庭一个情感的核心,同时鼓励了日常家庭活动的顺利循环。
通过定义较低层的庭院、中间的花园核心以及不太私人的空间(即办公室和车库,即街道层),该项目支持“完全”的概念,并支持住宅能够抵御城市的噪音。当你进来的时候,你必须开始以不同的方式,更安静地相信。
可持续发展——光与热控制
当普通建筑经过一些微调后,追求“绿色”建筑时,贴在太阳能电池板上往往是一个结果。但花园虚空屋和他的建筑师阿尔瓦罗伊运用他们的智慧创造真正可持续的建筑,智能地回应其气候和地点,这一挑战导致了多伦多新的,迷人的,宜居建筑的发展。花园虚空屋的一个重要组成部分是产生特定数量的自然光和能见度,以确保室内空间保持明亮,同时保持一种隐私感。要做到这一点,在西边设计的水平狭窄的窗户,面向街道边,在采光的同时创造一种隐私感,并控制建筑西面的强光和热量。位于“花园核心”旁边的两个大开口,通过花园的空隙,将合适的光线带到较低的层次,并唤起住在其中的客户和家人的积极情绪反应。
大天窗或“烟囱效应”可能产生的过热,通过在较高楼层的天窗与一个在二楼空隙之间发挥自然通风作用的开口相结合来避免。
由于细节,强大的盒状形式,以及使用诸如天然石头和木材之类的诚实的材料,花园空房创造了一个意外的建筑。
这个充满活力的住宅项目位于北约克,一个传统的多伦多社区。它占据了一个角落与它的北部和西部外观挫折,享受自然日光在所有季节。
房子被设置在一个小溪的直角,有足够的挫折,部分是为了避免妨碍邻居的视线。向南的起居区和朝向自然环境的视野是由一个8米长的窗户放置在建筑物的南侧来保证的。
室内设计遵循整体规划的几何线形,使各种空间和视图超出了基本矩形规划的建议。
卧室布置(儿童卧室朝北,父母卧室面向南)满足了最初简报的一个方面,即客户希望在第二层为自己和孩子们提供单独的空间。
这座房子的立面图展示了它是如何坐落在自己的地盘上的,线条直截了当,还有一扇宽敞而狭窄的窗户,旨在吸引路人的注意力,并与周围的居民区接触。
花园空屋的建造是为了将建筑设计和远景与客户所概述的功能需求结合起来。因此,我们创造了一个现代化的家,致力于满足客户的愿望,同时通过室内园艺和地下室的外部绿色庭院为空间增添一种精神感受。这两个花园改变了传统意义上的花园是什么,不再是周围,而是中心的家庭和房子围绕着花园。
大多数人把地下室看成是一个非常黑暗的空间去看电影,健身房,和一个空闲的卧室。在这所房子里,我们利用地下室作为花园空隙的功能。意味着生命、成长和新的开始。
画廊中的视图
画廊中的视图
阿尔瓦·罗伊建筑师提供的照片
keywords:Alva Roy Architects Bathroom Canada Contemporary House Contemporary Interior Design Decorative Accessory Dining Room Fireplace Floor Plans Glass Walls Kitchen Landscaping Living Room Rug Skylights Staircase Submitted Terrace Toronto Wall Decor Wood Ceilings Wood Floors Wood Walls
关键词:阿尔瓦·罗伊建筑师,加拿大当代住宅设计,现代室内设计,装饰附件,餐厅,壁炉,平面图,玻璃墙,厨房,景观设计,起居室,地毯,天窗,楼梯,提交了露台,多伦多墙装饰,木地板,木墙,墙壁
客服
消息
收藏
下载
最近
















