查看完整案例


收藏

下载
© Photolux Studio / Christian Lalonde
摄影工作室/克里斯蒂安·拉伦德
圆环鸟/ˈbaʊəRbɜRD/组成雀鸟科(Ptilonorhynchae)。它们以其独特的求偶行为而闻名于世,在这种行为中,雄性为了吸引配偶而建立了一个精细的结构。
Bowerbirds /ˈbaʊərbɜrd/ make up the bird family Ptilonorhynchidae. They are renowned for their unique courtship behavior, where males build an elaborate structure in an attempt to attract a mate.
© Photolux Studio / Christian Lalonde
摄影工作室/克里斯蒂安·拉伦德
设计挑战:
Design Challenge:
面临的挑战是为一个不愿支付湖畔房产费用的客户设计一套能看到伊利湖景观的新房子。因此,他买下的地皮是一片狭长的土地,与其他住宅相望,距离湖岸2000英尺。尽管客户选择了一个不那么理想的地段,该项目被要求作为配偶的诱饵(虽然它是一个爱的巢穴,栖息在树梢上),并为两个尚未存在的/未来的雏鸟提供两间卧室。这个爱巢的目标是求爱和讨好伴侣,同时也展示了正确的计划生育和理财技巧。剩下的挑战是市政分区细则规定的限制,将房屋的高度限制在“两层”以内。
The challenge was to design a new home with a view of Lake Erie for a client who did not want to pay the cost of a lakeside property. Hence, the site he acquired was a very long and narrow lot across the road from other homes and 2,000 feet away from the shore of the lake. Despite the client’s selection of a less desirable lot, the project was required to serve as a lure for a mate (a love nest as it were, perched in the treetop) complete with two bedrooms for two yet non-existent/future hatchlings. As such, this love nest aimed to both woo and wow a mate while also demonstrating proper family planning and money-management skills. The remaining challenge involved the limits set by municipal zoning bylaws that restricted the home’s height to a maximum of “two storeys”.
© Photolux Studio / Christian Lalonde
摄影工作室/克里斯蒂安·拉伦德
设计解决方案:
Design Solution:
为了解决这些挑战,设计了一层细长的一层,容纳了所有的公共空间,以及两个孩子的卧室,以及一个室内游泳池和车库。与此同时,第二层主卧室塔位于树梢上方40英尺处,远远高于周围的屋顶。这种配置提供了人们想要的隐私,同时也可以利用湖外的风景。因此,虽然当地的分区条例将新建房屋的高度限制在两层,但法规并没有规定二楼必须与较低的楼层毗连.该地区的市政规章自那以后就已经重写过了。
These challenges were resolved by designing an elongated first storey that accommodated all of the public spaces as well as the two children’s bedrooms and an indoor pool and garage. Meanwhile, a second storey master bedroom tower is perched forty feet above in the treetops, well above surrounding rooftops. This configuration provided the desired privacy while harnessing the view of the lake beyond. Hence, while the local zoning bylaw restricted new homes to a height limit of two storeys, the code did not actually state that a second floor must be contiguous to a lower floor... The municipal bylaws in that region have since been re-written.
© Photolux Studio / Christian Lalonde
摄影工作室/克里斯蒂安·拉伦德
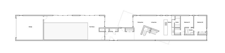
Main Floor Plan
主平面图
2nd Floor Plan
二层平面图
© Photolux Studio / Christian Lalonde
摄影工作室/克里斯蒂安·拉伦德
保龄鸟任务完成:所附照片是在客户婚礼前两周拍摄的,不过,目前还没有看到任何雏鸟。
Bowerbird Mission Accomplished: the attached photographs were taken two weeks prior to the client’s wedding, however, no hatchlings in sight just yet.
© Photolux Studio / Christian Lalonde
摄影工作室/克里斯蒂安·拉伦德
Architects Kariouk Associates
Location Saint Catharines, Canada
Category Houses
Principal Paul duBellet Kariouk
Project Year 2015
Manufacturers Loading...
客服
消息
收藏
下载
最近














