查看完整案例


收藏

下载
架构师提供的文本描述。索伦托1号别墅是Vibe设计集团最新的海岸项目,是澳大利亚海滩别墅的重生。这座建筑对过路人来说是一张谦逊而又曲折的面孔。介绍了一种精良的材料调色板,它的应用巧妙而微妙;是一只经验丰富的手的标志。木材使扭曲变薄,成为后面窗户的模板。浇筑的混凝土墙使入口处连接起来。由18米自定义的彩色粘合板建造的低矮、棱角的屋顶,有一个浇铸的混凝土烟囱;防任何海天的时髦防护。如果外表在本土上是澳大利亚特有的,内部可能很容易是北欧人或日本人。木材、浇铸混凝土和钢的合成在同等程度上是敏感和自信的。每一种材料都被赋予一个角色,一个单独发光的机会,并在协调中做出贡献。丝绸木材使混凝土纹理,和豪华,作为回报。
Text description provided by the architects. Sorrento House 1, the latest coastal project from Vibe Design Group, is the Australian Beach house reborn. The building presents a modest, yet sinuous face to passers by. A well-honed palette of materials is introduced, their application modulated masterfully and subtly; the mark of an experienced hand. Timber battening twists to become shuttering for windows behind. A cast concrete wall articulates the point of entry. A low-slung, angular roof constructed from 18m sheets of custom Colorbond is punctuated by a cast concrete chimney; stylish protection from any seaward weather. If the exterior is uniquely Australian in vernacular, the interior might just as easily be Northern European or Japanese. The synthesis of timber, cast concrete and steel is sensitive and assertive in equal measure. Each material is given a role, an opportunity to shine solo, and contribute in concert. Silken timber renders concrete textural, and luxurious, in return.
© Grant Kennedy
(C)格兰特·肯尼迪
Courtesy of Vibe Design Group
Vibe设计组提供
扩展比例定义了生活空间,从整体厨房(一个与之相交的长方形雕塑组合)到完整的壁炉和壁炉。Vibe的设计语言很少能找到比这些空间更清晰的表达方式,它既宽敞又宽敞,但规模却很大。浴室以材料调色板的形式质量为基础。采用镀光黑色细木工和建筑立式镜像板,提供实用,但不以牺牲风格为代价。
Extended proportions define the living spaces, from the monolithic kitchen (a sculptural assembly of intersecting rectangular forms) through to the integrated fireplace and hearth. The design language of Vibe has rarely found a clearer expression than in these spaces; expansive and spacious, yet human in scale. Bathrooms build upon the formal qualities of the materials palette. The introduction of matte black joinery and architectural vertical mirrored panels, provide practicality, but not at the expense of style.
© Grant Kennedy
(C)格兰特·肯尼迪
私人的,有限制的进入建筑物是平衡的一个更广阔的后立面,完整的甲板和游泳池。几何学的游戏就是从这个角度在屋顶上进行的。这是惊人的解决与天赋和个性。这栋房子自然坐落在墨尔本的莫宁顿半岛,但也很容易发现自己在澳大利亚的任何一个沿海地区。这所房子表明,谦逊和奢侈可以简单地通过良好的设计调和。
The private, restrained entry to the building is balanced by a more expansive rear elevation, complete with deck and swimming pool. The game of geometry is played out in the roof from this aspect. It is strikingly resolved with flair and personality. This house sits naturally on Melbourne’s Mornington Peninsula, but might just as easily find itself in any of Australia’s coastal regions. This house demonstrates that modesty and luxury can be reconciled simply through good design.
Courtesy of Vibe Design Group
Vibe设计组提供
索伦托1号在2016年的BDAV设计奖上获得了大奖-新房子超过100万美元,最具创意的厨房设计奖。
Sorrento House 1 was awarded Winner - New Houses over $1m and Most Innovative Kitchen Design in the 2016 BDAV Design Awards.
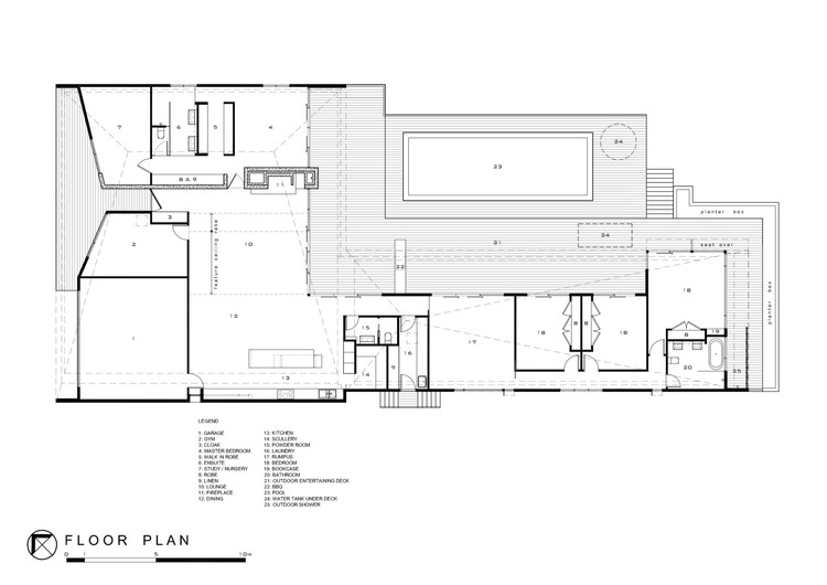
Architects Vibe Design Group
Location Sorrento, Australia
Category Houses
Builder Icon Synergy
Area 358.0 m2
Project Year 2015
Photographs Grant Kennedy, Luke Boyle
Manufacturers Loading...
客服
消息
收藏
下载
最近



















