查看完整案例


收藏

下载
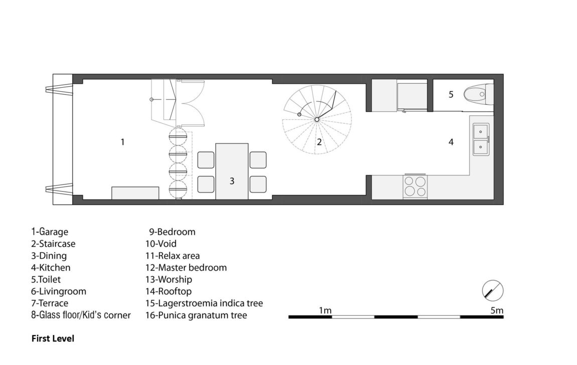
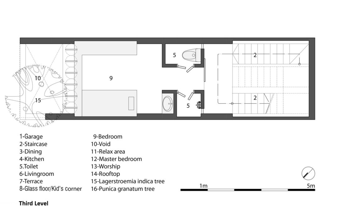
3×10住宅是位于越南Định C ng、Hoàng Mai、HàNộI的私人住宅。
它是由AHL建筑师协会于2015年设计的。
画廊中的视图
我们推荐这些项目AHL建筑师协会的EPV房屋4.5×20房子由AHL建筑师协会
画廊中的视图
画廊中的视图
画廊中的视图
画廊中的视图
画廊中的视图
画廊中的视图
画廊中的视图
画廊中的视图
画廊中的视图
画廊中的视图
画廊中的视图
画廊中的视图
画廊中的视图
画廊中的视图
画廊中的视图
3×10家由AHL建筑师事务所:
多年来,河内一直在自发发展,管式住宅已成为这座城市的一种流行风格:这些房子相依为命,深深地坐落在狭窄的小巷里,层层如沙丁鱼。典型的“口碑设计”或以建设者的经验为基础的“中间楼梯,两侧两室”的典型管式房屋,光线差,湿度高,通风不足,对大多数居住在越南城市地区的人来说太熟悉了。
3×10曾经是那种类型的房子,直到客户满足并与建筑师讨论他们的要求。
经过设计和施工,房子的第一印象可能是里面的清洁和光线溢出。
他说:“每一个项目都会带给我们不同的感受和解决问题的经验所有这些都对我们办公室的年轻建筑师们很有价值,他们正在从小项目和值得享受这些空间的客户那里寻求灵感。“
画廊中的视图
画廊中的视图
画廊中的视图
画廊中的视图
keywords:AHL architects associates Bathroom Brick Walls Contemporary Interior Design Floor Plans Glass Walls Ha Noi Hoàng Mai Kitchen Spiral Staircase Staircase Vietnam Wall Decor Định Công
关键词:AHL建筑师联营浴室墙面现代室内设计平面图玻璃墙Ha Noi Hoàng Mai Kitchen螺旋楼梯越南墙壁装饰Định C ng
客服
消息
收藏
下载
最近






















