查看完整案例


收藏

下载
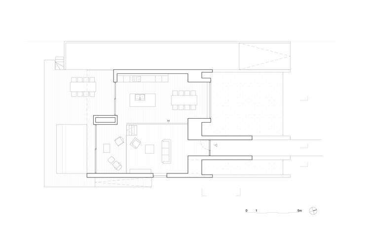
架构师提供的文本描述。这个由OYO设计的家庭住宅是客户和架构师密切合作的结果。奥约从一开始就被授予了一份全权证书,这就开启了专注于一座生态和紧凑建筑的可能性。与比利时大多数单一的家庭房屋不同,OYO最初的想法是把起居室放在卧室的顶部。在由分裂层组成的房子中,在所有空间中建立空间和自然照明条件之间的交叉关系是很重要的。
Text description provided by the architects. This family house designed by OYO is the result of a close collaboration between client and architect. OYO was given carte blanche, which opened the possibility to focus on an ecological and compact building from the start. Unlike most single family houses in Belgium OYO started with the idea of positioning the living rooms on top of the bedrooms. In a house composed with split-levels it was important to establish cross relations between the spaces and natural lighting conditions throughout all spaces.
© Thomas De Bruyne
(Thomas De Bruyne)
房子的定义是土壤的延续,创造了一个连续提升的绿色屋顶。唯一的例外:在绿色表面上创建了两个弹出卷。一个定义了入口,另一个给餐厅带来了更深层次的光线。窗户的尺寸与光线有关,但要小心放置,这样居民才能保持对街道的隐私。使用木材和温暖的材料是一个灵感的决定,创造一个斯堪的纳维亚式的室内环境。光和物质的平衡-如石头、木头和白色的表面-是把一切结合在一起的决定性因素。
The house is defined by the continuation of the soil, creating one continuous lifted green roof. The only exception: two popping volumes created on the green surface. One defines the entrance, the other brings light deep into the dining room. The window is dimensioned regarding the light conditions but carefully positioned so the inhabitants maintain privacy towards the street. The use of wood and warm materials was an inspired decision to create a Scandinavian-like interior ambiance. The balance of light and material-use like stone, wood and white surfaces are the defining elements that bring everything together.
© Thomas De Bruyne
(Thomas De Bruyne)
© Thomas De Bruyne
(Thomas De Bruyne)
从设计阶段到房屋的建造,OYO的主要目标是有选择地使用每一种材料,使其发挥最大的效用。一个混凝土底座被用来搬运一个轻型木架,这个框架是在当地的一个仓库里准备好的,并安装在现场。一个橡胶屋顶的膜被包裹在房子周围,以保护内部不受气候条件的变化,作为一个正面的元素。这种非传统的技术允许橡胶随着日子的推移、季节的变化和天气的变化而改变外观。经过几个季节,不同的植物在顶部开花。由于房子的屋顶实际上一直延伸到地面,所以设计了一个独特的绿色屋顶,使房屋正面和屋顶的颜色都会一直变化。
From the design phase to the construction of the house, OYO's main objective was to selectively use every material to its highest potency. A concrete base was used to carry a light timber frame, which was prepared in a local warehouse and mounted together on site. A rubber roofing membrane was wrapped around the house to protect the interior from changing weather conditions working as one facade element. This unorthodox technique allows the rubber to change appearance as the day passes, the season changes and the weather fluctuates. Through the seasons there are different plants flowering on top. Since the roof of the house actually continues into the ground level, a singular green roof is conceived so that both facade and roof will vary in color all the time.
壁炉可以在室内和室外使用。在夏天,它被用作烧烤,人们在有盖的露台下就餐。露台是一个连续木甲板连接客厅和厨房与外部空间。在木甲板上,我们还发现了一个小游泳池。当太阳出来时,它在房子内部的天花板上投下一个有趣的倒影。
The fireplace can be used both indoors and outdoors. In summer it is used as a BBQ and people dine under the covered terrace. The terrace is a continuous wooden deck connecting the living rooms and kitchen with the exterior spaces. On the wooden deck we also find a small swimming pond. When the sun is out, it casts a playful reflection on the ceilings in the interior of the house.
© Thomas De Bruyne
(Thomas De Bruyne)
© Thomas De Bruyne
(Thomas De Bruyne)
这房子有一个优良的低能源性能,因为绝缘包装之间的木材框架和热容量创造的绿色屋顶。当你走近房子的时候,你可能不会注意到的是从入口到餐厅的太阳能电池板,它们都是朝南的。这就增加了居民的能源需求,也促进了客户在梦到新家时从一开始就具有的可持续雄心。(鼓掌)
This house has an excellent low energy performance because of the insulation pack between the timber frames and the thermal capacity created by the green roof. Something you might not notice when you approach the house are the solar panels laying on top of the volumes from the entrance and dining area, all facing South. This adds up to the energy demands of the residents and contributes to the sustainable ambition the clients had from the beginning when dreaming about their new home.
© Thomas De Bruyne
(Thomas De Bruyne)
Architects OYO
Location Maldegem, Belgium
Category Houses
Area 175.0 m2
Project Year 2015
Photographs Thomas De Bruyne
Manufacturers Loading...
客服
消息
收藏
下载
最近
































