查看完整案例


收藏

下载
© Markus Linderoth
马库斯·林德罗斯
“母亲之家”是F rstberg ling完成的第一栋房子,该项目于2013年启动,是2017年在Vallastaden林克坪举办的住房展览的一部分。这座房子被认为是比约恩的母亲玛丽亚的住所和工作室,图书管理员和热情的织布工。
"House for Mother" is the first house completed by Förstberg Ling, a project started in 2013 as a part of the housing exhibition in Linköping, Vallastaden 2017. The house is conceived as a dwelling and studio for Björn's mother Maria, librarian and an enthusiastic weaver.
© Markus Linderoth
马库斯·林德罗斯
“母亲之家”是一所平衡空间和亲密房间的房子-形式简单和强烈的物质性。在原始瓦楞纸铝的正面创造了一个可变的发挥与光和阴影在白天,一个丰富的物质对比,它的简单表达。木质的横梁和桁架,以及内衬胶合板的墙壁,为室内提供了温暖。混凝土地板是一个耐用和美丽的表面,日常使用,折叠在一个低的长凳沿周围的建筑物。
"House for mother" is a house that balances spatiality with intimate rooms - formal simplicity with strong materiality. The facade in raw corrugated aluminium creates a variable play with light and shadow during the day, a rich materiality contrasting with it's simple expression. The wooden beams and trusses along with the walls lined with plywood give warmth to the interior. The concrete floor is a durable and beautiful surface for everyday use, folded to a low bench along the perimeter of the buil
© Markus Linderoth
马库斯·林德罗斯
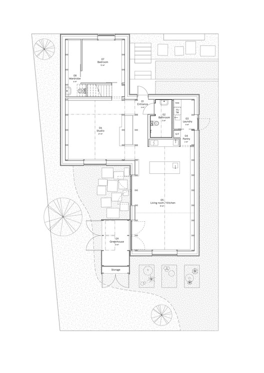
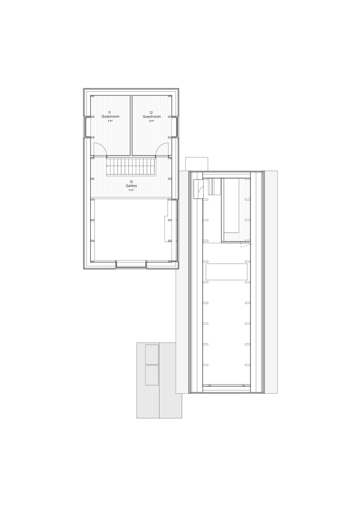
Floor Plan
© Markus Linderoth
马库斯·林德罗斯
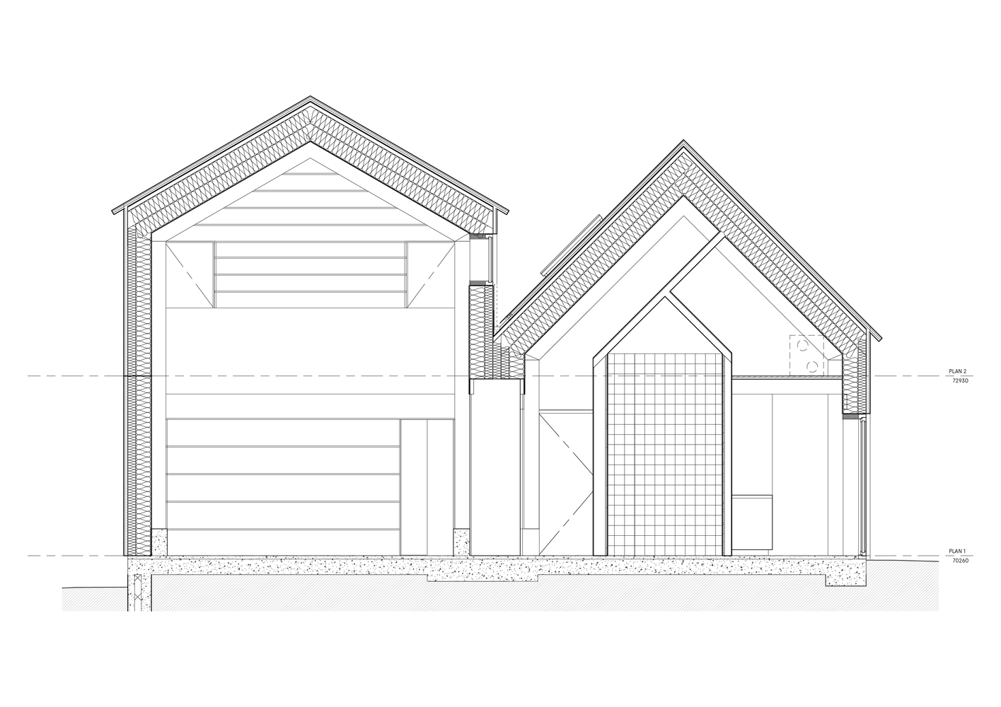
这所房子分成两卷,稍微从彼此之间转移,强调情节是多么狭窄。现在站在开阔的地方,未来的城市环境最终将不会比山墙更多地暴露在邻里。
The division of the house into two volumes, slightly shifted from each other, emphasizes how narrow the plot is. While standing in the open for now, the future urban context will eventually not expose much more than the gables to the neighborhood.
© Markus Linderoth
马库斯·林德罗斯
Architects Förstberg Ling
Location Linköping, Sweden
Category Houses
Area 135.0 sqm
Project Year 2016
Photographs Markus Linderoth
Manufacturers Loading...
客服
消息
收藏
下载
最近


























