查看完整案例


收藏

下载
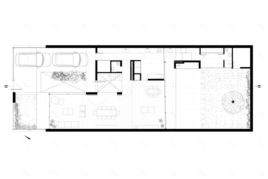
该委员会将设在蒙得维的亚市的一个高度整合区内的一个填充区,作为Pocitos的邻里,同时面对一条交通繁忙的街道,其中包括一座四卧室住宅的设计,其中包括客厅、餐厅、书房、厨房和厨房,以及服务区:洗衣房、储藏区和服务区。除此之外,还需要在停车场前停两辆车。一种程序,乍一看,与情节的大小相比,它的效果略显过大。除了节目之外,还提出了对自然光、阳光直射的渴望,只要有可能,就能进入房子的所有空间。
就我们而言,作为一个起点,我们提出了一套房子的概念,它可以保护相对于街道的家庭生活的隐私,同时又不放弃室内和外部空间之间的牢固关系。对于我们来说,另一个重要的初始主题是灵活性的概念:居住空间-客厅和巢穴形成的二项式-可以被整合成一个单一的连续空间,同时也能够获得独立性和功能分离的可能性。
从前面提到的需求和设计城市住宅的信念出发,相对于空间组织的两个想法占上风。
第一种是对水平维度的呼吁:这是通过在街道层面设置的开放式规划中的生活空间的配置来实现的。通过这种方式,它建立了一个连接和不间断的延长内部和家庭用途到外部空间。连续性仅通过绿色空间来调节和保护街道噪音。这是通过应用不同的移动墙来实现的,这些墙具有不同的隐藏和不同的配置,从而使空间性能得以实现。
第二个想法,也是与前一个概念的对应点,是引入垂直维度。为此,定义了一个旋转中心,由楼梯和双高度走廊占据,它组织了平面图,将周围不同的房间分布在一起。同样,这个中心允许直接的自然照明进入房屋的所有公共区域,并在公共用途的底层和为私人空间保留的第一层之间建立了非常密切的关系。最后,从材料的角度来看,钢筋混凝土的单一性被用于板和垂直表面,而对于人行道和移动分割元件则采用了较暖和的木材。
从形态的角度来看,这座房子能够令人满意地表达一种城市环境,在这种背景下,由于连续的规范变化的叠加,两层不同街道排列的房屋共存,并与高达10层的高层建筑交织在一起。
这一点因修建了一条深通道而得到加强,这使房屋能够与街道(一条交通密集的街道)建立牢固的关系,而不放弃该方案所要求的家庭隐私。因此,在底层设置了一个梯度-街道、人行道、前院和深通道、内部和庭院-这再次规范了公共和公共维度与家庭和私人环境之间的对话。一种由植物种类和釉面封闭所介导的空间序列。
在室内,实现了对公共空间配置的通用性,使其能够很好地适应不同的家庭生活情况。从习惯性的团聚和庆祝活动中,内部和外部融合成一个巨大的、没有区别的连续体,到空间被隔开并允许儿童自由玩耍而不扭曲家庭生活其他领域的时刻。上层是卧室的隐私,同时围绕着双高旋转中心,延伸到大露台上,这也是一个游乐区,保护通道,恢复与街道的联系。
Firm Arquitecto Pedro Livni
Type Residential › Private House
STATUS Built
YEAR 2014
keywordsarchitecture, architecture news, interiors, interior design, portfolio, spec, brands, marketplace, products House in Libertad St.
关键词建筑、建筑新闻、室内设计、组合、规格、品牌、市场、利伯塔德街的产品屋。
客服
消息
收藏
下载
最近






























