查看完整案例


收藏

下载
© Wieland Gleich - ARCHIGRAPHY
架构师提供的文本描述。导言
Text description provided by the architects. Introduction
这座新住宅位于康斯坦蒂亚河谷一处美丽的林荫河畔,试图与一片相对完好的自然环境建立密切的关系。
This new residence, located on a beautiful wooded riverside site in the Constantia Valley, attempts to establish a close relationship with a relatively unspoilt piece of the natural environment.
© Wieland Gleich - ARCHIGRAPHY
.Wieland Gleich-ARCHIGRAPHY
地点和背景
Site and Context
该遗址与更大的庄园隔开,原本有草坪和网球场,但南边有一条美丽的溪流,那里有各种各样的鸟类和野生动物。四周全是高大的树木。因此,尽管位于一条相对繁忙的郊区公路上,但该地点在视觉上完全与世隔绝,是“森林中的空地”,提供了一套独特的透明度和与周围环境保持连续性的机会。
The site, subdivided off from a larger estate, and originally containing lawns and a tennis court, has a gentle fall to a beautiful stream to the south, which hosts a variety of birds and wildlife. It is entirely surrounded by tall well-established trees. As a result, despite being located on a relatively busy suburban road, the site is visually completely secluded, a ’clearing in the forest’, offering a unique set of opportunities for transparency and continuity with its surroundings.
根据 NEMA 的立法,这座房子必须在离溪流 30 米远的地方放回原处。房屋和溪流之间的场地得到了修复:网球场和草坪被拆除,取而代之的是一个土著花园,由高架木板走道进入,并源源不断地流入茂盛的河岸植被。
In terms of NEMA legislation, the house was required to be set back 30m from the stream. The site between house and stream was rehabilitated: the tennis court and lawns were removed and replaced with an indigenous garden, accessed by elevated timber boardwalks and flowing continuously into the lush riverbank vegetation.
© Wieland Gleich - ARCHIGRAPHY
.Wieland Gleich-ARCHIGRAPHY
这些客户是一对有着成年子女的夫妇,他们需要一间 3 卧室的开放式住宅,供他们自己和偶尔的客人使用。
The clients, a couple with grown children, require a 3- bedroom, open plan house for themselves and occasional guests.
简介的重点是简单的生活方式,易用性,精心制作的天然材料的乐趣和对自然环境的直接体验。
The brief focused on simplicity of lifestyle, ease of use, the pleasure of well-crafted natural materials and directness of experience of the natural surroundings. © Wieland Gleich - ARCHIGRAPHY.Wieland Gleich-ARCHIGRAPHY
周围绿树成荫的树木墙被视为房屋的周边,屋顶表现为一个长而连续的倾斜面,随着场地的坡度而下降,并在自由流动的地面上形成树冠。单层结构环抱地面,广开玻璃,与周围的室外建立联系。街道的边缘是由一个巨大的混凝土墙保护,这是为了反映来自生活地区的道路噪音。
© Wieland Gleich - ARCHIGRAPHY
程序和组织
Program and Organisation
房子的排列是线性的,与南边的河流平行,向北一直向太阳开放。住所位于靠近 BrommersveleRoad 的东侧,卧室部分位于工地内部。房子的支点围绕着一棵成熟的橡树,它破坏了原本可以被理想化的平面图,并确立了恢复自然的观念,作为场地上的主要元素。
The house is arranged linearly, parallel to the river on the south and opening up to the sun along its entire length to the north. The living accommodation is positioned closer to Brommersvlei Road to the east, with the bedroom section on the interior of the site. The house pivots around a well-established oak tree, which deforms what could have been an idealized floor plan and establishes the idea of a resurgent nature as the primary element on the site.
© Wieland Gleich - ARCHIGRAPHY
.Wieland Gleich-ARCHIGRAPHY
单层结构环抱地面,广开玻璃,与周围的室外建立联系。街道的边缘是由一个巨大的混凝土墙保护,这是为了反映来自生活地区的道路噪音。
一系列庭院和庭院,每个庭院提供不同的体验和不同程度的阳光照射和防风在一年中的不同时间,重点每一组住宿。
A series of courtyards and patios, each offering a different experience of site and different degrees of sun exposure and wind protection at different times of the year, focus each grouping of accommodation.
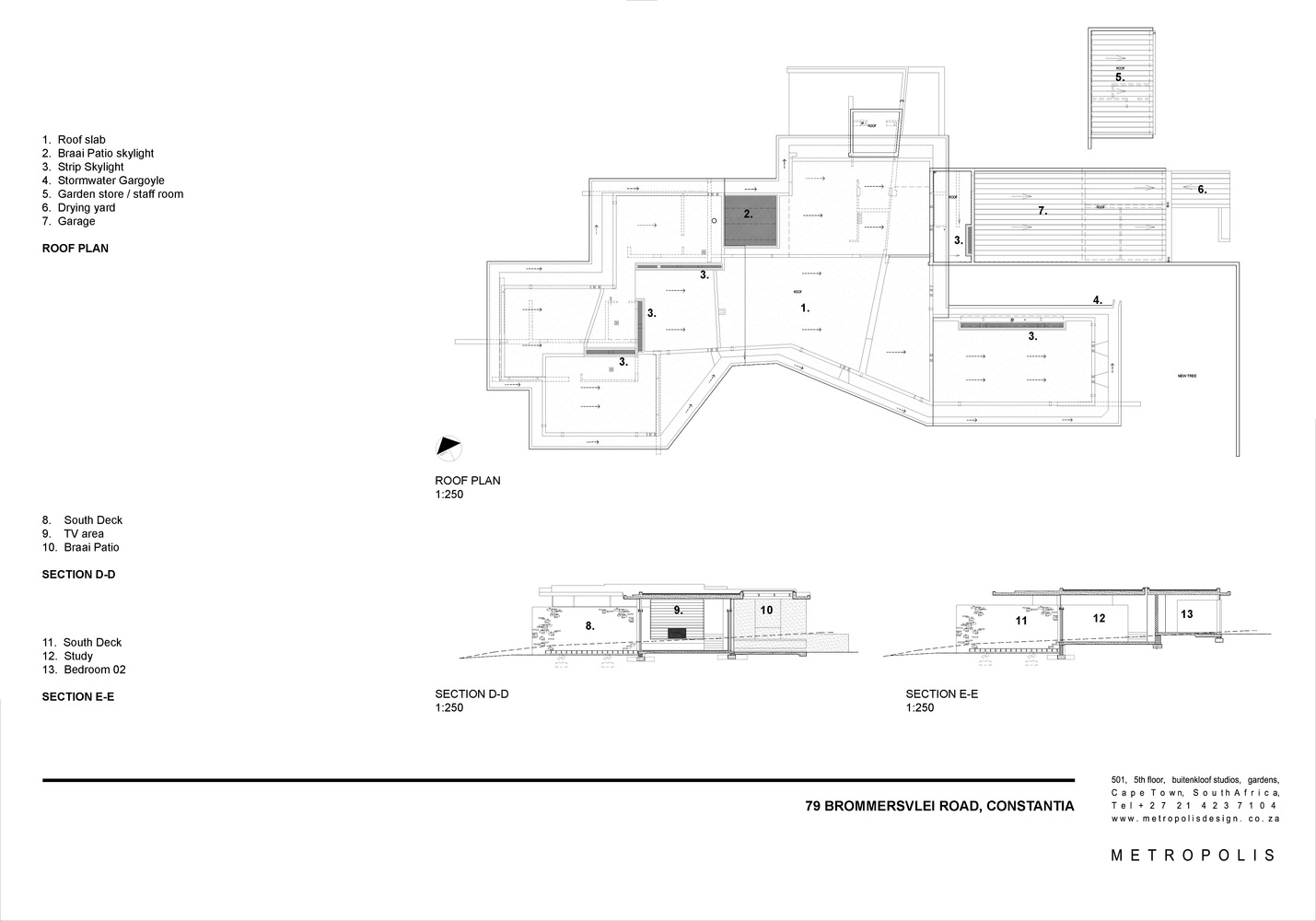
Floor Plan
入口院是一个方形广场大小的空间,周围是巨大的混凝土和石头元素,其目的是建立一种宁静和寂静的氛围,作为房子的普遍氛围。
The entrance court, a roughly square piazza-sized space, bounded by massive concrete and stone elements, is intended to establish an atmosphere of tranquility and silence as the prevalent mood of the house.
厨房和餐厅完全开放在一个有盖的布莱露台上,休息室内有两个庭院,一个是种植的,另一个是长而天然的池塘。
The kitchen and dining room open entirely onto a covered braai patio and the lounge is bounded by two courtyards, one planted and one containing a long natural pond. © Wieland Gleich - ARCHIGRAPHY.Wieland Gleich-ARCHIGRAPHY
整个南立面有一个延伸的木材露台,形成了室内地板和花园之间的界面。
The entire south façade has an extended timber patio, which forms an interface between interior floor-plane and garden.
环流是由两个交叉轴构成的,它们都是在景观中开始和结束的,它们是由长壁元素构成的。
Circulation is structured by two cross-axes, both of which start and terminate in the landscape and which are formed by long wall elements. © Wieland Gleich - ARCHIGRAPHY.Wieland Gleich-ARCHIGRAPHY
房屋的所有墙壁元素都与屋顶分离,延伸到景观中,包围室外空间,模糊内外的区别。
All the wall elements of the house are detached from the roof and extend out into the landscape to enclose outdoor space and blur the distinction between inside and outside
© Wieland Gleich - ARCHIGRAPHY
.Wieland Gleich-ARCHIGRAPHY
Architects Metropolis Design
Location Cape Town, South Africa
Category Houses
Architect in Charge Jon Jacobson, Mandi Pretorius
Area 843.0 sqmProject Year 2014
Photographs Wieland Gleich - ARCHIGRAPHY
客服
消息
收藏
下载
最近


























