查看完整案例


收藏

下载
© Soopakorn Srisakul
SosopakornSrisakul
架构师提供的文本描述。这个项目是从业主在未来寻找更多的居住空间的想法开始的,而与父母在一起的现有住宅可能无法回答。经过时间的回首,老房子的主人长大,属于他的父母尚未出售,位于同一村庄,周围与好邻居。这就是项目开始的地方。
Text description provided by the architects. The project start from the idea that the owner is looking for more living space in the future and existing home with parent may not able to answer. After he is looking back through time, the old house that the owner growth-up and belong to his parent is not yet sold, locate in the same village, and surrounding with good neighbor. That is where the project begins.
老房子是一个半复式,木材和混凝土之间的混合,朝南,有良好的空气流通贯穿整个房子。他决定重新开始这个项目,拆除现有的房子,开始他的热情。他向建筑介绍的第一个要求是最好的空气流通,第二个要求是他喜欢看45度的屋顶,因为在他看来,这一设计体现了现代与泰国设计的和谐。
The old house is one and half duplex with the mixed between wood and concrete, facing down south and having good air circulation through-out the entire house. He decided to fresh start the project by removes the existing house and start his passion from the ground up. The first request he brief to the architecture is best possible air circulation, and the second request is he love to see 45 degree rooftop because the design speak-out the harmony between modern and Thai design in his view.
© Soopakorn Srisakul
SosopakornSrisakul
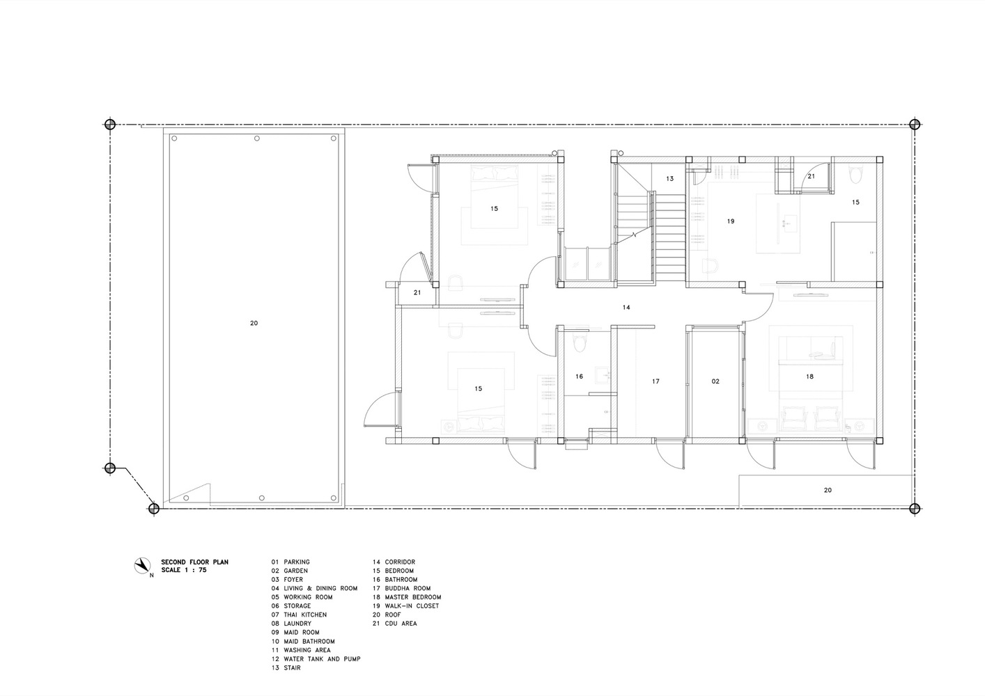
在提供了这两个概念后,建筑师通过将屋顶设计分解成两个模块,以创造一个更好的45度屋顶质量。左边模块的屋顶反映了现代设计的平面屋顶,右边的模块覆盖了45度的屋顶设计。这一想法有助于房屋的总体设计,并反映堆叠的质量和更好的房子形状。
After providing both concepts the architect tone-down the rooftop design by split the house into 2 modules in order to create a better mass of 45 degree rooftop. The rooftop of the left module reflects modern design with flat rooftop, and the right module covers with 45 degree rooftop design. The idea helps overall design of the house and reflect stacking of mass and better shape of the house.
视图是设计的另一个问题。房子的位置是围绕着30年的老房子,并且没有多少的角度为好的看法。建筑师解决了这一问题,在房子内部的几个区域内创造了小的开放空间,以使光线从顶部进来。这将带来白天的阳光和夜晚的隐私。住宅的另一个亮点是客厅和餐厅,这是房子最大的空间,有尽可能多的视野,周围有室外花园和车库。车主的爱好之一是收集老式汽车,他很乐意从起居室里看到这些车。因此,建筑师创造了老式的汽车景观从起居室为他自己的乐趣。这就是开始的故事和概念,把这个紧凑的房子带回家。
View is another matter of the design. Location of the house is surrounding with 30 years old houses, and not many angle for good views. The architect solved this matter by creates small open spaces in a few zone inside the house in order to bring the light in from the top. This would bring shed of the sun during the day and privacy over the night. Another highlight area of the home is living and dining room which is the largest space of the house with the maximum possible view surrounding with outdoor garden and garage. One of the owner passion is to collect vintage cars and he would please to look at the cars from the living room. Thus, the architect create vintage car view from the living area for him for his personal enjoyment. That is the begin story and concept to bring this compact house to home.
© Soopakorn Srisakul
SosopakornSrisakul
Architects I Like Design Studio
Location Bangkok, Thailand
Category Renovation
Design Team Narucha Kuwattanapasiri , Unnop Tupwong
Area 380.0 sqm
Project Year 2013
Photographs Soopakorn Srisakul
客服
消息
收藏
下载
最近





























