查看完整案例


收藏

下载
架构师提供的文本描述。这个项目是对一座出租的房子进行翻修。这座有50年历史的木屋被毁了。屋顶倒塌了,外墙被打破了,地板、墙壁和天花板都被拆除了。在这种情况下,人们容忍了外来动植物的入侵,似乎这座房子已经变成了一种野性,但我们可以发现,这座野蛮的房子具有某种美学和潜力。
Text description provided by the architects. The project is a renovation of a house for rent. The 50-year-old wooden house had been left to lie in ruin. The roofs had fallen down, the exterior walls had broken, and the floors, walls and ceilings had dismantled of those concept. In the circumstances, the house had been tolerated the invasion of animals and plants from outside and it seemed as if the house had been turning into feral; however, we could found out that the feral house involved a kind of aesthetics and potentiality.
© Shimizu Ken
(清水健)
© Shimizu Ken
(清水健)
这些都是开放,容忍所有其他存在,以及同质化的日本传统房屋的结构,内外装饰,以及配件,所有这些都是由一个单一的材料,木材。
These are openness, which tolerate all other existence as well as homogeneity of Japanese traditional house which structure, interior and exterior finishing, and fittings, all of those are comprised of just one single material, wood.
© Shimizu Ken
(清水健)
然后,我们对空间进行了规划,目的是为了扩大隐私和功能的使用范围,我们单独地提出了现有的元素,并通过分层的方式形成了连接内外的中间空间。此外,我们设计了新的东西,放在空间没有装饰,以适应自己的环境。
And then, we planned the space with intent to cause expansive usage with privacy and functionality, we raised existing elements up individually and formed an intermediate space that connect inside / outside by gradation. Moreover, we designed new things that put in the space without a decorativeness to adapt oneself to circumstances.
© Shimizu Ken
(清水健)
© Shimizu Ken
(清水健)
当光线隐约地透过木器进入一种均匀的空间时,那些增添了戏剧,展现了四季的风光。在野宅中,日本传统木屋既有美学的一面,又有其内在的同质性。我们试图在认真处理这些问题的同时,找到一种新的开放方式。
When the light steal in but dimly a kind of homogeneous space through the wooden fittings, those add dramas, and shows the scenery of the four seasons. In the feral house, there are aesthetics and inherent homogeneity of Japanese traditional wooden house. We tried to find a new way of openness while handling those carefully.
© Shimizu Ken
(清水健)
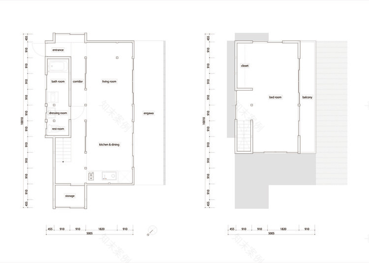
Architects 2001
Location Yokohama, Japan
Category Renovation
Construction Roovice
Area 43.06 sqm
Project Year 2016
Photographs Shimizu Ken
Manufacturers Loading...
客服
消息
收藏
下载
最近

















