查看完整案例


收藏

下载
© Tim Hursley
(c)TimHursley
架构师提供的文本描述。参考当地的先例,鲍迪屋将现代主义的理想与当地的策略结合起来,利用一个线性组织的计划来回应奥扎克的情况。(鼓掌)
Text description provided by the architects. Referencing local precedents, the Bowtie House fuses modernist ideals with vernacular strategies, making use of a linearly organized plan to respond to the Ozark context.
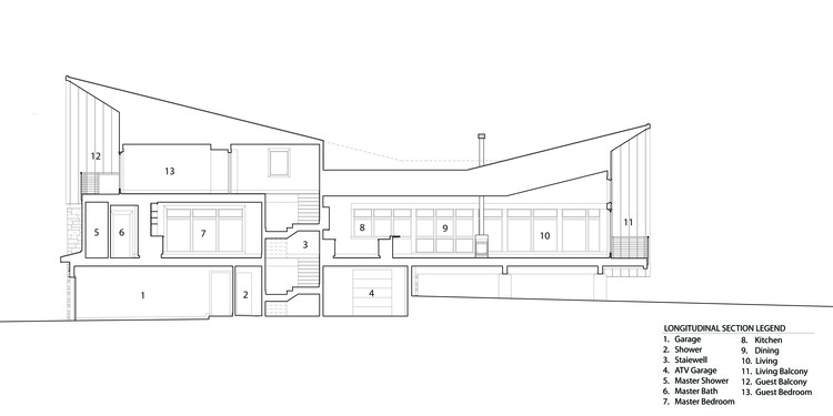
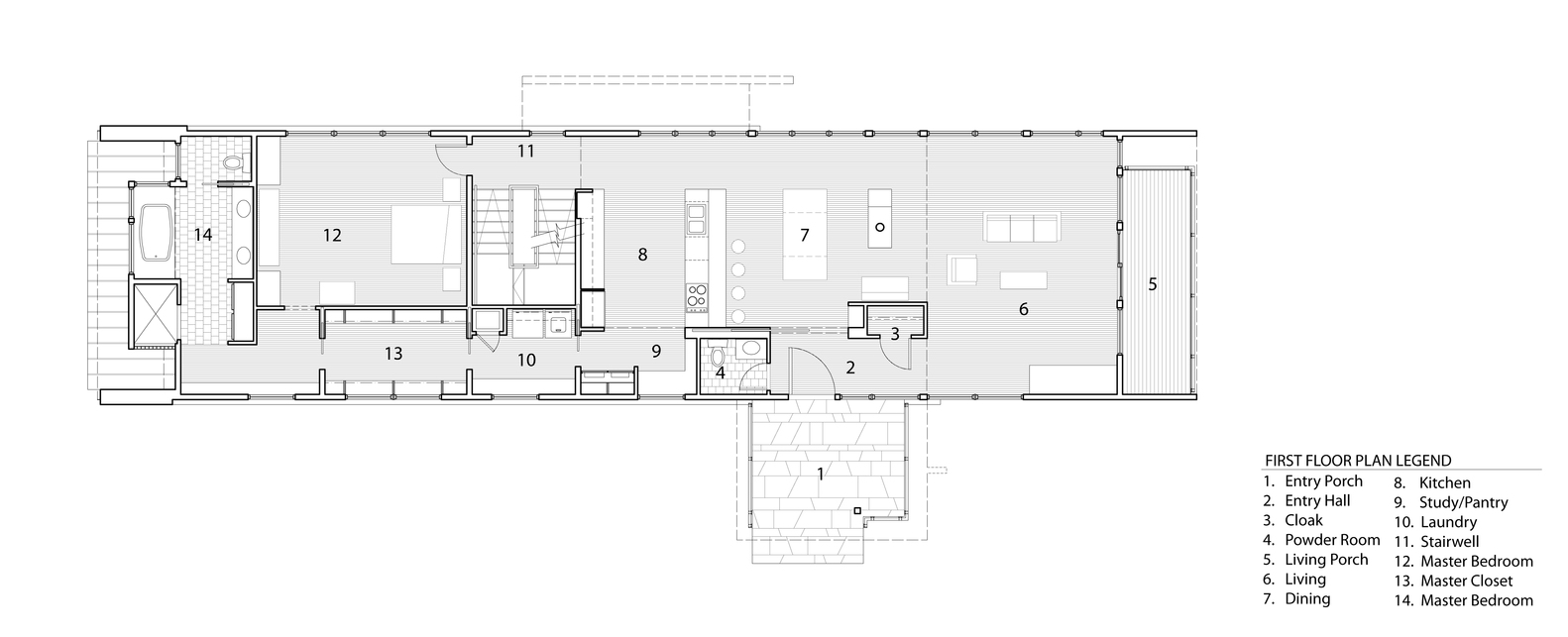
这所房子位于阿肯色州的费耶特维尔,是一对夫妇经常被家人造访的房子,靠近奥扎克山脉。这座23英尺宽的房子坐落在一个树木茂密的地方,其94英尺长的房子大致向西北向东南延伸。这一方向允许树木过滤光线进入房子在上午和下午晚些时候。
Located by Fayetteville in Arkansas, this house for a couple frequently visited by their family is near the Ozark Mountains. Situated on a heavily wooded site, the 23’ wide house is oriented with its 94’ length running roughly northwest to southeast. This orientation allows tree-filtered light into the house during the mornings and late afternoons.
© Tim Hursley
(c)TimHursley
在两张平地之间的坡地上,房子的节目在西北端的三层分布,主楼层一直延伸到东南,尽量减少房子的脚印。主公共空间和主卧室位于入口层,以容纳轮椅通道。公共设施由厨房组成。就餐区和生活区。这些区域在一个连续的空间内被定义为区域,垂直向结构的东南端开放,在那里,起居区似乎继续作为门廊延伸到室外。居住空间是由周围的树冠而不是靠窗墙来定义的,因此在内部和外部之间产生了丰富的模糊性。冬天,落叶的树木条件允许过滤的观点,遥远的奥扎克高原地平线。
Sitting on a sloping terrain between two draws, the house’s program is distributed on three levels at the northwest end, with the main floor extending continuously to the southeast and minimizing the house’s foot print. The primary public spaces and the master bedroom are on the entry level to accommodate wheelchair access. The public program consists of the kitchen, dining and living areas. These areas operate as defined zones within one continuous space, opening vertically toward the southeast end of the structure where the living area seemingly continues to the outdoors as a porch. The living space is defined by the surrounding tree canopies rather than by the window walls, thus creating a rich ambiguity between inside and outside. In winter, the defoliated tree conditions allow filtered views of the distant Ozark Plateau horizon.
© Tim Hursley
(c)TimHursley
© Tim Hursley
(c)TimHursley
外立面由竖缝Galvalume板组成,覆盖着灰泥、木板和板条系统,覆盖着土生土长的石基。内饰由广泛的枫木地板、装饰和橱柜组成,还有定制的大型枫叶门和樱桃门。
The exterior is clad in a shell of standing seam Galvalume panels on a stucco and wood board and batten system over a native stone base. The interior is finished out with extensive maple floors, trim, and cabinetry, with large custom maple and cherry doors.
© Tim Hursley
(c)TimHursley
Architects deMx architecture
Location Fayetteville, United States
Category Houses
Area 2756.0 ft2
Project Year 2007
Photographs Tim Hursley
Manufacturers Loading...
客服
消息
收藏
下载
最近























