查看完整案例


收藏

下载
这座疲惫的维多利亚式住宅被赋予了一个完整的重新设计与新的补充,完成了视觉。虽然房子使用全自动技术,但它被一个温暖的,纹理的调色板所掩盖。一条地板和墙壁的木带穿过房子,创造了一个和谐的,无缝的过渡,从旧到新。
客户的最初简报是一个计划,将看到新的后方居住空间向外开放。另一个要求是让这些新空间与改造后的旧房子无缝融合。
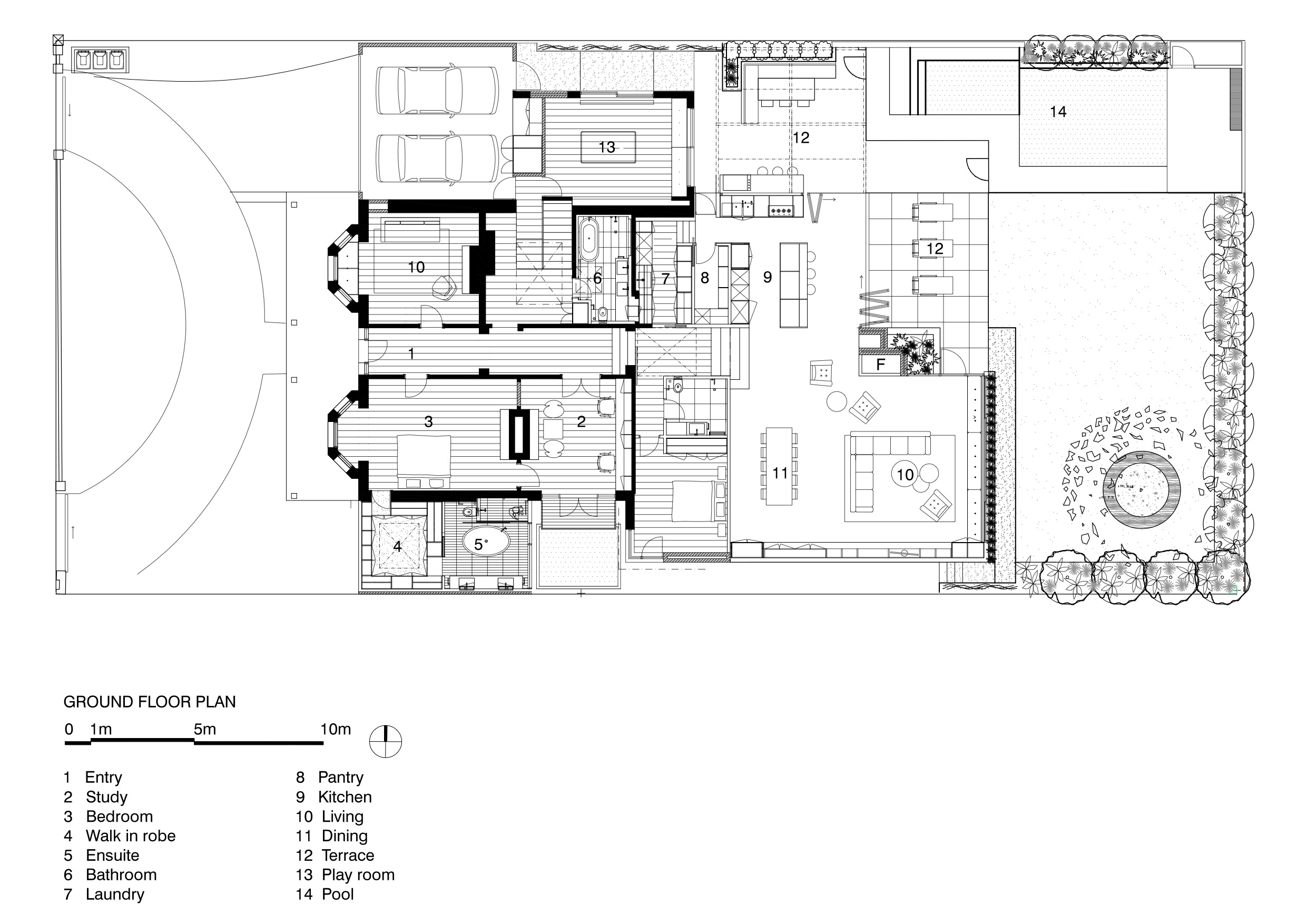
我们拆除了原先80年代的加法,以前是在后院上方1米高的地方。我们将这一水平的变化移至走廊尽头,并将最初的天花板高度移至一个新的附加部分,其高度为3.8米。这一增加包括居住空间,厨房,储藏室和洗衣房。
一个新的定制砖壁炉;设计当你进入原来的住宅时,作为新地区的中轴线,并连接到现有的遗产外观砖。
厨房区域有全高度的双折叠门,可以完全整合到外面。客厅有大的滑动窗,可以让外面的人进来。我们探索了物质和光,以融合旧和新,并定义空间在新的。
地板已被更换在原来的住宅与黑暗橡树,然后包装在新添加的三面墙,作为一条丝带,也创造细木工。这允许新旧无缝集成。一个巨大的天窗使光线在这个过渡的空间上照射下来。
新扩展中的空格由重要性定义。厨房面积达到了自己的身份,使用轻橡木细木工和浅色的重建石头作为台面。混凝土地板有助于定义新的延伸,但也允许黑暗橡树,轻橡木和棕色砖壁炉共存在同一空间。棕色砖壁炉是维多利亚时代房屋砖面的经常参考和提醒。
在这温暖和纹理调色板隐藏了房子,这是完全自动化和技术先进。
这一疲惫的维多利亚时代已经恢复并复兴,以迎接另一个百年的现实挑战。房子是完全自动化和未来的检验与尖端技术。这种巧妙的自动化被隐藏在材料的有机调色板中,没有任何技术在展示。这实现了新旧室内建筑的无缝融合。为了达到一个诚实和真实的口感,有寿命,大多数细木工是由工程木材地板。可持续地,在新的加注中使用了双层玻璃窗,确保了自然保持一致的温度。
Firm Robson Rak Architects
Type Residential › Private House
STATUS Built
YEAR 2014
keywords:architecture, architecture news, interiors, interior design, portfolio, spec, brands, marketplace, products Malvern House
关键词:建筑,建筑新闻,室内设计,组合,规格,品牌,市场,产品马尔文豪斯
客服
消息
收藏
下载
最近
























