查看完整案例


收藏

下载
© Hiroyuki Oki
(C) 小平之 (Hirouki Oki)
架构师提供的文本描述。今天的越南城市正在迅速扩张,使用对称和统一的建筑 (联排别墅) 提供枯燥和干燥的建筑形态。室内经常封闭,收缩和吸收热量。
Urban Vietnam today is rapidly expanding using symmetrical and uniform architecture (townhouses) providing boring and dry architectural morphology. Interiors often are closed in, cramped and absorb heat.
© Hiroyuki Oki
(C) 小平之 (Hirouki Oki)
阿尔卑斯创造了独特的设计,既美观又提供自然通风。年轻夫妇和建筑师对家居设计的主要想法有不同的关注和不同的感受。
Alpes creates unique designs which are both beautiful and provide natural ventilation.
Young couples and architects have concerns and different feelings regarding the main ideas for home design.
© Hiroyuki Oki
(C) 小平之 (Hirouki Oki)
人们希望在大港市区社区创造有趣的特色,以便:·在凉爽、舒适和开放的生活环境中生活。享受室内空间,包括游泳池、花园、树木和自然气流。·在房子周围移动时要进行流体转换。·屋顶花园,以吸收热量和创造可用的生活空间。高质量的天然材料增添了独特的持久美。·节约能源和节约成本。
- People want to create interesting features in Da Nang urban neighborhoods in order to:- Live in cool, comfortable, and open living environments- Enjoy indoor spaces with swimming pools, gardens, trees, and natural air flow.- Have fluid transitions when moving around the house.- Rooftop Gardens to absorb the heat and create usable living spaces.- High quality natural materials add unique lasting beauty.- Save Energy and Save Costs.
© Hiroyuki Oki
(C) 小平之 (Hirouki Oki)
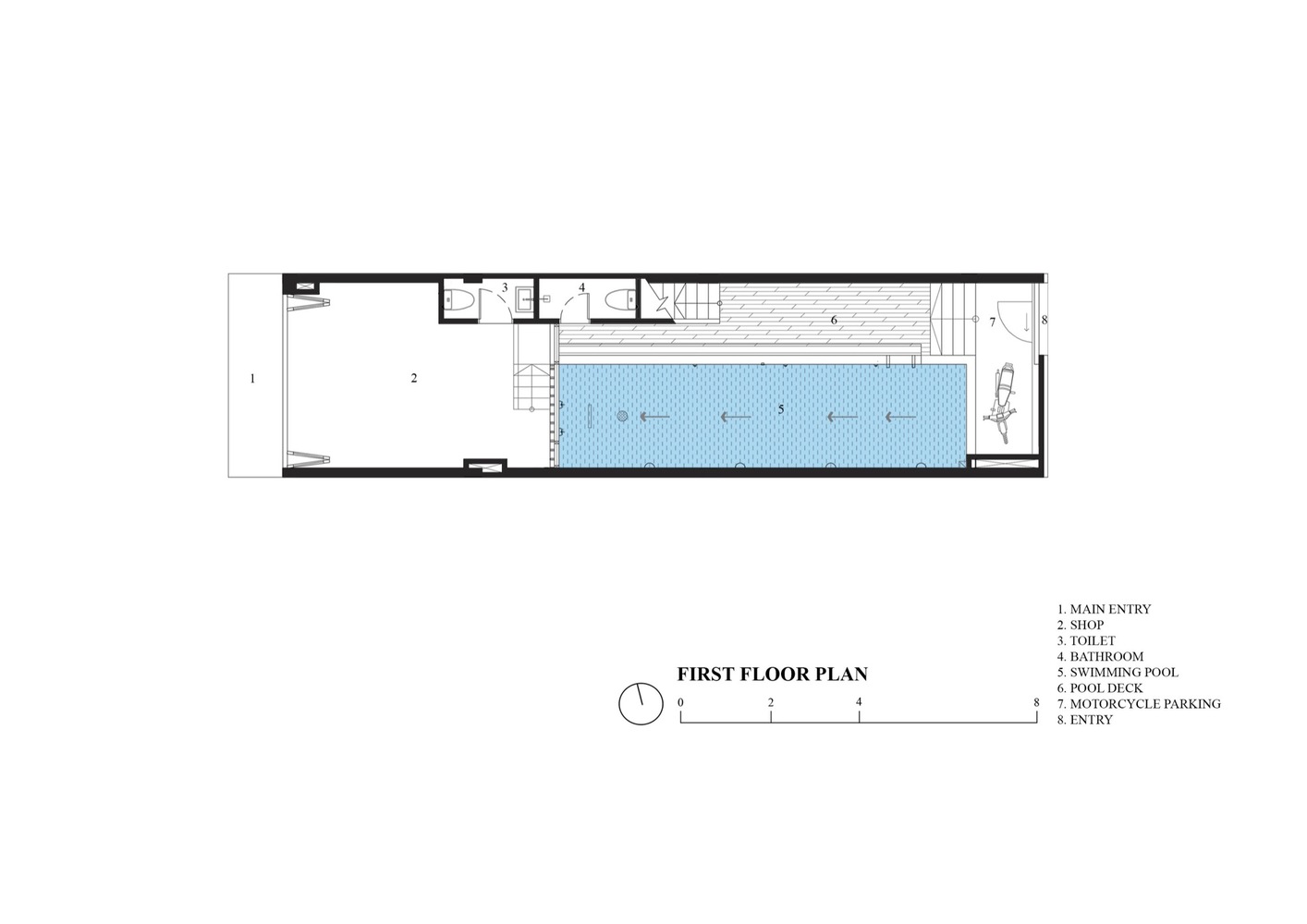
一楼的水元素,一个美丽的 9 米长的游泳池,允许家庭游泳,是一个非常重要的因素,在冷却室内的热风。
The 1st floor water element, a beautiful 9m long pool, allows the family to swim, and is a very important factor in cooling hot air in the house. © Hiroyuki Oki
(C) 小平之 (Hirouki Oki)
中央开放的绿地提供气流,通过开放的楼梯和桥梁进入房屋的不同部分,每间房间都有一个清新的自然环境。
The central open green space provides airflow, access to different parts of the house via open stairs and bridges, the family always has a fresh and natural environment in every room.
© Hiroyuki Oki
(C) 小平之 (Hirouki Oki)
玻璃门扩大了开阔的绿色空间的可见性。分层过渡巧妙地将房间连接起来,比封闭的实心墙更吸引人。它创造了视觉上美丽的场景。
Glass doors expand the visibility of the open green space. Split level transitions cleverly link rooms which is more inviting than closed solid walls. It creates visually beautiful scenes. © Hiroyuki Oki
(C) 小平之 (Hirouki Oki)
天窗、空旷空间和墙壁上的通风口允许自然光创造一个健康而明亮的环境。与通风不良的房屋相比,自然光和气流的结合是非常有益的,因为人工光线吸收了大量的热量。
Skylights, open spaces, and vents in walls permit natural light to create a healthy and bright environment. The combination of natural light and airflow are extremely beneficial as opposed to houses with poor ventilation, artificial light that absorb a lot of heat. © Hiroyuki Oki
(C) 小平之 (Hirouki Oki)
在“度假屋”,建筑师设计了创造性的解决方案,如混凝土百叶窗窗帘,具有装饰功能。它们可以在自然光下照射,但不能直接照射炎热的太阳,并允许热量逸出。它们在控制光线和温度的同时,是美丽而舒缓的。
For "Resort in House", the architect designed creative solutions such as concrete louver curtains with a decorative function. They allow in natural light but not direct hot sun and allow the heat to escape. They are beautiful and soothing while controlling the light and temperature. © Hiroyuki Oki
(C) 小平之 (Hirouki Oki)
越南的丹南是一个阳光明媚的城市。
屋顶花园可以减轻房屋屋顶吸收的热量。
草和植物为房子创造了一种保护性的“皮肤”或外套,以减少热辐射。
Danang, Vietnam is a sunny city. Rooftop gardens mitigate the heat absorbed through the roof of the house. The grass and plants create a protective “skin” or jacket for the house to reduce heat radiation.
这些屋顶花园也扩大了居住面积,晚上非常适合观赏星空、烧烤和放松。这是一个自然的屋顶公园。
These rooftop gardens are also expand the living area and are great at night for stargazing, barbeques, and relaxing. A natural rooftop park in your home. © Hiroyuki Oki
(C) 小平之 (Hirouki Oki)
西部 (热暴露墙) 的设计采用特殊的砖墙,有通风孔,以减少阳光直射,同时允许空气流动。这一想法采用了越南中部地区传统窗帘的概念。
The west (heat exposed wall) was designed using special brick walls with ventilation holes created to reduce direct sun while allowing air flow. This idea uses the concept of the traditional curtains of the people in Central Region of Vietnam.
© Hiroyuki Oki
(C) 小平之 (Hirouki Oki)
创造自然环境还利用了装饰混凝土、天然岩石、砖块、石材地板,这些都是人们所熟知的吸热较少、增添自然美的材料。
Creating the natural environment also utilized decorative concrete, natural rock and brick, and stone flooring which are known to be less heat absorbing and add natural beauty.
同步的内部建筑将房屋与自然的细节如铁装饰、木家具、竹子和陶器统一起来。
The synchronous interior architecture unifies the house with natural details such as iron decoration, wood furniture, bamboo, and pottery.
大港当泰麦街 42 号的“屋中度假村”是越南建筑新本质的真正标志,内外统一的设计创造了自然光、舒缓的材料、诱人的空间和健康的生活环境。
The “Resort in House” at 42 Dang Thai Mai Street in Danang is a true gem marking the new nature of architecture in Vietnam. The unified design of the exterior and interior creates natural light, soothing materials, inviting spaces, and a healthy living environment.
© Hiroyuki Oki
(C) 小平之 (Hirouki Oki)
这种感觉、外观和自然的冷却使个人能够居住和拥有过去只有在豪华度假村和别墅中才能体验到的房子。
The feeling, appearance, and natural cooling allow individuals to live and own houses that in the past could only be experienced in luxury resorts and villas.
Architects ALPES Green Design & Build
Location Da Nang, Vietnam
Category Houses
Architects in Charge Ho Khue
Design Team Huynh Thanh Hai, Huynh Van Khanh, Mai Le Hoang
Area 240.0 sqmProject Year 2016
Photographs Hiroyuki Oki
客服
消息
收藏
下载
最近


















































