查看完整案例

收藏

下载
© Jerome Ricolleau
(杰罗姆·里柯莱)
架构师提供的文本描述。在2012年的建筑竞赛中,加多尼工作室谨慎地将这一主要设施安置在查莫尼克斯小镇,特别是山谷的宏伟景观中。从斜坡上升起,建筑物被空地的地面所掩盖,当大自然再一次收回它应有的位置时,它注定会消失。
Text description provided by the architects. Winner of the architecture competition in 2012, Studio Gardoni Architectures discreetly fit this major facility into the small town of Chamonix and more particularly into the valley’s grandiose landscape. Rising from the slope, the building is covered up by the ground of the clearing, and is destined to disappear when the nature once again reclaims its rightful place.
© Jerome Ricolleau
(杰罗姆·里柯莱)
© Jerome Ricolleau
(杰罗姆·里柯莱)
© Jerome Ricolleau
(杰罗姆·里柯莱)
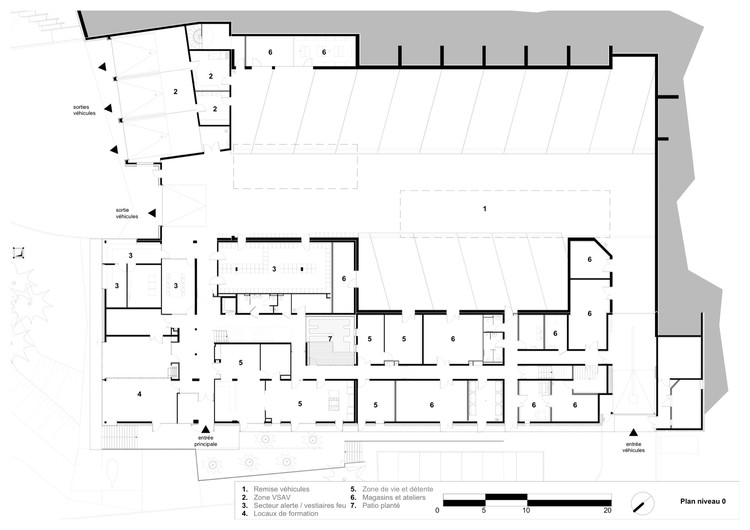
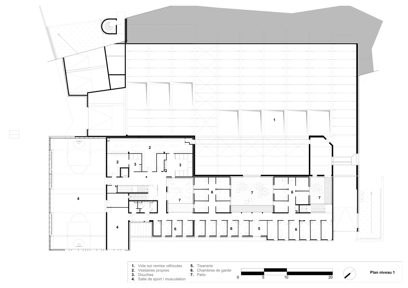
建筑理念追求不可见性:更确切地说,它的目的是使消防站的影响变得不可见,因为我们通常看到或想象一个有活动的建筑,尤其是一个突出的道路网络。在应急服务中心,每一秒钟都需要一个强调精度和细节的设计。这种新的建筑不仅严格地满足了这些标准,而且被巧妙地设计成能够将车辆托架放置在地下。
The architectural concept strives for invisibility: more precisely, it aims to render invisible the impact of a fire station as we typically see or imagine one, a building bustling with activity, with a particularly prominent roadway network. At an emergency services center, every second counts, requiring a design that emphasizes precision and detail. This new building not only meets these criteria scrupulously, but has also been cleverly designed to enable the vehicle bay to be placed underground.
© Jerome Ricolleau
(杰罗姆·里柯莱)
为了最大限度地减少影响,并使自然环境的空间再次兴旺,关键要素必须既建在地下,又使之更加紧凑。这个形状类似于程序元素的集合,这些元素机会主义地交织在一起,同时产生接近性(功能和人体工程学),并将结构的足迹最小化。这一原则导致了一个建筑物的两个正面部分或完全地下,和两个宽阔的正面,其中包含所有的功能。这是一个缩影,通过不透明,神秘的结构体育馆,一个象征性的形象,在建筑群的弓。
In order to minimize impact and allow space for the natural environment to once again thrive, key elements had to be both built underground and made more compact. The shape is akin to an assembly of elements of programs that intertwine opportunistically to simultaneously create proximity (functionality and ergonomics) and minimize the structure’s footprint. This principle results in a building with two facades that are partially or entirely underground, and two broad facades that contain all of the functions. This is epitomized through the opaque, mysterious structure of the gymnasium, an emblematic figure at the bow of the complex.
© Jerome Ricolleau
(杰罗姆·里柯莱)
这个站点的本质是时间的流逝。这些空间在消失的过程中被物化,时间展开。在这里,时间不是破坏性的,而是变革性的。
Inherent to the nature of this site is the passing of time. These spaces are materialized in a process of disappearance, of time unfolding. Here, time is not destructive but transformative.
© Jerome Ricolleau
(杰罗姆·里柯莱)
首先,大自然覆盖屋顶,并将收回它的正确位置,无论是在周围和结构上。辉长石地基是由现场的岩石组成的,这是从冰河周围挖出的一批卵石。
First of all, nature covers the roof, and will reclaim its rightful place, both around and on the structure. The gabion foundations are composed of rocks from the site, a selection of pebbles excavated from the surrounding glacial moraine.
© Jerome Ricolleau
(杰罗姆·里柯莱)
© Jerome Ricolleau
(杰罗姆·里柯莱)
最后,在鳞片表面和竖缝中发现的铜,一旦安装完毕,就会开始缓慢变异,并会从黄金变成棕色,就像在山谷中发现的许多建筑中所看到的那样。这种物质反射周围的山峰,改变场地,每天每一个小时都会被日照和云层改变。
Finally, the copper, found in the scaled façade and the standing seams, begins its slow mutation once it has been installed, and will turn from gold to brown, as seen in a number of structures found in the valley. This material reflects the surrounding peaks, transforms the site and is transfigured every hour of the day by the changing sunlight and the clouds.
© Jerome Ricolleau
(杰罗姆·里柯莱)
Architects Studio Gardoni Architectures
Location Chamonix, France
Category Fire Station
Area 2752.0 m2
Project Year 2016
Photographs Jerome Ricolleau
Manufacturers Loading...
客服
消息
收藏
下载
最近





























