查看完整案例


收藏

下载
© John Horner
约翰·霍纳
架构师提供的文本描述。这所房子位于波士顿郊区,是一对夫妇和许多孙子孙女的聚集地。增加和游泳池的房子发展与现有的花园对话,让业主参与户外全年,并创造了一系列的过滤器和框架,通过这些景观是可以看到的。
Text description provided by the architects. Located in a suburb of Boston, this house serves as a gathering point for a couple’s children and many grandchildren. The addition and pool house develop a dialogue with the existing gardens, allowing the owners to engage the outdoors all year, and creating a series of filters and frames through which the landscape is viewed.
© John Horner
约翰·霍纳
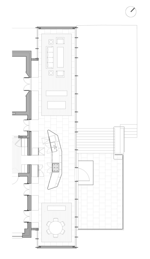
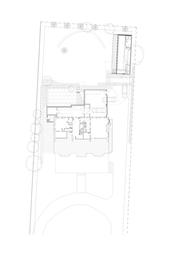
Floor plan
© John Horner
约翰·霍纳
产品说明:
Product Description:
牛顿楼的居住和游泳池亭框架周围的景观,并加强居民的关系与自然景观的后院。位于活生生的展馆内,一个抛光的不锈钢罩在开放式厨房的中心反映了它的背景,有效地非物化了自己,因为它吸收了它的各个方面的观点。在一次重要的机械存在,同时也是一个光学诡计,两者相聚在一起,一个意想不到的联盟。
The Newton House living and pool pavilions frame the landscape surrounding the house and enhance the inhabitants' relationship with the natural landscape of the backyard. Located within the Living Pavilion, a polished stainless steel hood at the center of an open kitchen reflects its context, effectively de-materializing itself, as it absorbs the various views within its facets. At once a significant mechanical presence, and at the same time an optical ruse, the two come together in an unexpected alliance.
© John Horner
约翰·霍纳
Architects NADAAA
Location Newton, United States
Category Houses
Architect in Charge Nader Tehrani, Harry Lowd
Area 9260.0 ft2
Project Year 2010
Manufacturers Loading...
客服
消息
收藏
下载
最近






















