查看完整案例


收藏

下载
Courtesy of Stastny Pavel Architekt
斯塔特尼·帕维尔·阿奇特(Stastny Pavel Architekt)
架构师提供的文本描述。主要目的是在Vlasta Burian建造新的多功能中心。这座建筑将作为前利伯雷奇本地人Vlasta Burian的社会和文化中心,通过讲座、休闲活动、课程、创意讲习班等介绍他的生活和生活方式。这座建筑物应能增加邻近古镇的吸引力。
Text description provided by the architects. The main aim is to build new multifunctional centre of Vlasta Burian. The building will serve as a social and cultural centre of the former Liberec native Vlasta Burian, presentation of his life and lifestyle through lectures, leisure activities, courses, creative workshops etc. The building should increase attractiveness of adjacent old town.
地块位于该镇的历史地段,靠近市中心。这个物体完成了免费的空置土地,试图完成一个城市地区,它被时间的干预和房地产所有者和开发商的不作为破坏。
Plot is located in a historical part of the town, near the city centre. This object completes the free vacant lot, trying to complete a city district that is damaged by time interventions and inaction of real estate owners and developers.
房屋尊重规模、体积、街道线、建筑类型、形态、周围建筑物的韵律。
House respects the scale, volume, street line, architectural typology, morphology, rhythm of surrounding buildings.
Courtesy of Stastny Pavel Architekt
斯塔特尼·帕维尔·阿奇特(Stastny Pavel Architekt)
建筑物的建筑是根据周围公寓楼的高度和质量而建的。新建筑保持了良好的线条。倾斜顶板是从相邻房屋的采光角度对最佳屋面体积进行分析的结果。平面图复制了地块的界限。
Architecture of the building is based on the height and mass of the neighbouring apartment building. New building is keeping cornice line. Hipped roof is a result of analyse for the optimal roof volume from the insolation of the neighbouring house point view. Floor plan copies the limits of the plot.
板岩瓷砖的外观,包括屋面和正面的颜色和材料的均匀性。外部材料的主要建筑原则应该是自然、真实。窗户的节奏是对称的,尊重周围公寓楼的立体感。
Colour and material uniformity of the external skin including roof and facade is reached by the slate tiles. The main architectural principle of the exterior material should be naturalness, truthfulness. Rhythm of the windows is symmetrical, and respects the surrounding apartment buildings articulation.
拟议中的大楼有四层,没有地下室。
The proposed building has four floors, no basement.
Courtesy of Stastny Pavel Architekt
斯塔特尼·帕维尔·阿奇特(Stastny Pavel Architekt)
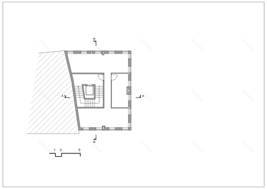
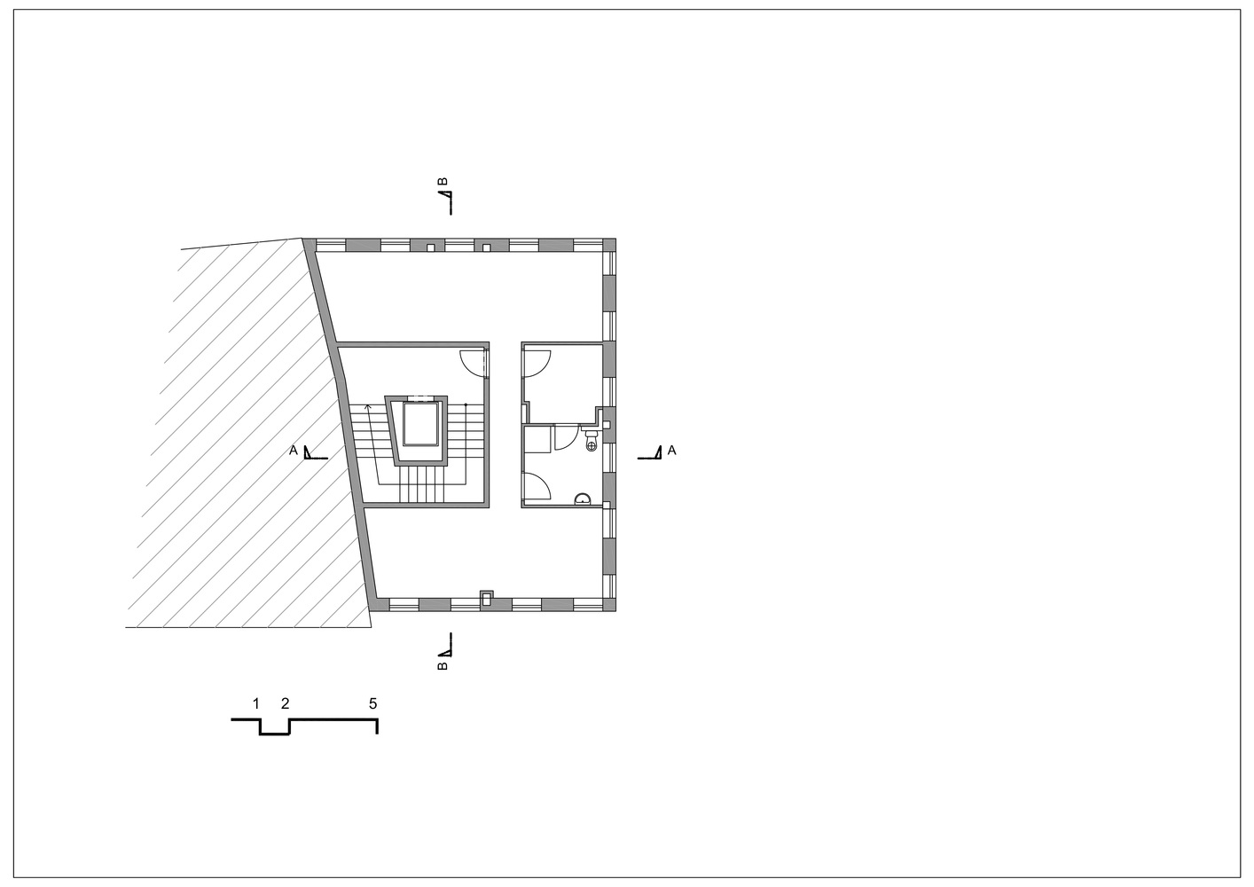
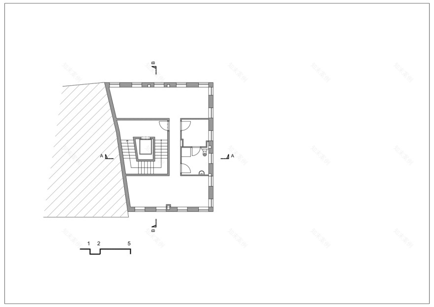
该建筑的主要入口是从西南面从ŠIroká街。雇主和停车场的主要入口是庭院。在一楼,有门厅,职员室和厕所。中心内的访客如能找到可作休闲活动、展览、投影等用途的公共房间,便会继续前往上层。
The main entrance to the building is from southwest side from Široká Street. The main entrance for employers and parking is from courtyard. On the ground floor level is located entrance hall, staff room and toilets. The visitors of the centre continue to the upper floors when they can find the common rooms for leisure time activities, exhibitions, projection, etc.
建筑结构选择为钢筋混凝土和圆柱壁系统的组合。在建筑和钢筋混凝土楼板周边周围的钢筋混凝土梁制作天花板结构。楼梯设计为固定在楼梯和电梯墙上的整体式钢筋混凝土。屋顶的支撑结构由倾斜的钢筋混凝土板制成,该混凝土板锚固到周边梁并由楼梯和电梯竖井的整体墙支撑。通过与实心混凝土墙的通信核心保证水平刚度。这座大楼是在桩上建造的。
The construction structure is selected as a combination of reinforced concrete and the columned wall system. Ceiling structures at is made of the reinforced concrete beams around the perimeter of building and reinforced concrete floor slabs. The staircase is designed as a monolithic reinforced concrete anchored to the stair and elevator walls. The supporting structure of the roof is made by sloping reinforced concrete slabs, which are anchored to the perimeter beams and are supported by monolithic walls of stairs and of the elevator shaft. Horizontal rigidity is ensured by communication core with solid concrete walls. The building is founded on piles.
Courtesy of Stastny Pavel Architekt
斯塔特尼·帕维尔·阿奇特(Stastny Pavel Architekt)
我们希望这座大厦能成为将来在市区进行新发展的先例。
We hope that this building could become future precedent for possible new development in district of down town.
Architects Stastny Pavel Architekt
Location Liberec, Czech Republic
Category Houses
Area 120.5 sqm
Project Year 2015
Manufacturers Loading...
客服
消息
收藏
下载
最近


























