查看完整案例


收藏

下载
建筑师:Lautenbag建筑位置:荷兰Hindeloopen:2015年面积:43.055平方英尺/4.000平方米照片提供:Folkert Bleeker,Marc Henri Quere描述:
“一个可持续和豪华的巴恩豪斯”别墅“Hindeloopen”位于荷兰的Hindeloopen,坐落在一个由弗里西亚奶牛包围的自然美景的地区。这个开发项目是从一个现有的房子和小的奶牛场中建立起来的。
客户是一位雄心勃勃的企业家,在与周围环境的联系上有很强的亲和力。他雄心勃勃地要建造一座现代化的、环保的房子,这导致了一种非传统的建筑方法。这并不是由成本和时间限制所驱动的,而是更多地是因为想要建造一座不损害对细节的关注的建筑物。要求当地工匠进行建筑工程,而在合理可行的范围内,当地材料是在采购阶段负责任地采购的,其结果是建造了一座精巧的建筑,以补充其自然环境。
加强地块的现有特征,形成一个连接现有房屋和谷仓的相互连接的玻璃区域。在东西向的高地上,有着看不见的框架的玻璃,突出了花园和周围土地的全景。
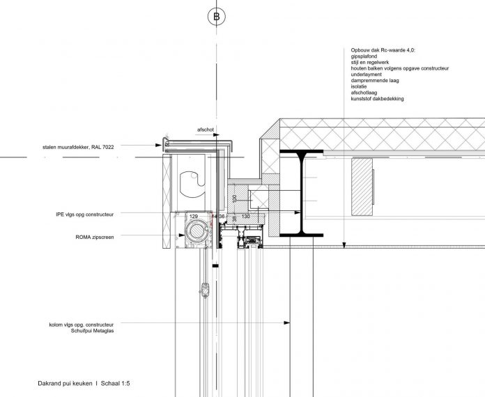
从采购阶段到建筑的生命周期成本,这一财产的碳脚印已严格遵守。这所房子绝缘得很好,空气也是密封的。此外,它还在墙壁上集成了太阳能屏幕,以便在夏季保持热量,并在冬季保持。
客户希望创造更多空间,以现代的、极简主义的感觉得到三种结构的结合的极大补充,这三种结构作为单独的要素形成了一个大胆的声明,但它们共同形成了一个联盟,补充了当地环境的和谐。“
谢谢你阅读这篇文章!
keywords:Hindeloopen Lautenbag architectuur The Netherlands
关键词:荷兰
客服
消息
收藏
下载
最近




































