查看完整案例


收藏

下载
© Mika Meienberger
Mika Meienberge
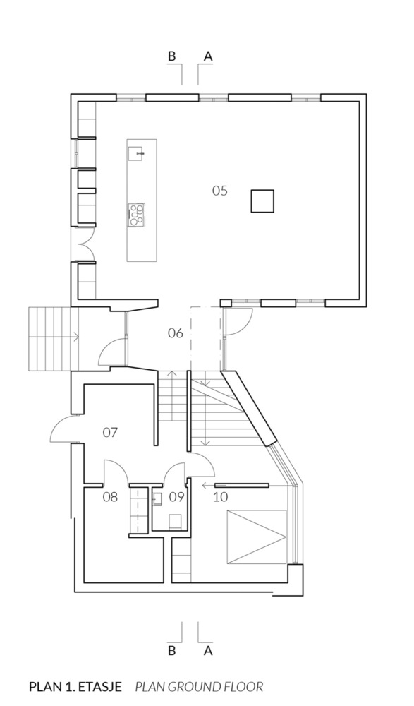
架构师提供的文本描述。旧建筑在功能和舒适性方面往往难以适应现代生活的要求。楼梯太陡,房子太暗,平面图不符合新的要求。此外,这类楼宇经常列明,必须特别小心处理,解决办法可以是把较旧楼宇内难以容纳的空间和功能,例如新的湿屋或更方便的垂直通讯,加以扩展。当在旧建筑中添加新建筑时,建筑师必须回答一些基本问题:在设计扩展时,是否需要与现有的房屋保持密切关系?如果是这样的话,是什么使人认识到一种亲和力呢?在不失去这两座建筑之间的联系的情况下,可以使用什么层次的抽象?对比可能和亲和力一样重要吗?对比创造清晰和定义。它突出了原始建筑和附加建筑的质量。来自规划当局的严格的正式准则是Bestumstua项目许多决定的基础。
Text description provided by the architects. Older buildings are often poorly adapted to the demands of modern life in terms of functionality and comfort. The staircase is too steep, the house too dark and the floor plan incompatible with new requirements. In addition, such buildings are often listed and must be handled with extra care.The solution can be an extension that houses spaces and functions that are difficult to fit in the older building, such as new wet rooms or a more convenient vertical communication. When adding a new building to an old one, the architect has to answer some fundamental questions: Is an affinity with the existing house necessary when designing an extension? If so, what makes one recognise an affinity? What level of abstraction can be used without losing the bond between the two buildings?Is the contrast maybe just as important as the affinity? Contrast creates legibility and definition. It highlights the qualities of both the original building and the addition. Strict formal guidelines from the planning authorities were the basis for many of the decisions in the Bestemorstua project.
扩建部分必须有与旧建筑的屋顶相同的倾斜屋顶,而且必须位于原房屋的很远的后面。(鼓掌)
The extension was obliged to have a pitched roof at the same angle as the roof of the older building and had to be situated well behind the original house.
这一限制导致了这样一个想法,那就是制造一个不完全相同的孪生兄弟,并把它与老房子并排放在一起,具有自己坚强的性格。就像阴阳,新的和旧的部分是相辅相成的,无论是实际的还是视觉的。石板延伸处就像一块岩石,紧靠着它的“孪生兄弟”。它把他的兄弟牢牢地固定在地上,保护他不受强风的侵袭。
This restriction led to the idea of making a non identical twin with its own strong character, placed side by side with the old house. Like yin and yang, the new and the old part of the house complement each other, both practically and visually. The slate extension sits like a rock next to its’ twin. It anchors its brother firmly to the ground and protects him from the strong sea wind.
© Mika Meienberger
Mika Meienberge
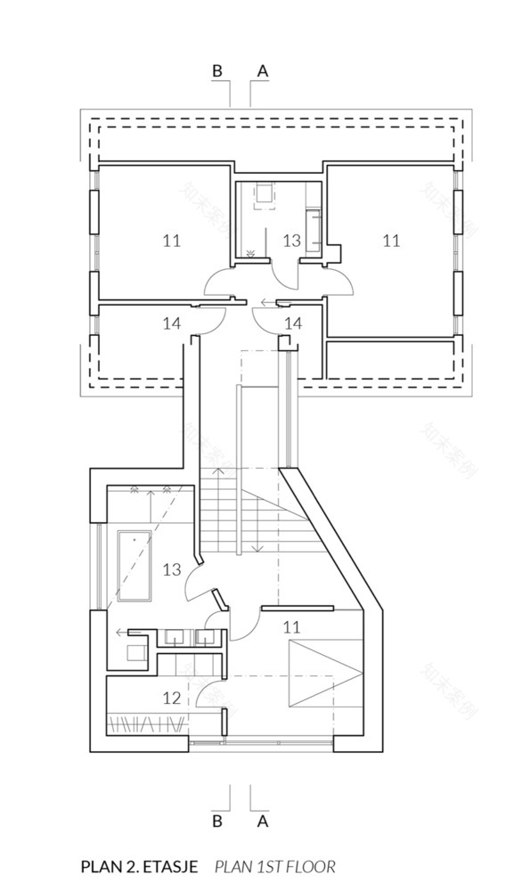
延展的形状和材料的选择同时产生亲和力和反差。来自规划当局的高度限制导致了一个分层的楼层计划,为扩建区的所有房间提供自然光。这一解决方案使得楼层之间的垂直分隔变得不那么突出,而且可以轻松地在房子里移动。楼层之间的视觉接触,以及建筑与外部景观之间的视觉接触,增强了房屋的开放性。
为了尽量减少与旧外墙的实际接触,扩建部分必须是独立的,只有通过狭窄的连接才能与老建筑连接起来。尽管它的宽度适中,在新旧部分之间起到隔膜的作用,但重要的是,连接体积和延伸部分的其余部分要结合在一起,形成一个单一的形状。因此,增加了一个斜面,将新的倾斜屋顶体积与连接起来。
In order to minimise the physical engagement with the old façade, the extension had to be freestanding, only joined together with the old building by a narrow connection. In spite of its moderate width and its role as a divider between the old and new parts of the house, it was important that the connecting volume and the rest of the extension together formed one single shape. An oblique surface was therefore added that tied the new pitched roof volume to the connection.
最终产品是一种扩展,将激动人心的空间体验与现代家庭生活的实际需求结合起来,同时满足规划当局的要求。
The end product is an extension that combines exciting spatial experiences with the practical requirements of modern family life, whilst meeting the demands of the planning authorities.
© Mika Meienberger
Mika Meienberge
产品描述:在设计贝斯托斯塔时,重要的是要在新的扩建和旧房子之间建立一种亲和力。选择与现有建筑相关的材料是实现这一目标的途径之一。原来的老房子的屋顶材料是阿尔塔板岩,所以它也是自然使用的延伸。它让石板不仅覆盖屋顶,而且覆盖延伸处的墙壁,同时也创造了一种亲和力,并与老房子形成了鲜明的对比。
Product Description. When designing Bestemorstua it was important to create an affinity between the new extension and the old house. Choosing a material that related to the existing building was one way to achieve that. The original roof material of the old house is Alta slate so it was natural to also use that for the extension. By letting the slate cover not only the roof but also the wall on the extension, it simultaneously creates an affinity and a contrast to the old house.
阿尔塔石板的使用在400年的白话传统和新的当代建筑之间,以及建筑和挪威群岛景观之间形成了一种联系。
The use of Alta slate forges a bond between a 400-year-old vernacular tradition and new contemporary architecture and between building and the Norwegian archipelago landscape.
© Mika Meienberger
Mika Meienberge
作为一种材料,阿尔塔石板不仅在视觉上而且在实际上都是项目成功的关键,它的强度使得它适合恶劣的沿海天气。
Alta slate, as a material, was crucial to the project’s success, not only visually but also practically. Its strength made it ideal for the harsh coastal weather.
阿尔塔石板本质上是不可摧毁和不变的。它也是可持续和维护免费的。由于它是一种天然材料,所以每一块石板都是独一无二的。同时,它和100或200年前是一样的,这意味着它对于你想要与使用这种材料的原始建筑相关联的扩展来说是完美的。
Alta slate is essentially indestructible and unchangeable. It is also sustainable and maintenance free. Due to the fact that it is a natural material, each slate is unique. At the same time it is just the same as it was 100 or 200 years ago, which means it is perfect for extensions where you want to relate to an original building that uses this material.
© Mika Meienberger
Mika Meienberge
Architects Mikado Arkitektur
Location Averøy, Norway
Category Renovation
Area 300.0 sqm
Project Year 2013
Photographs Mika Meienberger
Manufacturers Loading...
客服
消息
收藏
下载
最近


















