查看完整案例


收藏

下载
© Matthew Carbone
(马修·卡伯恩)
架构师提供的文本描述。坐落在海洋和池塘之间的田园屋,几乎可以让风景贯穿其中。房子既是周围环境的延伸,又是避风塘,它的构思考虑到了洪水和风。野外房屋是由桩和钢框架组成的耐久桃花心木,阳极化铝框架门窗和高密度石灰石。
Text description provided by the architects. Perched between ocean and pond, Field House almost appears to allow the landscape to run through it. Acting as both an extension of its surroundings and as a shelter from it, the house is conceived with flooding and wind in mind. Field House is constructed on piles and is comprised of a steel frame clad in durable mahogany, with anodized aluminum framed windows and doors, and high density limestone.
© Matthew Carbone
(马修·卡伯恩)
这些都是可回收的材料,故意选择,因为他们的低维护在这个严酷但美丽的环境。较低的水位向池塘一侧的石灰石覆盖的水池开放,向南的沙丘和海洋开放。悬垂和可操作的屏幕限制了夏季的热量增长,但允许温暖的光线在冬季穿透。这座房子占地不到5000平方英尺,从双高入口和起居室中的第二座楼梯桥,到完全开放成为室外门廊的较低层的房间,提供了无数种体验环境的方式。一个强有力的重新植被计划允许建筑成为它所居住的自然景观的延伸。
These are all recyclable materials intentionally chosen for their low maintenance in this harsh but beautiful setting. The lower level opens up to the limestone clad pool on the pond side, and to dune grass and ocean to the south. Overhangs and operable screens limit heat gain during summer, but allow for the warmer rays to penetrate through in winter. Less than 5 thousand square feet, the house offers a myriad of ways to experience the setting, from the second stair bridge in the double height entry and living room to lower level rooms that open up completely to become covered outdoor porches. A robust revegetation program allows the building to become an extension of the natural landscape that it inhabits.
© Matthew Carbone
(马修·卡伯恩)
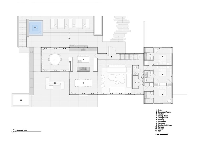
房子是通过一套松散的梯级楼梯接近,绕过高架池,在入门级,这是一个水元素,允许水的声音跑过边缘,以标志着到达。然而,一旦上升到主要的入口,池和周围的甲板是通过植被和低矮的墙壁,提供了地区隐私和不间断的视野之外的池塘。到达入口的那一刻,你会直接穿过主空间,到达前方的海洋。一旦进入,等待的空间,要么是海滨,或池塘的看法,与一些空间作为一个开放的桥梁之间的两者。较低层由一个主客厅组成,该客厅面向海洋,向一个偏置的就餐区开放。分开的厨房通向游泳池露台和池塘景观,字面上有一个大的滑动窗口,允许在厨房和露台之间建立一个古老的特许柜台关系。紧邻厨房的是一个玻璃窗,用玻璃门将其封闭在进食区域内。在整个较低的层次上,石灰石墙的作用是容纳、引导和定义不同的区域。在海滨露台上,墙壁变成了一个容器,里面有一个煤气壁炉和各种各样的橱柜,供户外娱乐。
The house is approached through a loosely terraced set of stairs, bypassing the elevated pool, which at the entry level functions as a water element allowing the sound of water running over the edge to signify the arrival. Yet once up at the main level entrance, the pool and surrounding decks are screened through vegetation and low walls, providing the area privacy and the uninterrupted view out to the pond beyond. The moment of arrival at the entry takes you straight through the main space and out to the ocean ahead. Once inside, pending the space, there is either oceanfront, or pond views, with some spaces acting as an open bridge between both. The lower level is composed of a main living room open to an offset dining area both ocean facing. The separated kitchen opens up to the pool terrace and pond view, literally with a large sliding window that allows for an old school concession counter relationship between kitchen and terrace. Adjoining the kitchen is a glassed in eating area enclosed by retracting glass doors. Throughout the lower level, limestone walls function to contain, guide, and define various areas. On the ocean front terrace the wall becomes a container, housing a gas fireplace and various cabinetry for outdoor entertaining.
© Matthew Carbone
(马修·卡伯恩)
1st Floor Plan
第1层平面图
© Matthew Carbone
(马修·卡伯恩)
房子的东侧在两层都有客人卧室和家庭卧室的功能。在尺寸保守,每个锻造与外部通过地板到天花板的玻璃,适当地屏蔽,再次尽量避免热量增加关系。二楼的桥把孩子们的卧室与主套房和一个带玻璃角落的起居室连接起来。
The east wing of the house functions as guest and family bedrooms on both floors. Conservative in size, each forges a relationship with the exterior through floor to ceiling glass, properly screened, again to avoid heat gain as much as possible. The second floor bridge connects the children’s' bedrooms to the master suite and a sitting room with a glass corner.
© Matthew Carbone
(马修·卡伯恩)
2nd Floor Plan
二楼图则
© Matthew Carbone
(马修·卡伯恩)
内部调色板与外部相匹配,石灰石贯穿主平面,在浴室中以实心块的形式重新出现。其目的始终是加强而不是削弱环境的自然美。
The interior palette matches the exterior, with the limestone extending through out the main level and reappearing as solid blocks in bathrooms. The intention throughout is to reinforce rather than detract from the natural beauty of the surroundings.
© Matthew Carbone
(马修·卡伯恩)
产品说明:这是一种木质填充的钢结构。墙板是非洲垂直谷物桃花心木。门窗框是阳极化铝。来自威斯康星州的瓦尔德石灰石在里面和外面都使用过。石头是使用景观元素,如游泳池和温泉和周围的梯田。它继续通过室内主层的房屋,加强室内室外关系。
Product Description. This is a steel structure with wood infill. The siding is African Vertical grain mahogany. Door and window frames are anodized aluminum. Valders Limestone from Wisconsin used throughout inside and out. The stone is used landscape elements such as the pool and spa and the surrounding terraces. It continues through the inside main level of the house reinforcing the indoor outdoor relationship.
© Matthew Carbone
(马修·卡伯恩)
Architects Stelle Lomont Rouhani Architects
Location United States
Category Houses
Architects in Charge Viola Rouhani, Lucas Cowart
Area 4500.0 ft2
Project Year 2015
Photographs Matthew Carbone
Manufacturers Loading...
客服
消息
收藏
下载
最近




















































