查看完整案例


收藏

下载
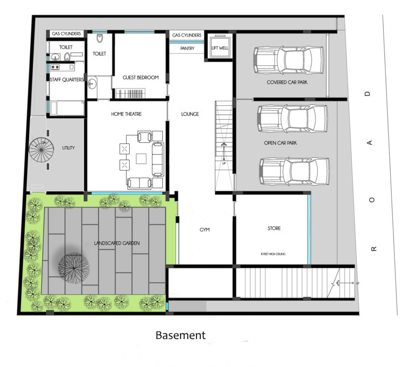
莫比乌斯之家是位于印度班加罗尔的一家私人住宅。
它是由持续建筑设计的。
画廊中的视图
我们推荐这些项目-Ashwin建筑设计师在印度Nagarbhavi设计一个带有温暖的黄色亮点的当代住宅,由HMH建筑设计的Boulder现代网络零家
画廊中的视图
画廊中的视图
画廊中的视图
画廊中的视图
画廊中的视图
画廊中的视图
画廊中的视图
画廊中的视图
画廊中的视图
画廊中的视图
画廊中的视图
画廊中的视图
画廊中的视图
画廊中的视图
莫比乌斯建筑之家-连续:
“这是一个开放的方法,帮助公司设计与挑战,该网站提出的。位于一个城市的环境中,在令人惊讶的茂密的绿色覆盖,一棵树从附近的地点已经蔓延到这个地块,坚固的树枝覆盖了几乎一半的地点。客户被确定不干扰老树枝,这决定了建筑形式-一个简化和部分莫比乌斯。
除了提供壮观的景观,这个家也有一个巨大的可持续的冲击。室外绿地与室内之间的视觉联系是由玻璃外墙保持的。这是一个令人兴奋的设计词汇,包括阳光亲吻式双高庭院花园,以及多个其他天窗,也带来了充足的日光-这是成本效益高、最简单、最美丽的自然元素之一。
开放的平面布局,最少的墙壁,窗户的开口,大小,位置和清晰的楼层通风,使堆栈的效果,创造一个健康,呼吸和一个活泼舒适的家。“
画廊中的视图
画廊中的视图
画廊中的视图
画廊中的视图
keywords:Architecture Continuous Bangalore Bedroom Brick Walls Contemporary Interior Design Decorative Accessory Dining Room Floor Plans Glass Walls India Kitchen Landscaping Living Room Rug Skylights Staircase Submitted Terrace Wood Floors
关键词:建筑,班加罗尔,卧室,砖墙,现代室内设计,装饰附件,餐厅,平面图,玻璃墙,印度厨房景观,客厅,地毯,天窗,楼梯,提交露台木地板
客服
消息
收藏
下载
最近





















